Metro Denver Luxury Homes For Sale

Property Description

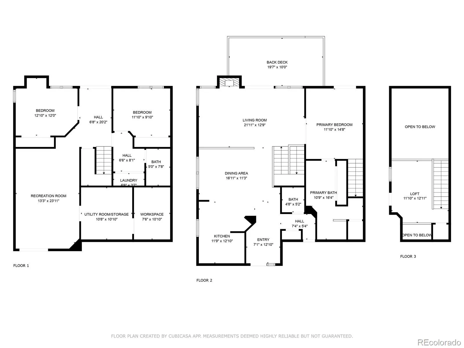
Must-see Genesee townhome with coveted main floor primary suite! Enter through the covered front porch and admire the open floor plan, vaulted ceilings, and recently refinished hardwood floors. The kitchen features wood cabinets, stainless steel appliances, and an adjoining dining area. Tons of natural light and a wood-burning fireplace make the living space inviting and ideal for entertaining. Access the Trex deck directly from the living room through French doors and enjoy views of the mountains and adjacent meadow. The spacious main level primary suite features another set of French doors to the deck. Head up the stairs to find an open loft with 2 closets – perfect for an exercise space or office. The recently remodeled primary bath features a walk-in shower, new cabinets, and a double vanity with quartz counters. The lower walkout level features a spacious living area, 2 bedrooms, a full bath, laundry closet, storage/work area, and double doors leading to the covered back patio. The deck, roof, windows, and gutters were replaced in 2018. Situated conveniently close to the Genesee Vista clubhouse with new pool, playground, and tennis courts, this home is located in Genesee – a tranquil, dark-sky mountain community thoughtfully planned with 12 miles of gorgeous hiking trails and 1200 acres of open space where people and wildlife blissfully cohabitate. Conveniently located just 25 minutes to downtown Denver, 60 minutes to Summit County’s premier, world-class skiing, and 60 minutes to Rocky Mountain National Park. Visit https://geneseefoundation.org/about-us to see all that Genesee has to offer.

Features
: Forced Air, Natural Gas
: None
: Finished, Walk-Out Access
: None
: Mountain(s), Meadow
: Cats OK, Dogs OK
: Living Room, Wood Burning
: Deck, Front Porch
: 2
: Dryer, Dishwasher, Disposal, Microwave, Range, Refrigerator, Range Hood, Washer, Gas Water Heater, Oven
: Mountain Contemporary
: Pool, Clubhouse, Playground, Fitness Center, Security, On Site Management
: Concrete
: Composition
: Public Sewer
Address Map
CO
Jefferson
Golden
80401
Currant
24036
Drive
Second Ridge Townhomes at Genesee
W106° 43' 40.2''
N39° 41' 25.9''
Additional Information
$720
Quarterly
: Insurance, Maintenance Grounds, Snow Removal, Trash, Maintenance Structure, Recycling, Reserves, Road Maintenance, Security
: Wood Siding, Cedar
From I-70 take Exit 256/Lookout Mountain. Turn left at stop sign and then turn right onto Genesee Ridge Road. After 1.7 miles turn right (at fire station) onto Currant Drive. Follow Currant Drive around the bend and turn left (Raindrop Lane will be on your right). Stay left at fork.
Ralston
: Rain Gutters
1
: Carpet, Tile, Wood
2
Golden
: Pantry, Open Floorplan, Smoke Free, Vaulted Ceiling(s), Stone Counters, Primary Suite, Synthetic Counters
Yes
Yes
Cash, Conventional, Jumbo, Other, VA Loan
: Foothills, Cul-De-Sac
Bell
LIV Sotheby's International Realty
189149
: None
: Townhouse
Genesee
$3,372
2024
: Double Pane Windows, Skylight(s)
P-D
04/29/2026
2305
Active
Yes
1
55052917
LIV05
Jefferson County R-1
Slab
Jefferson County R-1
In Unit
Jefferson County R-1
05/19/2026
2
1
04/29/2026
Public
: One

Genesee

24036 Currant Drive, Golden, CO 80401

3 Bedrooms
3 Total Baths
2,139 Square Feet
$889,500
Listing ID #7544841
Basic Details
Property Type : Residential
Listing Type : For Sale
Listing ID : 7544841
Price : $889,500
Bedrooms : 3
Rooms : 13
Total Baths : 3
Full Bathrooms : 1
3/4 Bathrooms : 1
1/2 Bathrooms : 1
Square Footage : 2,139 Square Feet
Year Built : 1985
Lot Area : 1,699 Acres
Lot Acres : 0.04
Property Sub Type : Townhouse
Status : Active
Co List Agent Full Name : Jeffrey Mailey
Co List Office Name : LIV Sotheby's International Realty
Originating System Name : REcolorado
Mortgage Calculator
$
$ %
years
%
$ %per year
$ %per year

$
Contact Agent
Open Dates
  • 1. 2026-05-24 (Start time: 2026-05-24T17:00:00Z - End time: 2026-05-24T19:00:00Z)