Metro Denver Luxury Homes For Sale

Property Description

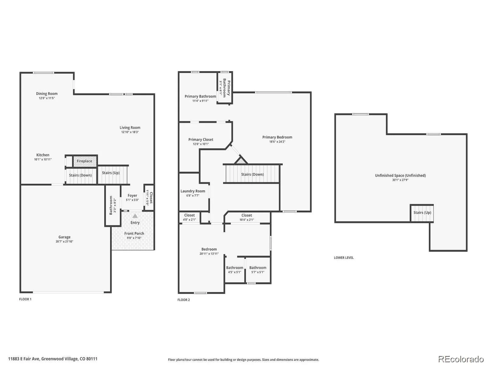
This is a great low maintenance townhome in a wonder location. The bright and airy open-concept main floor features a spacious living room with a cozy fireplace, a generous kitchen, and a dining area perfect for gatherings. Step outside to the fenced back patio, where you can relax under the shade of mature maple trees. Upstairs, you’ll find two generously sized bedrooms, each with en suite bathrooms, including a luxurious five-piece bathroom in the primary suite. These bedrooms have so much extra space you could easily create a home office totally separate from the bedroom with a divider or a baby nursery. The second floor also offers versatile flex spaces, ideal for an office, cozy reading nook or workout area. The unfinished basement, equipped with egress windows, provides ample storage or the potential for additional living space. Set in a tranquil neighborhood, this home grants access to a playground, private pool and clubhouse, tennis courts, and direct pathways into multiple open spaces. Conveniently located near a variety of amenities and with easy highway access, this townhome is also situated in the highly regarded Cherry Creek School District and very close to Cherry Creek State Park.

Features
: Forced Air
: Central Air
: Unfinished, Interior Entry
: Partial
: City, Mountain(s)
: Cats OK, Dogs OK
: Gas, Gas Log, Living Room
: Carbon Monoxide Detector(s), Smoke Detector(s)
: Covered, Patio
: 2
: Cooktop, Dryer, Dishwasher, Disposal, Microwave, Refrigerator, Washer, Oven
: Pool, Clubhouse, Playground, Park, Tennis Court(s), Gated
: Concrete, Lighted
: Composition
: Public Sewer
Address Map
CO
Arapahoe
Greenwood Village
80111
Fair
11883
Avenue
W105° 8' 59.5''
N39° 36' 10.1''
E
Additional Information
$455
Monthly
: Maintenance Grounds, Snow Removal, Trash, Maintenance Structure, Recycling, Road Maintenance
: Frame, Wood Siding, Stone
9
South
GPS/Maps
: 110V
Cottonwood Creek
: Lighting, Private Yard, Rain Gutters
1
: Carpet, Tile, Wood
2
Cherry Creek
: Pantry, High Ceilings, Open Floorplan, Granite Counters, Smoke Free, Kitchen Island, Ceiling Fan(s), Primary Suite, Five Piece Bath, Walk-In Closet(s)
Yes
Yes
1031 Exchange, Cash, Conventional, FHA, VA Loan
: Near Public Transit, Landscaped, Master Planned
Campus
Home Smart
034440143
: None
: Townhouse
Cherry Creek Vista
$3,570
2024
: Cable Available, Phone Available, Electricity Connected, Internet Access (Wired)
: Double Pane Windows
04/24/2026
2538
Active
Yes
1
Cherry Creek 5
1
Cherry Creek 5
In Unit
Cherry Creek 5
05/17/2026
3
1
04/24/2026
Public
: Two

Cherry Creek Vista

11883 E Fair Avenue, Greenwood Village, CO 80111

2 Bedrooms
3 Total Baths
1,825 Square Feet
$585,000
Listing ID #7828355
Basic Details
Property Type : Residential
Listing Type : For Sale
Listing ID : 7828355
Price : $585,000
Bedrooms : 2
Rooms : 9
Total Baths : 3
Full Bathrooms : 2
1/2 Bathrooms : 1
Square Footage : 1,825 Square Feet
Year Built : 2006
Lot Area : 2,614 Acres
Lot Acres : 0.06
Property Sub Type : Townhouse
Status : Active
Originating System Name : REcolorado
Mortgage Calculator
$
$ %
years
%
$ %per year
$ %per year

$
Contact Agent