Metro Denver Luxury Homes For Sale

Property Description

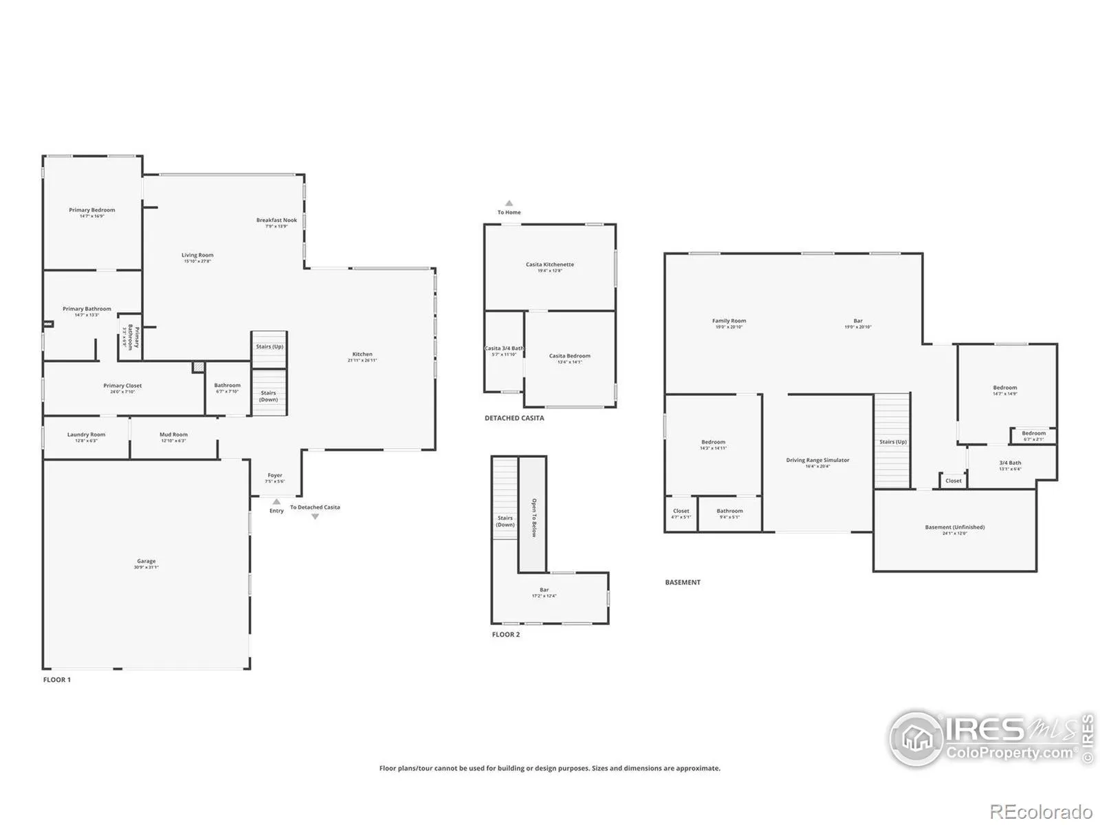
Welcome to elevated Colorado living at its finest. Perched above the #1 green & #2 tee box of the prestigious Raindance National Golf Course, this custom-built masterpiece offers an unrivaled blend of modern design, resort lifestyle, and mountain-view serenity. With over 6,377 sq ft of impeccably designed living space, this 4 bedroom, 5 bathroom estate includes a 602 sq ft private casita-complete with a flex-room, full bath, living area, and kitchenette-perfect for guests, multigenerational living, or luxury office/studio space. The heart of the home is a grand open-concept main floor featuring floor-to-ceiling windows, a fully collapsible glass wall, & seamless indoor-outdoor integration to the expansive deck with built-in hot tub & panoramic mountain views. The chef’s kitchen stuns with high-end appliances, massive island, designer cabinetry, and a butler’s pantry. Retreat to the main-level primary suite sanctuary with a spa-inspired bath, large shower & oversized custom walk-in closet. Downstairs, a daylight partial walkout basement features two additional en-suite bedrooms, a full bar, game area, & your own state-of-the-art golf simulator lounge. Cap it off with an 840 sq ft rooftop patio, offering unobstructed vistas of the Rocky Mountains, the course, & Windsor’s spectacular sunsets.

Features
: Forced Air
: Central Air, Ceiling Fan(s)
: Full, Walk-Out Access
: Fenced
: City, Mountain(s), Plains
: Smoke Detector(s)
: Deck, Patio
: 3
: Dryer, Dishwasher, Disposal, Microwave, Refrigerator, Self Cleaning Oven, Washer, Oven, Humidifier
: Contemporary
: Pool, Playground, Park, Tennis Court(s), Trail(s), Golf Course
: Oversized, Tandem
: Metal, Composition
: Public Sewer
Address Map
CO
Weld
Windsor
80550
Abundance
1759
Drive
W105° 3' 46.8''
N40° 27' 7''
Additional Information
$300
Annually
: Reserves, Security
: Stucco, Metal Siding
134
West
Skyview
: Balcony, Spa/Hot Tub
3
Windsor
: Pantry, Open Floorplan, Kitchen Island, Eat-in Kitchen, Vaulted Ceiling(s), Wet Bar, Primary Suite, Walk-In Closet(s), In-Law Floorplan
Yes
Yes
1031 Exchange, Cash, Conventional, VA Loan
: Sprinklers In Front, Open Space, Rolling Slope, On Golf Course
Windsor
eXp Realty LLC
R8972358
: House
Raindance 15th Fg
$9,977
2024
: Cable Available, Electricity Available, Natural Gas Available, Internet Access (Wired)
: Skylight(s), Window Coverings
Res
01/14/2026
6377
Active
Yes
1
Weld RE-4
Weld RE-4
In Unit
01/15/2026
Residential
01/14/2026
Public
: Two

Raindance 15th Fg

1759 Abundance Drive, Windsor, CO 80550

4 Bedrooms
5 Total Baths
6,095 Square Feet
$2,495,000
Listing ID #IR1049664
Basic Details
Property Type : Residential
Listing Type : For Sale
Listing ID : IR1049664
Price : $2,495,000
Bedrooms : 4
Rooms : 13
Total Baths : 5
Full Bathrooms : 1
3/4 Bathrooms : 3
1/2 Bathrooms : 1
Square Footage : 6,095 Square Feet
Year Built : 2022
Lot Acres : 0.18
Property Sub Type : Single Family Residence
Status : Active
Originating System Name : REcolorado
Mortgage Calculator
$
$ %
years
%
$ %per year
$ %per year

$
Contact Agent