Metro Denver Luxury Homes For Sale

Property Description

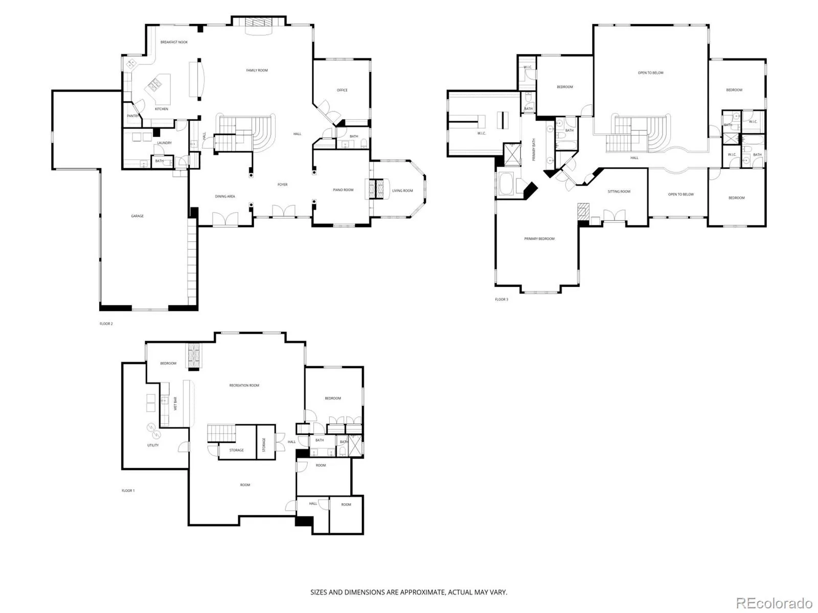
Welcome to this wonderful property in the coveted Cherry Hills Farm, a 3/4 acre site at the Southeast corner of the development. Traditional looking from the exterior with some wonderful contemporary interior design elements. The grand entry area opens to a eye popping two story Great Room, perfect for gathering & entertaining. Flanking the left of the entry is the formal dining room with coffered ceiling and butler’s pantry. Going the south direction is a perfect music room with room for a grand piano and connected to a step down cozy conversation Kiva with an inviting fireplace. The kitchen has a large center island, working counter, breakfast room and all newer stainless appliances. Additionally on the main floor is a nice home office and luxurious powder room, laundry & 2nd half bath. The double sided staircase leads up to the four upper bedrooms all with ensuite baths. The large primary suite features vaulted ceilings, a see-through fireplace to a calming sitting area. The primary bath has a soaking tub, large shower and a double walk-in closet. The finished basement offers an open media & game room with an electric fireplace & wet bar. There is a gym area which is currently a space for ping pong and air hockey. There is a specialty sauna room devoted to the art of Himalayan Sea Salt and an indoor exercise pool. The is also a fifth bedroom and 3/4 bathroom. Experience the blend of classic design and contemporary living in this exceptional home, ready for your new personal touches & updating.

Features
: Indoor
: Forced Air, Natural Gas
: Central Air
: Finished
: Partial
: Cats OK, Dogs OK
: Great Room, Family Room, Electric, Primary Bedroom, KIVA
: Carbon Monoxide Detector(s), Smoke Detector(s), Radon Detector
: Front Porch
: 4
: Cooktop, Dryer, Dishwasher, Disposal, Microwave, Refrigerator, Washer, Gas Water Heater, Convection Oven, Humidifier
: Traditional
: Playground, Park, Trail(s), Security, Gated
: Concrete, Oversized, Finished Garage, Storage, Circular Driveway, Electric Vehicle Charging Station(s), 220 Volts
: Shingle, Other
: Community Sewer
: Bath
Address Map
CO
Arapahoe
Englewood
80113
Cherry Hills Farm
43
Drive
W105° 2' 55''
N39° 37' 28.9''
Additional Information
$1,570
Quarterly
: Maintenance Grounds, Trash, Recycling, Reserves, Security
: Brick, Stucco
West
University to Belview, North on University three blocks to the Cherry Hills Farm Entrance, right to the address #43
: 220 Volts
Cherry Hills Village
: Lighting, Private Yard, Water Feature, Gas Valve
4
: Carpet, Tile, Wood
4
Cherry Creek
: Pantry, High Ceilings, Open Floorplan, Smoke Free, Kitchen Island, Eat-in Kitchen, Vaulted Ceiling(s), Wet Bar, Entrance Foyer, Built-in Features, Sauna, Tile Counters, Primary Suite, Five Piece Bath, Radon Mitigation System, Hot Tub, Walk-In Closet(s), Breakfast Bar
Yes
Yes
Cash, Jumbo
: Level, Sprinklers In Front, Landscaped, Many Trees, Sprinklers In Rear, Cul-De-Sac
West
Kentwood Real Estate City Properties
033218582
: None
: House
Cherry Hills Farm
$15,858
2024
: Electricity Connected, Natural Gas Connected, Internet Access (Wired)
: Double Pane Windows, Window Coverings
10/26/2025
6445
Active
Yes
1
786175
00587
Cherry Creek 5
Concrete Perimeter
Cherry Creek 5
Sink, Common Area
Cherry Creek 5
10/27/2025
10/26/2025
Public
: Two

Cherry Hills Farm

43 Cherry Hills Farm Drive, Englewood, CO 80113

5 Bedrooms
7 Total Baths
6,405 Square Feet
$2,950,000
Listing ID #2981949
Basic Details
Property Type : Residential
Listing Type : For Sale
Listing ID : 2981949
Price : $2,950,000
Bedrooms : 5
Rooms : 25
Total Baths : 7
Full Bathrooms : 3
3/4 Bathrooms : 2
1/2 Bathrooms : 2
Square Footage : 6,405 Square Feet
Year Built : 1994
Lot Area : 33,106 Acres
Lot Acres : 0.76
Property Sub Type : Single Family Residence
Status : Active
Co List Agent Full Name : Kevin Garrett
Co List Office Name : Kentwood Real Estate City Properties
Originating System Name : REcolorado
Mortgage Calculator
$
$ %
years
%
$ %per year
$ %per year

$
Contact Agent