Metro Denver Luxury Homes For Sale

Property Description

Welcome to this spacious and beautifully maintained 7-bedroom, 4-bathroom home located in the highly sought-after Villages at Riverdale community in Thornton. This exceptional property offers a rare combination of size, functionality, and value with lower property taxes compared to many homes in the area and paid-off solar panels for incredible energy savings.

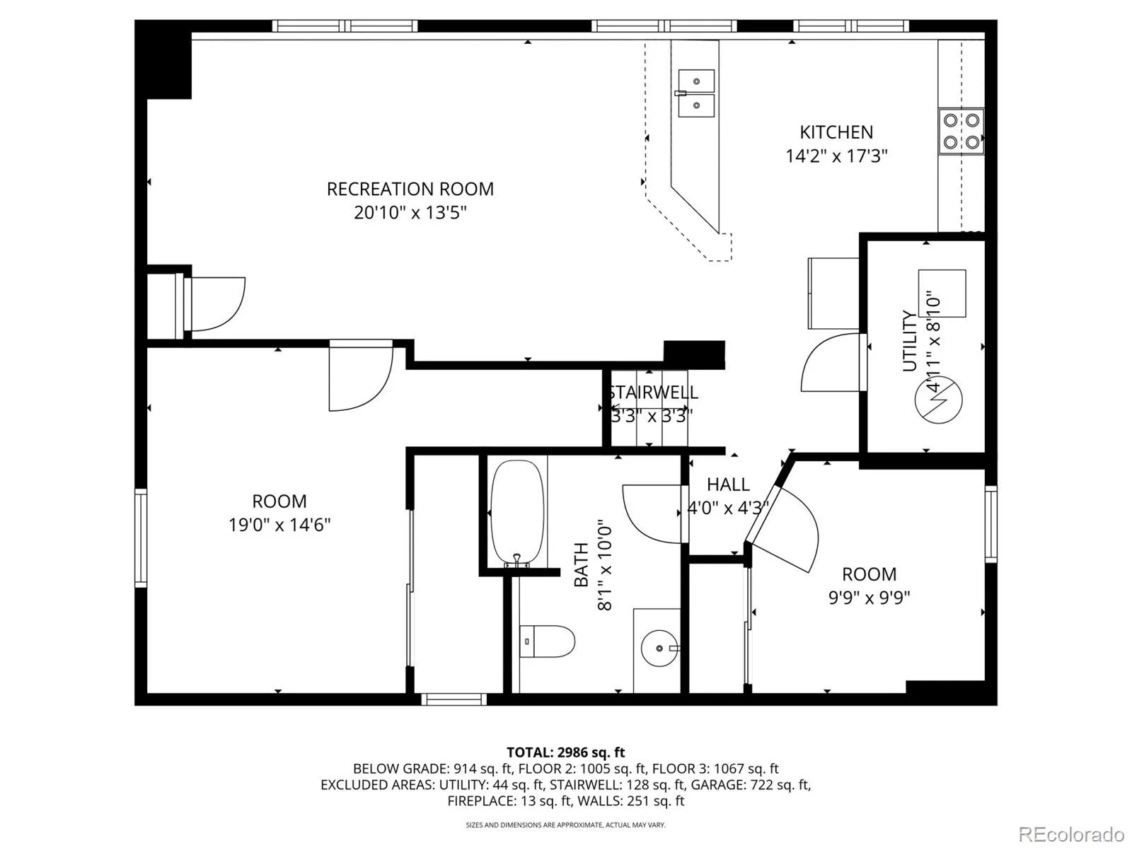
Situated on a corner lot just steps from open space and a peaceful pond, this home offers both privacy and convenience. The finished basement includes two additional bedrooms, a full kitchenette with a refrigerator, stove and oven, and microwave, plus a bonus room that is perfect for multigenerational living or a guest suite.

The main floor features an inviting front sitting room as well as a living room with sound surround and a cozy fireplace. The open kitchen has plenty of cabinets and stainless-steel appliances. The home is equipped with a whole-house water softener and a water purifier at the kitchen sink, as well as a convenient main-level bedroom and full bath. Upstairs, you’ll find five spacious bedrooms including a luxurious primary suite with two walk-in closets and a five-piece bathroom.

Additional highlights include a concrete tile roof that helps reduce homeowner’s insurance costs and producing mineral rights that provide monthly income, which will be transferred to the new owner.

Lastly, the quaint backyard includes a lovely deck and a convenient storage shed!

Located close to great schools, shopping, and parks, this home offers the perfect blend of comfort, efficiency, and opportunity. Don’t miss your chance to own one of the most versatile and energy-efficient homes in the Villages at Riverdale.

Features
: Forced Air
: Central Air
: Finished
: Full
: Living Room
: Carbon Monoxide Detector(s), Smoke Detector(s)
: Deck, Front Porch
: 3
: Dishwasher, Disposal, Microwave, Range, Refrigerator, Water Softener, Water Purifier
: Traditional
: Playground, Park, Trail(s)
: Concrete, Storage
: Spanish Tile
: Public Sewer
Address Map
CO
Adams
Thornton
80602
130th
7593
Circle
W105° 6' 1.2''
N39° 55' 55.7''
E
Additional Information
Monthly
: Frame, Brick, Wood Siding
Southwest
128th Ave & Quebec St. Head east on 128th Ave, Turn left onto Tamarac St, At the traffic circle, take the 3rd exit onto 129th Ave, Turn right onto Spruce St, Turn right onto 130th Cir. Property will be on the right.
Brantner
: Private Yard, Rain Gutters
1
: Carpet, Tile
3
Riverdale Ridge
: Pantry, Granite Counters, Kitchen Island, Eat-in Kitchen, Vaulted Ceiling(s), High Speed Internet, Ceiling Fan(s), Built-in Features, Primary Suite, Five Piece Bath, Walk-In Closet(s)
Yes
Yes
Cash, Conventional, FHA, VA Loan
: Corner Lot, Sloped
Roger Quist
Valor Real Estate, LLC
R0146849
: None
: House
The Villages at Riverdale
$3,754
2024
: Cable Available, Electricity Available, Natural Gas Available, Phone Available, Internet Access (Wired)
: Double Pane Windows
RES
10/23/2025
2966
Active
Yes
1
Live/Work
School District 27-J
Slab
School District 27-J
In Unit
School District 27-J
11/13/2025
10/23/2025
Public
: Two

The Villages at Riverdale

7593 E 130th Circle, Thornton, CO 80602

7 Bedrooms
4 Total Baths
2,966 Square Feet
$680,000
Listing ID #5777824
Basic Details
Property Type : Residential
Listing Type : For Sale
Listing ID : 5777824
Price : $680,000
Bedrooms : 7
Rooms : 18
Total Baths : 4
Full Bathrooms : 3
3/4 Bathrooms : 1
Square Footage : 2,966 Square Feet
Year Built : 2007
Lot Area : 7,841 Acres
Lot Acres : 0.18
Property Sub Type : Single Family Residence
Status : Active
Originating System Name : REcolorado
Mortgage Calculator
$
$ %
years
%
$ %per year
$ %per year

$
Contact Agent