Metro Denver Luxury Homes For Sale

Property Description

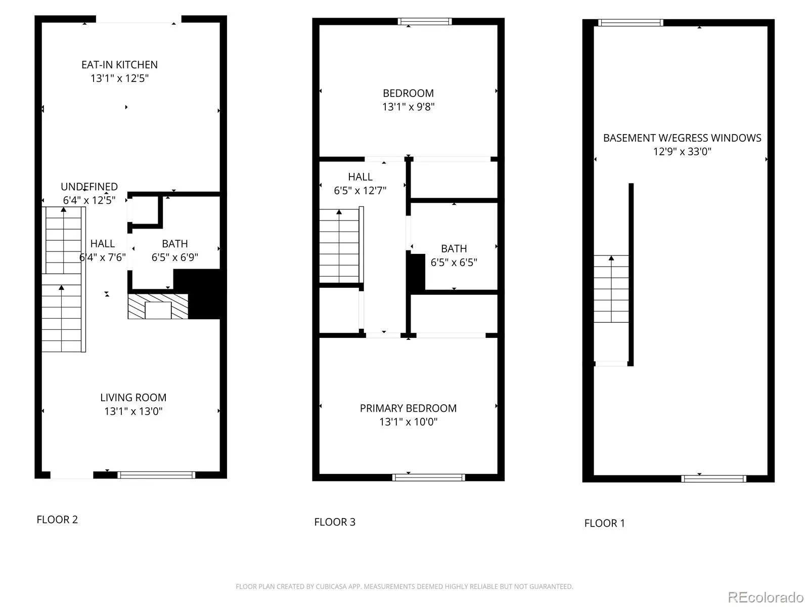
Welcome to this lovely townhouse offering comfort, space, and potential! Step inside to a large, inviting living room that’s perfect for relaxing or entertaining. The bright eat-in kitchen features plenty of cabinet space, a convenient pantry, and opens to a lovely deck… ideal for enjoying your morning coffee or evening unwind.

Upstairs, you’ll find a spacious primary bedroom that easily accommodates a king-sized bed. The unfinished basement is a standout feature and is fully plumbed for a future bathroom and designed with two large egress windows, providing the perfect opportunity to add extra bedrooms, a family room, or a home office.

Located close to Quincy Reservoir, shopping, and dining, and nestled within the desirable Cherry Creek School District, this home combines comfort, convenience, and value. With its charm, functionality, and room to grow, this townhouse is ready to welcome you home!

Features
: Forced Air
: Central Air
: Unfinished
: Family Room, Living Room
: Carbon Monoxide Detector(s), Smoke Detector(s)
: Deck
: 1
: Disposal, Range, Refrigerator, Oven
: Contemporary
: Shingle
: Community Sewer
Address Map
CO
Arapahoe
Aurora
80013
Loyola
17683
Drive
W105° 13' 0.5''
N39° 38' 43.4''
E
Additional Information
$345
Monthly
: Sewer, Snow Removal, Trash, Water, Maintenance Structure, Road Maintenance, Exterior Maintenance w/out Roof
: Wood Siding
Cimarron
1
: Carpet, Laminate, Wood
Smoky Hill
: Eat-in Kitchen, Ceiling Fan(s)
Yes
Yes
Cash, Conventional
Horizon
Anjeli Dwyer
031624258
: None
: Townhouse
Victoria Place
$1,513
2024
: Cable Available, Electricity Available
: Double Pane Windows
10/19/2025
1480
Active
Yes
Cherry Creek 5
Cherry Creek 5
Cherry Creek 5
10/20/2025
1
10/19/2025
E
Public
: Two

Victoria Place

17683 E Loyola Drive, Aurora, CO 80013

2 Bedrooms
2 Total Baths
980 Square Feet
$310,000
Listing ID #2284614
Basic Details
Property Type : Residential
Listing Type : For Sale
Listing ID : 2284614
Price : $310,000
Bedrooms : 2
Rooms : 7
Total Baths : 2
Full Bathrooms : 1
1/2 Bathrooms : 1
Square Footage : 980 Square Feet
Year Built : 1982
Property Sub Type : Townhouse
Status : Active
Originating System Name : REcolorado
Mortgage Calculator
$
$ %
years
%
$ %per year
$ %per year

$
Contact Agent