Metro Denver Luxury Homes For Sale

Property Description

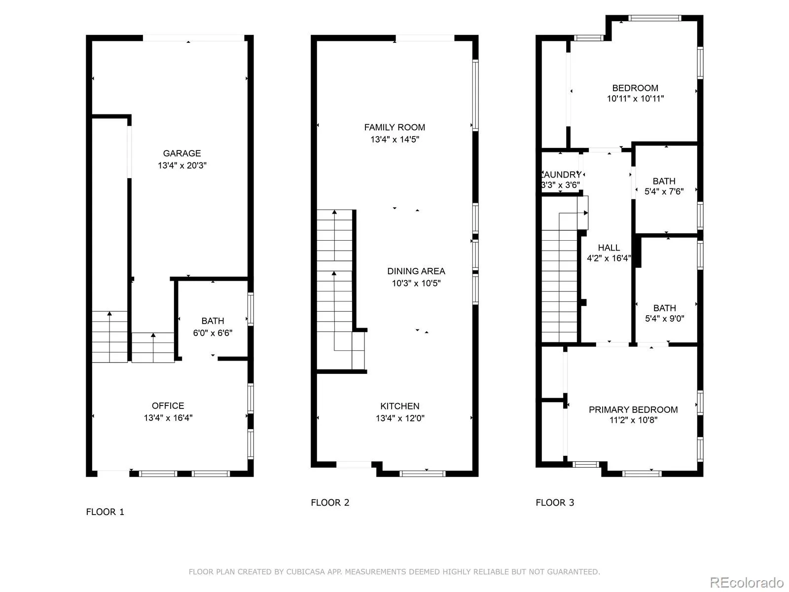
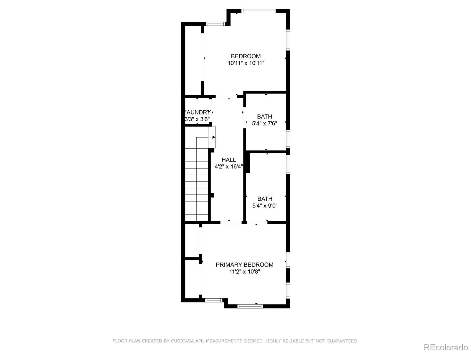
Welcome to this brand-new luxury townhome offering the best of Denver living with stunning views of Sloan’s Lake, the Rocky Mountains, and the vibrant downtown skyline. Designed across three levels with an expansive fourth-floor rooftop deck, this home blends modern style with thoughtful functionality, creating the perfect balance for both entertaining and everyday living. The main level opens with a versatile office highlighted by luxury vinyl flooring and recessed lighting—an ideal space for working from home or creative pursuits—paired with a stylish powder bath for convenience. Upstairs, the second level is the heart of the home, featuring a bright open-concept design where the family room and dining area flow seamlessly into the gourmet kitchen. The kitchen showcases quartz countertops, stainless steel Samsung appliances, a striking tile backsplash, and soft-close cabinetry, all illuminated by recessed lighting for a sleek and inviting atmosphere. On the third level, the private primary suite offers a serene retreat with dual closets, recessed lighting, and a spa-inspired bathroom complete with light gray soft-close cabinetry, quartz countertops, black accents, and a beautifully tiled walk-in shower. A secondary bedroom with an oversized closet also enjoys its own full en suite bath with tub and quartz-topped vanity, creating a perfect guest suite or secondary living space. A conveniently located laundry area completes this floor. Crowning this remarkable residence is the expansive rooftop deck, where panoramic views stretch from Sloan’s Lake to the Front Range and across the glittering downtown skyline. Whether hosting friends, enjoying sunrise coffee, or watching the sun dip behind the mountains, this rooftop defines Denver living at its finest. Just steps from Sloan’s Lake, trails, and green spaces, and minutes from Denver’s best dining, shopping, and nightlife, this townhome offers a lifestyle that is truly unmatched. WELCOME HOME!

Features
: Forced Air
: Central Air
: None
: Water, City, Mountain(s)
: Carbon Monoxide Detector(s)
: Deck
: 2
: Unfurnished
: Cooktop, Dishwasher, Disposal, Microwave, Refrigerator, Self Cleaning Oven, Oven
: Contemporary
: Concrete, Finished Garage, Lighted, Storage, Dry Walled
: Membrane
: Public Sewer
Address Map
CO
Denver
Denver
80212
26th
5128
Avenue
W106° 56' 49.6''
N39° 45' 15.9''
W
Additional Information
$36
Monthly
: Maintenance Grounds, Snow Removal, Water
: Cement Siding, Stone
North
: 110V
Edison
: Lighting, Rain Gutters
: Carpet, Tile, Vinyl
1
North
: Open Floorplan, Quartz Counters, Smoke Free, Ceiling Fan(s), Entrance Foyer, Primary Suite
Yes
Yes
Cash, Conventional, FHA, VA Loan
Strive Sunnyside
Coldwell Banker Realty 18
2312-08-065
: None
: Townhouse
Sloans Lake
$2,674
2024
: Cable Available, Electricity Available, Phone Available, Electricity Connected
10/17/2025
1356
Active
Yes
1
007170
CBR18
Denver 1
Structural
Denver 1
In Unit
Denver 1
11/12/2025
1
10/17/2025
311
Public
: Three Or More

Sloans Lake

5128 W 26th Avenue, Denver, CO 80212

2 Bedrooms
3 Total Baths
1,356 Square Feet
$750,000
Listing ID #8564899
Basic Details
Property Type : Residential
Listing Type : For Sale
Listing ID : 8564899
Price : $750,000
Bedrooms : 2
Rooms : 10
Total Baths : 3
Full Bathrooms : 1
3/4 Bathrooms : 1
1/2 Bathrooms : 1
Square Footage : 1,356 Square Feet
Year Built : 2024
Lot Area : 1,895 Acres
Lot Acres : 0.04
Property Sub Type : Townhouse
Status : Active
Co List Agent Full Name : Illona Gerlock
Co List Office Name : Coldwell Banker Realty 18
Originating System Name : REcolorado
Mortgage Calculator
$
$ %
years
%
$ %per year
$ %per year

$
Contact Agent