Metro Denver Luxury Homes For Sale
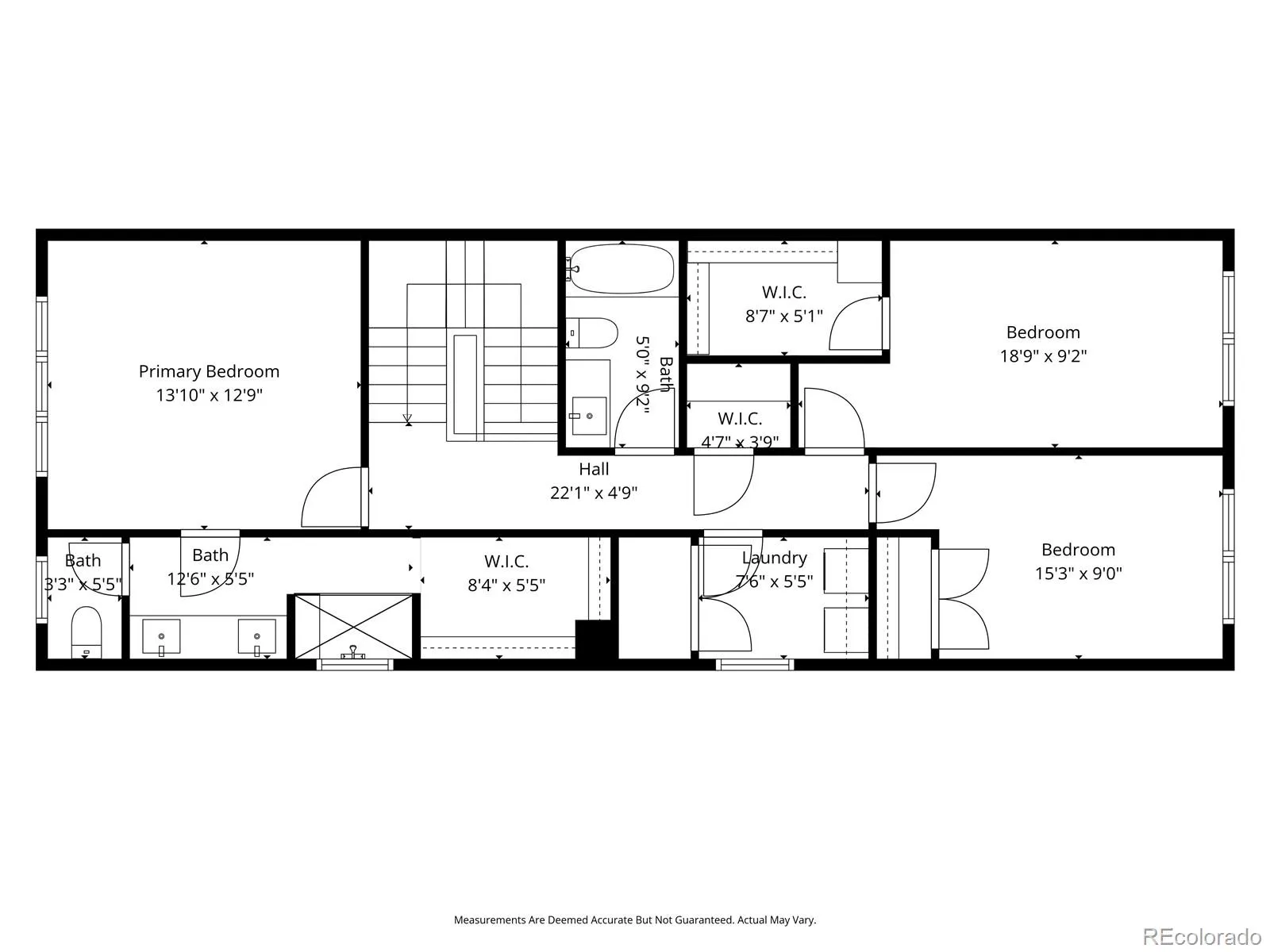
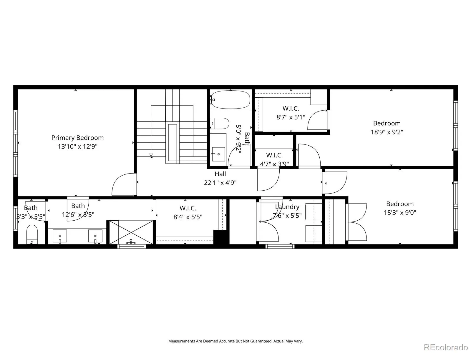
Welcome to this better-than-new half duplex in the heart of Overland, just minutes from Platt Park. Thoughtfully designed with a superior floor plan and timeless, elevated finishes, this home stands out among similar properties. From the moment you arrive, the modern curb appeal and professional landscaping make a lasting impression. Step inside to a welcoming entryway—perfect for greeting guests or slipping off your shoes—before entering the bright, open-concept living, dining, and kitchen area. Beautiful dark engineered hardwood floors, expansive windows, and light cabinetry create a striking yet inviting aesthetic. Custom high-end window treatments add a refined touch. The main level also features a versatile office or nonconforming fourth bedroom, a powder room, a convenient mudroom, and sliding doors that lead to the private backyard with new turf and a two-car garage. Upstairs, you’ll find three spacious bedrooms and two full bathrooms. The primary suite offers a luxurious retreat with a spa-like bath featuring dual sinks and a generous walk-in closet. Secondary bedrooms are equally well-appointed, sharing a stylish full bathroom. All bedrooms are finished with premium wool carpeting for an added sense of comfort. A laundry room, with washer and dryer included, on this level as well for extra ease. Two car garage completes this property. Situated in a neighborhood with incredible access to Denver’s hottest destinations—and with no HOA—this home offers both lifestyle and lasting value.
 
								 
                     
                     
                     
                     
                     
                     
                     
                     
                     
                     
                     
                     
                     
                     
                     
                     
                     
                     
                     
                     
                     
                     
                     
                     
                     
                     
                     
                     
                     
                     
                     
                     
                     
                     
                     
                     
                     
									 
				