Metro Denver Luxury Homes For Sale

Property Description

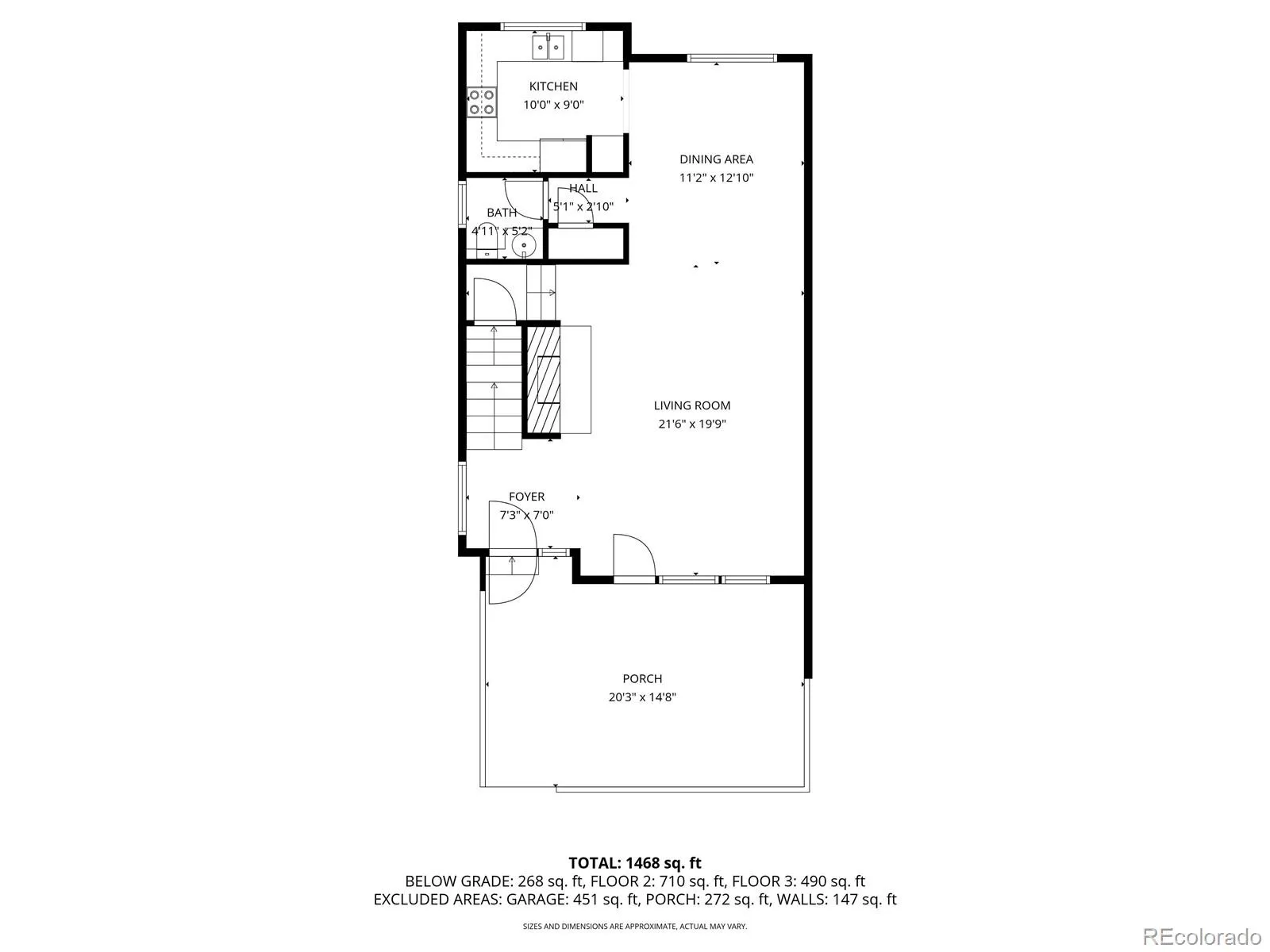
Welcome to 145 Blue Spruce Court, where comfort, privacy, and Colorado charm come together. This well-maintained end-unit townhome offers the ease of low-maintenance living while giving you the rare benefit of having only one shared wall. The spacious light-filled living room with fireplace flows effortlessly into the dining room and updated kitchen with granite countertops and a stainless appliance package including a brand new microwave and range. The living room sliding doors open directly to a private front fenced in patio, which creates an outdoor retreat—perfect for quiet mornings, entertaining friends, or simply enjoying the Colorado weather. Surrounded by mature trees and open green space, this home offers a peaceful setting with a true sense of nature right outside your door. From the two upper level bedrooms, you’ll enjoy a peak of mountain views, reminding you daily of the beauty of Colorado living. The primary bedroom offers a walk-in closet and access to the attached full bath. The unfinished basement includes a full sized laundry area and interior access to the two car attached garage along with additional storage. Everyday conveniences add to the appeal, with guest parking and your mailbox just steps from the front door. Highlands Ranch living offers limitless amenities… access to 4 Highlands Ranch Rec Centers with amazing clubhouse, fitness, pools, tennis courts, rock walls, kids programming & activities, classes & much more. The incredible Highlands Ranch trail system, 21 parks & playgrounds. Top notch Douglas County schools! Minutes from grocery stores, restaurants and movie theater. Blending functionality with an inviting atmosphere, this is more than a home—it’s a lock and leave lifestyle. Whether you’re looking to unwind in your private sanctuary or explore the scenic surroundings, this Highlands Ranch gem is ready to welcome you. Explore more: https://145bluesprucecourt.com/

Features
: Forced Air
: Central Air
: Unfinished
: Cats OK, Dogs OK
: Living Room
: Carbon Monoxide Detector(s), Smoke Detector(s)
: Front Porch, Patio
: 2
: Dryer, Dishwasher, Disposal, Microwave, Range, Refrigerator, Washer, Gas Water Heater
: Contemporary
: Pool, Clubhouse, Playground, Tennis Court(s), Trail(s), Fitness Center, Spa/Hot Tub
: Guest
: Composition
: Public Sewer
Address Map
CO
Douglas
Highlands Ranch
80126
Blue Spruce
145
Court
Chalet Townhomes
W105° 0' 36.4''
N39° 33' 5.1''
Additional Information
$171
Quarterly
: Wood Siding
East
Visitor parking is right outside the unit.
Northridge
1
: Carpet, Laminate
2
Mountain Vista
: Open Floorplan, Granite Counters, Smoke Free, Vaulted Ceiling(s), Ceiling Fan(s), Laminate Counters, Walk-In Closet(s)
Yes
Yes
Cash, Conventional, FHA, VA Loan
: Near Public Transit, Open Space
Mountain Ridge
MB Lydin Group Realty LLC
R0310631
: None
: Townhouse
Highlands Ranch
$1,961
2024
: Cable Available, Electricity Connected, Natural Gas Connected, Internet Access (Wired)
: Window Coverings
PDU
10/02/2025
1898
Active
Yes
1
026952
MBLGR
Douglas RE-1
Douglas RE-1
In Unit
Douglas RE-1
10/03/2025
1
10/03/2025
Public
: Two

Highlands Ranch

145 Blue Spruce Court, Highlands Ranch, CO 80126

2 Bedrooms
2 Total Baths
1,189 Square Feet
$440,000
Listing ID #4640720
Basic Details
Property Type : Residential
Listing Type : For Sale
Listing ID : 4640720
Price : $440,000
Bedrooms : 2
Rooms : 9
Total Baths : 2
Full Bathrooms : 1
1/2 Bathrooms : 1
Square Footage : 1,189 Square Feet
Year Built : 1985
Lot Area : 0.04 Acres
Property Sub Type : Townhouse
Status : Active
Co List Agent Full Name : Michelle Schmeltzer
Co List Office Name : MB Lydin Group Realty LLC
Originating System Name : REcolorado
Mortgage Calculator
$
$ %
years
%
$ %per year
$ %per year

$
Contact Agent