Metro Denver Luxury Homes For Sale

Property Description

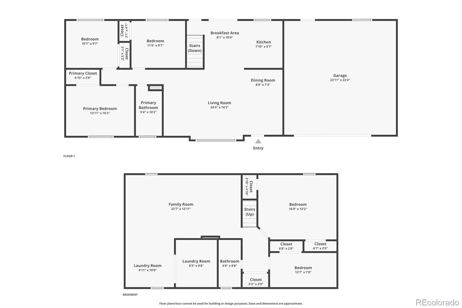
Welcome home to this amazing 4-bedroom ranch home in the heart of the vibrant Broadway Estates neighborhood. Just steps from Ben Franklin Pool & Sprayground, Milliken Park, DeKoevend Park, the scenic High Line Canal, and Gudy Gaskill Elementary, and minutes away from Streets at Southglenn. This home blends comfort, style, and convenience with main-level living featuring 3 spacious bedrooms, a fully renovated bathroom, and a bright, open-concept living and dining area. The kitchen flows seamlessly to a walkout covered patio overlooking a huge 0.24-acre lot. Bonus opportunity!! Seller owned solar panels transfer with the property, which greatly reduce energy costs. The separate entrance off the patio could be used as a private entry to the basement living area, making for a great rental or AirBnB opportunity (allowed in Centennial!). NO HOA!! The basement is fully finished basement with a massive second living area, counters/sink with opportunity to convert into a kitchenette, laundry room, a large fourth bedroom, and a versatile bonus room—ideal for guests, a home office, rental, or multigenerational living. The property sewer line was replaced in 2023, upstairs bathroom remodeled in 2021, HVAC installed in 2019, and the sprinkler lines are all professionally maintained. An oversized 2 car garage includes plenty of space for larger vehicles plus a work station. The oversized driveway includes an additional paved parking space. This home is move in ready, and has room for some sweat equity whether for yourself or as a rental opportunity. Perfectly located near various shopping, amenities, and schools, parks and open space, making this an ideal spot for any lifestyle.

Features
: Forced Air
: Central Air, Attic Fan
: Finished, Full
: Full
: Cats OK, Dogs OK
: Carbon Monoxide Detector(s), Radon Detector
: Covered, Patio
: 2
: Unfurnished
: Cooktop, Dryer, Dishwasher, Disposal, Refrigerator, Washer, Gas Water Heater, Oven
: Traditional
: Concrete, Oversized
: Shingle
: Public Sewer
Address Map
CO
Arapahoe
Centennial
80121
Panama
1805
Drive
W105° 1' 57.1''
N39° 36' 7.9''
E
Additional Information
: Vinyl Siding, Brick, Concrete
South
GPS
Gudy Gaskill
: Private Yard, Rain Gutters, Playground
: Carpet, Tile, Wood
2
Littleton
: Smoke Free, Laminate Counters, Radon Mitigation System, Breakfast Bar, In-Law Floorplan
Yes
Yes
Cash, Conventional, FHA, VA Loan
: Level, Near Public Transit, Sprinklers In Front, Landscaped, Sprinklers In Rear, Irrigated
Euclid
Compass - Denver
032125829
: None
: House
Broadway Estates
$4,618
2024
: Double Pane Windows, Egress Windows
09/16/2025
2151
Active
1
Littleton 6
Slab
Littleton 6
Littleton 6
10/22/2025
09/16/2025
Public
: One

Broadway Estates

1805 E Panama Drive, Centennial, CO 80121

4 Bedrooms
2 Total Baths
2,151 Square Feet
$570,000
Listing ID #2535378
Basic Details
Property Type : Residential
Listing Type : For Sale
Listing ID : 2535378
Price : $570,000
Bedrooms : 4
Rooms : 13
Total Baths : 2
Full Bathrooms : 1
3/4 Bathrooms : 1
Square Footage : 2,151 Square Feet
Year Built : 1963
Lot Area : 10,864 Acres
Lot Acres : 0.25
Property Sub Type : Single Family Residence
Status : Active
Originating System Name : REcolorado
Mortgage Calculator
$
$ %
years
%
$ %per year
$ %per year

$
Contact Agent