Metro Denver Luxury Homes For Sale

Property Description

****Contact builder today about Special Financing for this home – terms and conditions apply**

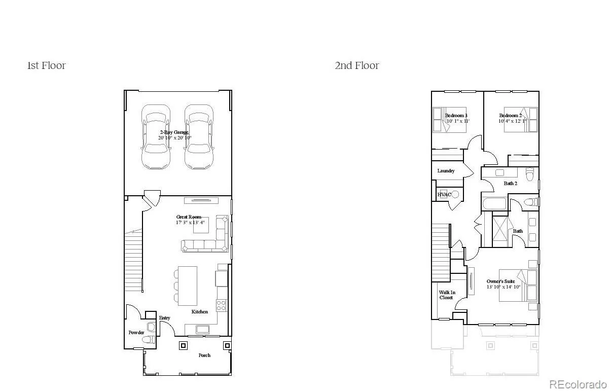
Anticipated Completion April, 2026! Low maintenance living in this gorgeous new Riano Ridge community. Just lock up and go. This brand new 2-story townhome is in a 5-plex and features 3 bedrooms, 2.5 baths, great room, kitchen, loft, upper laundry, 2 car attached garage (rear alley entry) and conditioned crawl space. Gorgeous finishes and upgrades throughout including luxury vinyl plank flooring, stainless steel appliances, slab quartz counters and more. The builder provides the latest in energy efficiency and state of the art technology with several fabulous floorplans to choose from. Energy efficiency, and technology/connectivity seamlessly blended with luxury to make your new house a home. Photos are model only and subject to change.

Features
: Forced Air, Natural Gas
: Central Air
: Crawl Space
: None
: Yes, Cats OK, Dogs OK
: Carbon Monoxide Detector(s), Smoke Detector(s)
: Patio
: 2
: Dishwasher, Disposal, Microwave, Refrigerator, Oven
: Concrete
: Composition
: Public Sewer
Address Map
CO
Larimer
Loveland
80538
Gladstone
3067
Avenue
W106° 52' 24.4''
N40° 25' 21.9''
Additional Information
$100
Monthly
: Frame, Other
Ponderosa
: Carpet, Tile, Vinyl
2
Loveland
: Smoke Free, Kitchen Island, Primary Suite, Walk-In Closet(s)
Yes
Yes
Cash, Conventional, FHA, VA Loan
Lucile Erwin
RE/MAX Professionals
R1677782
: None
: Townhouse
Riano Ridge
$5,564
2024
: Cable Available, Electricity Available, Natural Gas Available, Phone Available, Electricity Connected, Natural Gas Connected
: Double Pane Windows
09/11/2025
1623
Active
Yes
1
Thompson R2-J
Thompson R2-J
In Unit
Thompson R2-J
10/24/2025
5
1
09/11/2025
Public
: Two

Riano Ridge

3067 Gladstone Avenue, Loveland, CO 80538

3 Bedrooms
3 Total Baths
1,623 Square Feet
$529,900
Listing ID #2168341
Basic Details
Property Type : Residential
Listing Type : For Sale
Listing ID : 2168341
Price : $529,900
Bedrooms : 3
Rooms : 10
Total Baths : 3
Full Bathrooms : 1
3/4 Bathrooms : 1
1/2 Bathrooms : 1
Square Footage : 1,623 Square Feet
Year Built : 2026
Lot Area : 2,600 Acres
Lot Acres : 0.06
Property Sub Type : Townhouse
Status : Active
Originating System Name : REcolorado
Mortgage Calculator
$
$ %
years
%
$ %per year
$ %per year

$
Contact Agent