Metro Denver Luxury Homes For Sale

Property Description

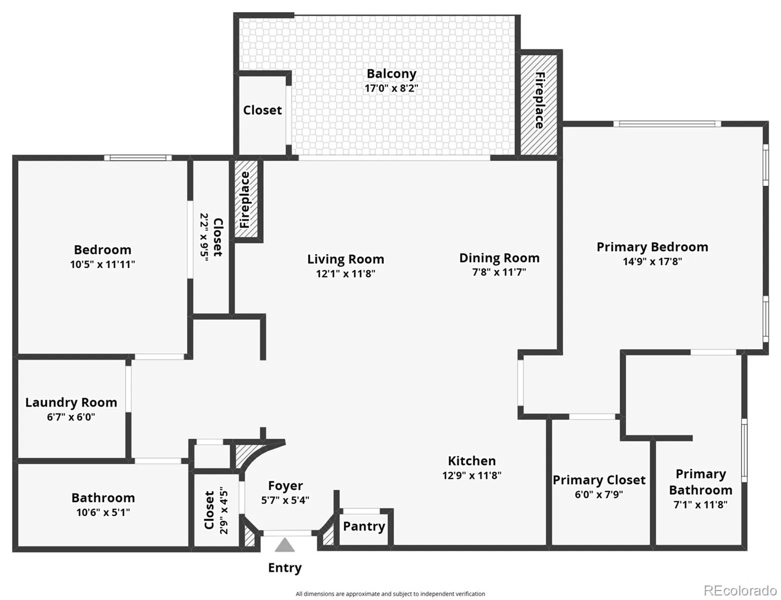
Welcome to this beautifully maintained 2 bed, 2 bath Englewood condo offering an open floor plan filled with natural light, a cozy fireplace, and a built-in desk nook for working from home. The modern kitchen features a large island with seating, stainless steel appliances, and plenty of storage.

Relax or entertain on your private covered balcony with a gas fireplace; perfect for those grill days! The 1 car detached garage provides secure parking and extra storage space. Inside, you’ll find a dedicated laundry room with washer/dryer and storage for added convenience. The primary suite includes a walk-in closet and en-suite bath, while the second bedroom and bathroom add flexibility for guests or a home office.

Located directly across from John Derry Park (with soccer and baseball fields, basketball courts, and beach volleyball) and near The Club at Inverness, this home blends convenience, recreation, and comfort. Easy access to I-25, E-470, light rail, and Park Meadows Mall puts shopping, dining, and commuting within minutes.

Don’t miss this Englewood gem! Schedule your showing today!

Features
: Forced Air
: Central Air
: City
: Living Room, Outside
: Covered
: 1
: Unfurnished
: Dryer, Dishwasher, Microwave, Range, Refrigerator, Washer, Gas Water Heater, Oven
: Composition
: Public Sewer
Address Map
CO
Douglas
Englewood
80112
Inverness
307
Way
Avalon at Inverness
W105° 8' 10.4''
N39° 33' 56.5''
S
Additional Information
$440
Monthly
: Maintenance Grounds, Sewer, Snow Removal, Trash, Water, Maintenance Structure, Recycling
: Frame, Brick
North
Eagle Ridge
: Balcony, Elevator
2
1
Highlands Ranch
: Elevator, Pantry, High Ceilings, Open Floorplan, Kitchen Island, Entrance Foyer, Primary Suite, Walk-In Closet(s)
Yes
Yes
1031 Exchange, Cash, Conventional, FHA, VA Loan
Cresthill
Keller Williams DTC
R0479382
: None
: Low Rise (1-3)
Avalon at Inverness
$2,372
2024
08/29/2025
1105
Active
Yes
55056737
KWR30
Douglas RE-1
2
Douglas RE-1
In Unit
Douglas RE-1
09/27/2025
1
08/29/2025
206
Public
: One

Avalon at Inverness

307 S Inverness Way, Englewood, CO 80112

2 Bedrooms
2 Total Baths
1,105 Square Feet
$405,000
Listing ID #4168684
Basic Details
Property Type : Residential
Listing Type : For Sale
Listing ID : 4168684
Price : $405,000
Bedrooms : 2
Rooms : 8
Total Baths : 2
Full Bathrooms : 2
Square Footage : 1,105 Square Feet
Year Built : 2009
Property Sub Type : Condominium
Status : Active
Co List Agent Full Name : Nick Cooley
Co List Office Name : Keller Williams DTC
Originating System Name : REcolorado
Mortgage Calculator
$
$ %
years
%
$ %per year
$ %per year

$
Contact Agent