Metro Denver Luxury Homes For Sale

Property Description

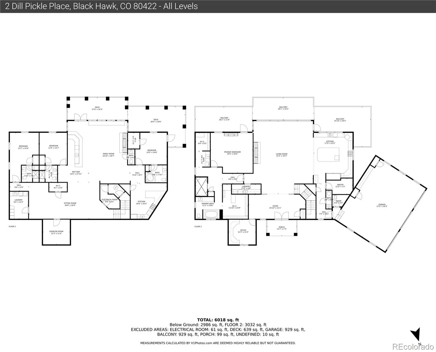
Stunning Mountain Modern Masterpiece with AWESOME DIVIDE VIEWS on 5 acre corner lot with rock outcroppings and aspens.
Feng Shui Designed with attention to details. Exterior is real stone from Telluride and cedar siding with stamped concrete heated front stoop. Great for entertaining with 2 large outdoor decks (upper 832s.f. and lower 648s.f.) 2 Kitchens with Crystal brand cabinets, 2 Laundry rooms, huge kitchen island with 8+ seating, Family/media room with large bar. Multi-zone Sonos system and Commercial high-speed internet throughout house, garage and decks. Whole house surge protector. 3 gas fireplaces. Warm-board brand subfloor with in-floor radiant heat, porcelain tile floors, Whole house gas generator. Primary bedroom suite has 2 bathrooms, 2 closets with 2 TVs behind vanity mirrors, air-jetted tub, steam double head shower and safe. All furniture including patio, outdoor kitchen and Art décor are negotiable. Finished 3 car garage with radiant floor heat and epoxy finish. According to the original builder, a home of this quality would cost approximately $4.5 million to build new today.
Located in upscale Black Hawk neighborhood 5 mins. to casinos, 30 mins. to Eldora Ski resort in Nederland or 1 hour on I-70 to other world class ski resorts. 45 mins. to Denver. Hike, Bike new Hidden Treasure trail system or nearby Golden Gate State Park and Arapahoe National Forest where you can also ATV or fish. Neighborhood also has stocked reservoir. Great town for outdoor enthusiasts and gamblers. This home would make a great family vacation retreat, VRBO or permanent residence. Gilpin County has lower real estate taxes than adjacent counties. Check out detailed showing at: https://youtu.be/_3rcD_bSMEE. Since price was lowered considerably, personal property (furnishings) are now negotiable but video states that it was included at original list price. Seller to consider OWNER FINANCING, 3 years interest only, interest rate and other terms negotiable.

Features
: Radiant, Natural Gas
: Other
: Finished, Exterior Entry, Walk-Out Access
: Mountain(s)
: No
: Gas, Gas Log, Great Room, Basement, Primary Bedroom
: Security System, Carbon Monoxide Detector(s), Smoke Detector(s), Video Doorbell, Smart Cameras, Radon Detector, Smart Security System
: Covered, Deck, Front Porch
: 3
: Furnished
: Cooktop, Dryer, Dishwasher, Disposal, Microwave, Range, Refrigerator, Range Hood, Self Cleaning Oven, Washer, Gas Water Heater, Oven, Convection Oven, Bar Fridge, Double Oven, Water Softener, Wine Cooler, Water Purifier, Trash Compactor
: Mountain Contemporary
: Heated Garage, Oversized, Finished Garage, Insulated Garage, Lighted, Gravel, Dry Walled, Floor Coating
: Shingle
: Septic Tank
: Steam Room, Bath
Address Map
CO
Gilpin
Black Hawk
80422
Dill Pickle
2
Place
W106° 28' 19.3''
N39° 49' 54.3''
Additional Information
$693
Semi-Annually
: Snow Removal, Road Maintenance
: Frame, Stone, Cedar
From Hwy. 119 turn onto Paradise Valley Parkway (next to Gilpin K-12 School) take first Right onto Dill Pickle. First house on the right (no "For Sale" sign.)
: 220 Volts
Gilpin County School
: Lighting, Rain Gutters, Heated Gutters, Gas Valve
3
: Carpet, Tile
3
Gilpin County School
: Pantry, Open Floorplan, Granite Counters, Kitchen Island, Vaulted Ceiling(s), Wet Bar, Ceiling Fan(s), Entrance Foyer, Built-in Features, Sound System, Primary Suite, Radon Mitigation System, Walk-In Closet(s), Wired for Data, Audio/Video Controls
Yes
Yes
Cash, Conventional, Jumbo
: Level, Corner Lot, Sloped, Rock Outcropping
Gilpin County School
Home Smart
R006932
: None
: House
PARADISE VALLEY ESTATES
$3,635
2023
: Cable Available, Natural Gas Available, Electricity Connected, Natural Gas Connected, Phone Connected, Internet Access (Wired)
: Double Pane Windows
Res
04/01/2024
6281
Active
Yes
1
Gilpin RE-1
Concrete Perimeter, Raised
Gilpin RE-1
Sink
Gilpin RE-1
10/16/2025
04/01/2024
Well
: One

PARADISE VALLEY ESTATES

2 Dill Pickle Place, Black Hawk, CO 80422

4 Bedrooms
6 Total Baths
6,281 Square Feet
$2,435,000
Listing ID #9950255
Basic Details
Property Type : Residential
Listing Type : For Sale
Listing ID : 9950255
Price : $2,435,000
Bedrooms : 4
Rooms : 18
Total Baths : 6
Full Bathrooms : 2
3/4 Bathrooms : 2
1/2 Bathrooms : 2
Square Footage : 6,281 Square Feet
Year Built : 2012
Lot Area : 5.02 Acres
Lot Acres : 5.02
Property Sub Type : Single Family Residence
Status : Active
Originating System Name : REcolorado
Mortgage Calculator
$
$ %
years
%
$ %per year
$ %per year

$
Contact Agent