Metro Denver Luxury Homes For Sale

Property Description

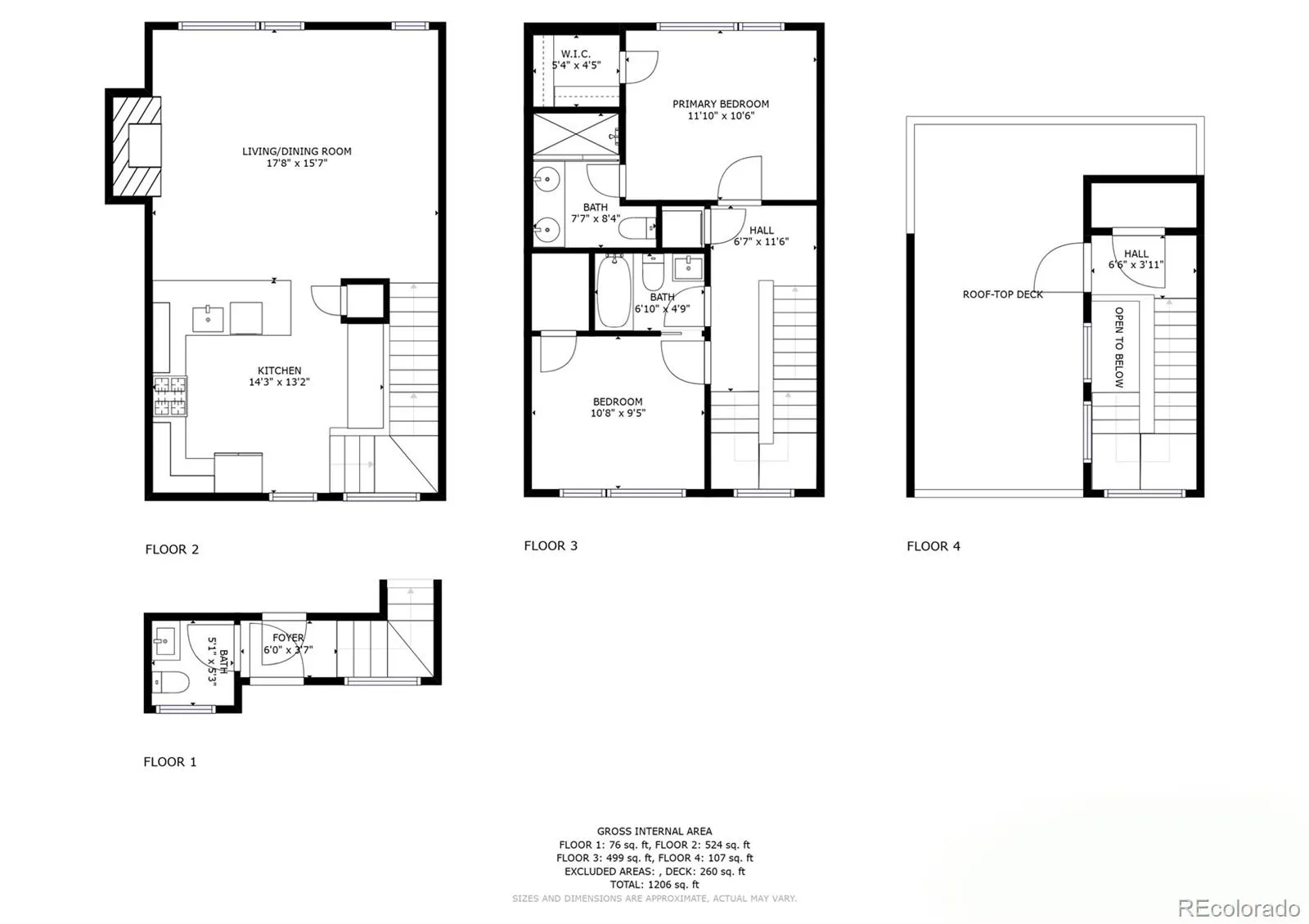
Welcome to elevated city living in one of Denver’s most coveted neighborhoods, Sloan’s Lake. Built in 2019, this modern townhome offers an ideal blend of style, comfort, and convenience, just five minutes from downtown and an easy ten-minute stroll to Sloan’s Lake, where scenic mountain views, along with some of the city’s best cafes, restaurants, and local shops, await. Designed with both everyday living and entertaining in mind, the open-concept main level is filled with natural light and seamlessly connects the kitchen, dining, and living spaces. The kitchen is well-appointed with generous counter space and a large island that anchors the room, while the living area offers ample space for a full dining setup, lounge seating, and even a bar area. Electronic shades add a touch of modern ease, and a sleek LED fireplace with customizable heat and lighting creates the perfect ambiance year-round. Upstairs, two thoughtfully designed bedrooms each feature their own en-suite bathrooms. The spacious primary suite comfortably accommodates a king-sized bed and includes a walk-in closet, while the second bedroom offers flexibility as a guest suite or home office. A convenient half bath on the main level adds to the home’s functionality. The home continues to impress with an attached, heated two-car garage, complete with its own adjustable heating system, offering plenty of room for vehicles, including larger SUVs, as well as additional storage. Above it all, an expansive rooftop deck provides sweeping views of both the Denver skyline and the mountains, creating an ideal setting for relaxing evenings or lively gatherings. Real wood floors run throughout the main living areas, complemented by plush carpeting in the bedrooms, and storage is abundant with a walk-in closet in the primary suite, an additional bedroom closet, and a kitchen pantry. Central air conditioning and heat keep the home comfortable year-round.

Features
: Forced Air
: Air Conditioning-Room
: City, Mountain(s)
: Living Room, Electric
: Rooftop
: 2
: Cooktop, Dryer, Dishwasher, Disposal, Microwave, Range, Refrigerator, Range Hood, Washer, Oven, Bar Fridge
: Contemporary
: Membrane
: Public Sewer
Address Map
CO
Denver
Denver
80204
Irving
1616
Street
W106° 58' 14.4''
N39° 44' 35.6''
Additional Information
: Frame
Cheltenham
1
: Carpet, Tile, Wood
2
North
: Pantry, Open Floorplan, Eat-in Kitchen, Primary Suite, Smart Window Coverings, Walk-In Closet(s)
Yes
Yes
Cash, Conventional, FHA, Jumbo, Other
Strive Lake
The Agency - Denver
2323-22-074
: None
: Townhouse
Sloans Lake
$3,205
2024
: Window Treatments
04/30/2026
1345
Active
1
Denver 1
Denver 1
Denver 1
04/30/2026
1
04/30/2026
4
Public
: Three Or More

Sloans Lake

1616 Irving Street, Denver, CO 80204

2 Bedrooms
3 Total Baths
1,345 Square Feet
$635,000
Listing ID #8096261
Basic Details
Property Type : Residential
Listing Type : For Sale
Listing ID : 8096261
Price : $635,000
Bedrooms : 2
Rooms : 9
Total Baths : 3
Full Bathrooms : 1
3/4 Bathrooms : 1
1/2 Bathrooms : 1
Square Footage : 1,345 Square Feet
Year Built : 2019
Property Sub Type : Townhouse
Status : Active
Originating System Name : REcolorado
Mortgage Calculator
$
$ %
years
%
$ %per year
$ %per year

$
Contact Agent