Metro Denver Luxury Homes For Sale

Property Description

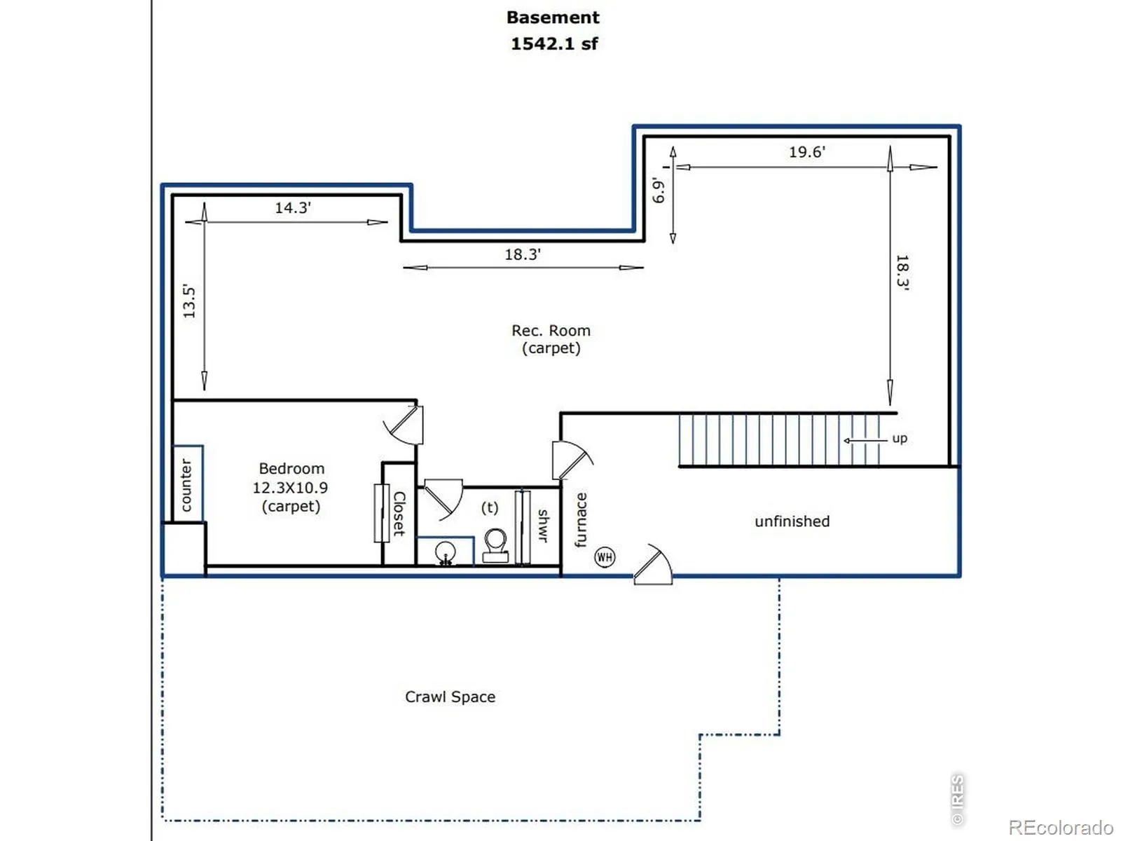
Located on both an expansive corner lot and a quiet cul-de-sac in one of Southeast Fort Collins’ most sought-after neighborhoods, 6203 Swainsons Hawk Pl presents a rare opportunity to own a thoughtfully upgraded home in a prime setting. Conveniently positioned near top-rated schools, the Harmony Corridor, and I-25, the property offers both accessibility and neighborhood appeal. Inside, hardwood flooring extends throughout most of the main level, setting the tone for the home’s elevated yet comfortable design. The upgraded kitchen is both functional and refined, featuring quartz countertops, an oversized center island, upgraded cabinetry, and premium stainless steel appliances, including a Wolf gas cooktop, KitchenAid double ovens, refrigerator, and a well-appointed butler’s pantry with wet bar, built-in ice machine, and wine storage. The kitchen flows seamlessly into the main living areas while a spacious mudroom with custom built-ins provides added convenience. The upper level features a well-designed bedroom layout highlighted by a spacious primary suite with its floor to ceiling stone fireplace, oversized walk-in closet, and luxury five-piece bath. A secondary bedroom suite includes a private bath, while two additional bedrooms share a Jack-and-Jill bath. Dual staircases overlooking the foyer and living room allow abundant natural light throughout. The professionally finished basement with 9-foot ceilings expands the home’s versatility, offering a generous rec room, work out room, bedroom, bathroom, and abundant storage.Outdoor living is a standout feature of this property. The backyard is designed for both relaxation and recreation, featuring a custom stone privacy wall with gas fireplace, expansive concrete patio, fenced yard and raised garden beds. A private bocce ball court in the side yard adds a unique and desirable amenity rarely found.Additional highlights include a three-car garage and HOA access to the neighborhood pool, clubhouse, and fitness facility.

Features
: Forced Air
: Central Air, Ceiling Fan(s)
: Mountain(s)
: Living Room, Primary Bedroom
: Smoke Detector(s)
: Patio
: 3
: Dryer, Dishwasher, Disposal, Microwave, Refrigerator, Washer, Oven, Bar Fridge
: Pool, Clubhouse, Playground, Park, Fitness Center, Spa/Hot Tub
: Tandem
: Composition
: Public Sewer
Address Map
CO
Larimer
Fort Collins
80528
Swainsons Hawk
6203
Place
W106° 58' 40.4''
N40° 30' 0.8''
Additional Information
$570
Quarterly
: Trash, Reserves
: Frame, Stone
10
East
Bacon
: Tile, Wood
3
Fossil Ridge
: Pantry, Open Floorplan, Kitchen Island, Vaulted Ceiling(s), Wet Bar, Five Piece Bath, Jack & Jill Bathroom, Walk-In Closet(s)
Yes
Yes
Cash, Conventional, FHA, VA Loan
: Level, Corner Lot, Sprinklers In Front, Cul-De-Sac
Preston
LIV Sotheby's Intl Realty
R1656818
: House
Kechter Farm
$7,986
2025
: Electricity Available, Natural Gas Available
: Double Pane Windows, Window Coverings
Res
04/28/2026
5647
Active
Yes
1
IRP31655
IRLLEG
Poudre R-1
Poudre R-1
In Unit
05/09/2026
Residential
04/28/2026
Public
: Two

Kechter Farm

6203 Swainsons Hawk Place, Fort Collins, CO 80528

5 Bedrooms
5 Total Baths
5,344 Square Feet
$1,395,000
Listing ID #IR1057643
Basic Details
Property Type : Residential
Listing Type : For Sale
Listing ID : IR1057643
Price : $1,395,000
Bedrooms : 5
Rooms : 17
Total Baths : 5
Full Bathrooms : 3
3/4 Bathrooms : 1
1/2 Bathrooms : 1
Square Footage : 5,344 Square Feet
Year Built : 2016
Lot Acres : 0.32
Property Sub Type : Single Family Residence
Status : Active
Co List Agent Full Name : Madalyn Winner
Co List Office Name : LIV Sotheby's Intl Realty
Originating System Name : REcolorado
Mortgage Calculator
$
$ %
years
%
$ %per year
$ %per year

$
Contact Agent