Metro Denver Luxury Homes For Sale

Property Description

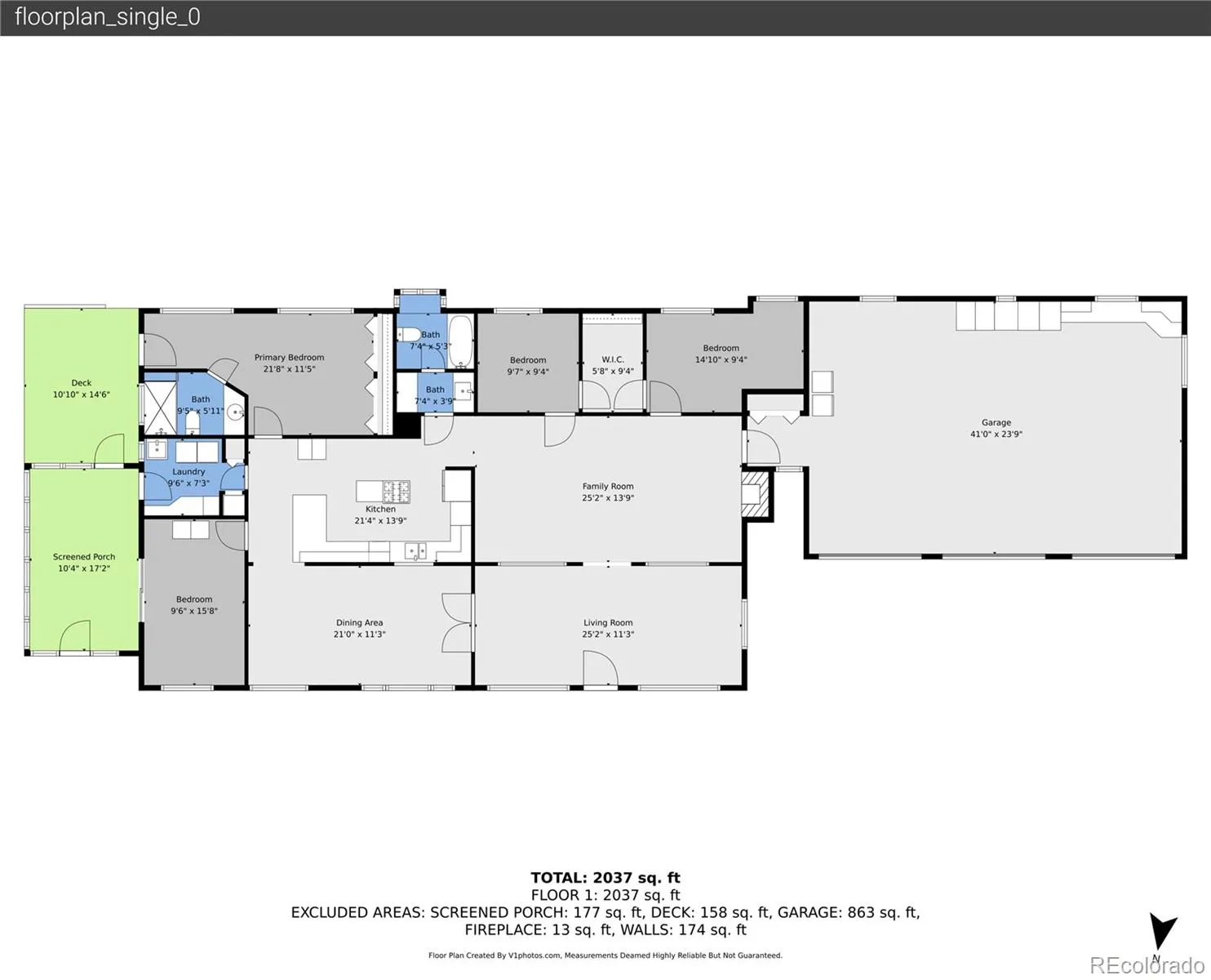
Welcome to your dream mountain escape! Get ready to fall in love with this charming residence with usable, A2 zoned acreage. With 3 cozy bedrooms, 2 bathrooms, bonus room and a sun room spread across 2,286 square feet, this one level home is perfect for making memories and enjoying the great outdoors. The 3-car garage is an added bonus. Bring your horses, the well permit allows for irrigation and watering of domestic animals!

The living room is a delightful space with beamed ceilings and wood flooring that brings a touch of rustic charm. The kitchen is light and bright, featuring ample storage and counter space for all of your culinary adventures. And don’t forget about the sunroom it’s the perfect spot to enjoy the great outdoors year round while watching the abundant wildlife and mountain views! Step outside onto your private deck, where you can host summer barbecues or simply relax while taking in the fresh mountain air.

This property has been lovingly cared for by the same family for 50+ years. Staunton State Park, hiking trails and fishing are just a stone’s throw away. This home is not just a place to live; it’s a lifestyle filled with adventure, relaxation, and the beauty of nature right at your doorstep. So, what are you waiting for? Your mountain getaway awaits! **** Please note: Sale also includes a separate 1 acre adjoining A2 zoned parcel (included in MLS lot square footage) pin:300045109 **** Check out the virtual tour here: https://v1tours.com/listing/59941/

Features
: Electric, Forced Air, Baseboard, Natural Gas
: Other
: Crawl Space
: Partial, Fenced Pasture
: Mountain(s), Meadow
: Gas, Living Room, Other
: Carbon Monoxide Detector(s), Smoke Detector(s)
: Deck, Front Porch
: 3
: Cooktop, Dryer, Dishwasher, Disposal, Microwave, Refrigerator, Gas Water Heater, Oven
: Rustic
: Concrete
: Composition
: Septic Tank
Address Map
CO
Jefferson
Pine
80470
Parker
13009
Avenue
W106° 37' 27.5''
N39° 28' 35.4''
S
Additional Information
: Frame, Wood Siding
26
North
GPS and IOS maps work well.
Elk Creek
: Lighting, Rain Gutters
2
: Carpet, Tile, Wood
3
Conifer
Yes
: Smoke Free, Eat-in Kitchen, Sound System, No Stairs
Yes
Yes
Cash, Conventional, FHA, USDA Loan, VA Loan
: Foothills, Meadow, Mountainous, Fire Mitigation
West Jefferson
Bergen Peak Realty
044984
: None
: House
Pine Junction Area
$1,419
2024
: Cable Available, Electricity Connected, Natural Gas Connected, Phone Connected, Internet Access (Wired)
A-2
04/25/2026
2286
Active
1
Live/Work
Jefferson County R-1
Slab
Jefferson County R-1
Jefferson County R-1
04/25/2026
04/25/2026
Well
: One

Pine Junction Area

13009 S Parker Avenue, Pine, CO 80470

3 Bedrooms
2 Total Baths
2,286 Square Feet
$775,000
Listing ID #6840615
Basic Details
Property Type : Residential
Listing Type : For Sale
Listing ID : 6840615
Price : $775,000
Bedrooms : 3
Rooms : 11
Total Baths : 2
Full Bathrooms : 1
3/4 Bathrooms : 1
Square Footage : 2,286 Square Feet
Year Built : 1952
Lot Area : 263,407 Acres
Lot Acres : 6.05
Property Sub Type : Single Family Residence
Status : Active
Originating System Name : REcolorado
Mortgage Calculator
$
$ %
years
%
$ %per year
$ %per year

$
Contact Agent