Metro Denver Luxury Homes For Sale

Property Description

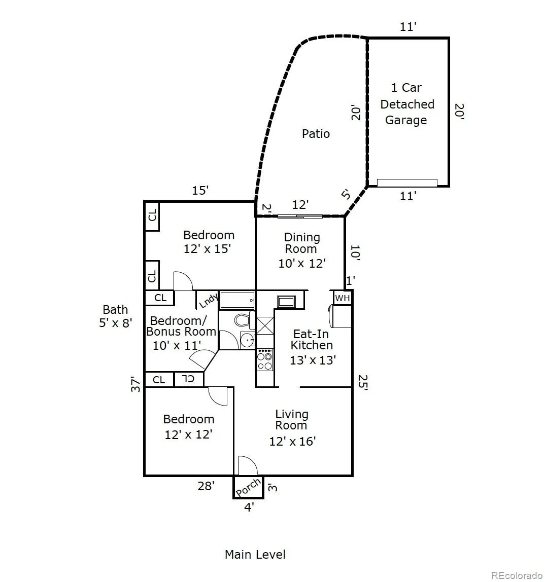
Discover the perfect blend of comfort and convenience in this beautifully updated Old Englewood residence. Ideally suited for those seeking the ease of main-floor living, this home welcomes you with a freshly painted interior that feels bright and airy. The generous kitchen and dining spaces serve as a central hub for daily life, providing plenty of room to cook, dine, and host guests with ease. In the primary bedroom, you will find a clever layout that includes extra storage solutions to keep your sanctuary organized and serene.

The transition to outdoor living is seamless via the back exit, where a charming flagstone patio awaits. This space is framed by a delightful landscape of seasonal tulips, classic lilacs, and established fruit trees, creating a vibrant backdrop for morning coffee or weekend dining. For those who value utility, the detached garage offers a secure place for a car plus additional room for outdoor equipment and hobbies. Location is a standout feature here, as the home sits moments away from the expansive Stanford Trail system for endless exploration across the metro area.

Duncan Park is also within easy reach, adding to the lush surroundings of this vibrant neighborhood. Meticulously maintained and full of character, this property invites you to settle in and start your next chapter right away. With its blend of functional indoor spaces and enchanting garden features, this home is a rare find that captures the very best of the area’s relaxed lifestyle.

Features
: Forced Air, Natural Gas
: Central Air
: Full
: Carbon Monoxide Detector(s), Smoke Detector(s)
: Patio
: 3
: Dryer, Dishwasher, Disposal, Microwave, Range, Refrigerator, Washer, Gas Water Heater
: Composition
: Public Sewer
Address Map
CO
Arapahoe
Englewood
80113
Washington
4560
Street
W105° 1' 14.1''
N39° 38' 1.9''
S
Additional Information
: Frame, Vinyl Siding
West
Cherrelyn
: Private Yard
: Carpet, Tile, Wood
1
Englewood
: Eat-in Kitchen, Solid Surface Counters, Ceiling Fan(s), Built-in Features, No Stairs
Yes
Yes
Cash, Conventional, FHA, VA Loan
: Level, Near Public Transit, Sprinklers In Front, Sprinklers In Rear
Englewood
Compass - Denver
031998000
: None
: House
Broadway Heights
$2,133
2025
: Cable Available, Electricity Connected, Natural Gas Connected
: Double Pane Windows, Window Coverings
04/23/2026
1000
Active
Englewood 1
Concrete Perimeter
Englewood 1
In Unit
Englewood 1
04/24/2026
04/23/2026
Public
: One

Broadway Heights

4560 S Washington Street, Englewood, CO 80113

3 Bedrooms
1 Total Baths
1,000 Square Feet
$460,000
Listing ID #2047528
Basic Details
Property Type : Residential
Listing Type : For Sale
Listing ID : 2047528
Price : $460,000
Bedrooms : 3
Rooms : 7
Total Baths : 1
Full Bathrooms : 1
Square Footage : 1,000 Square Feet
Year Built : 1944
Lot Area : 5,554 Acres
Lot Acres : 0.13
Property Sub Type : Single Family Residence
Status : Active
Originating System Name : REcolorado
Mortgage Calculator
$
$ %
years
%
$ %per year
$ %per year

$
Contact Agent