Metro Denver Luxury Homes For Sale

Property Description

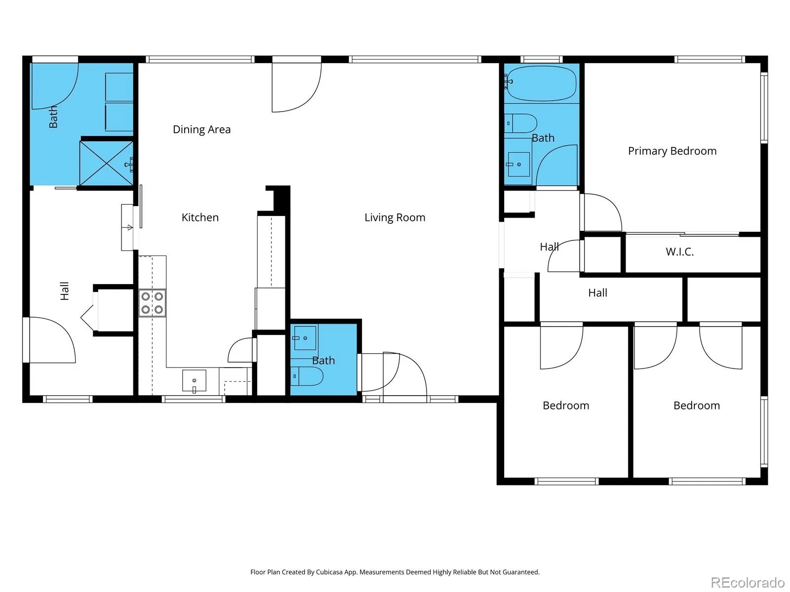
Set on just under half an acre in Denver, this property offers something that’s increasingly hard to find—space, function, and the ability to live differently, without giving up proximity to the city. Tucked into a location with easy access to Belmar, Highway 6, and major commuting routes, you’re connected when you need it—yet the moment you step into the backyard, it feels like you’ve left the city behind. This 3-bedroom, 2.5-bath ranch delivers true single-level living with an open layout that brings together a spacious family room, dining area, and kitchen. Real hardwood floors add warmth throughout the main living space, while large and newer vinyl windows bring in consistent natural light. The kitchen has been thoughtfully updated with white shaker cabinetry, quartz countertops, stainless steel appliances, and soft-close drawers, creating a clean, functional space that works for both everyday living and hosting. What sets this home apart is the land and what it allows you to do with it. The fully fenced lot includes a garden, greenhouse, chicken coop and run, fruit trees (apple, plum, choke cherry), strawberry patch, raspberry plants, comfrey, rhubarb, and perennial herbs—already established and ready to support a true urban homestead or hobby farm lifestyle. A covered patio with sun shades creates a natural extension of the living space, designed for gathering, relaxing, and enjoying the setting.
Inside, flexibility continues with a mudroom off the garage that can double as a home office or additional storage, a laundry area with added shower functionality, and built-in storage throughout the home. System updates—including a newer furnace (2019), newer water heater, whole house fan, and updated windows—provide confidence in the home’s ongoing performance.
This is a property for someone who sees the opportunity—space to grow, room to create, and a lifestyle that’s hard to replicate anywhere else in Denver.

Features
: Forced Air
: Attic Fan, Air Conditioning-Room
: Full
: Carbon Monoxide Detector(s), Smoke Detector(s)
: Covered, Front Porch, Patio
: 4
: Unfurnished
: Dryer, Dishwasher, Disposal, Microwave, Range, Refrigerator, Washer, Gas Water Heater
: Traditional
: Concrete, Lighted, Storage, Exterior Access Door
: Unknown
: Public Sewer
Address Map
CO
Denver
Denver
80219
Yates
855
Street
W106° 56' 53.3''
N39° 42' 3.6''
S
Additional Information
: Frame, Vinyl Siding, Wood Siding
Follow GPS
Force
: Lighting, Private Yard, Rain Gutters, Garden
: Tile, Wood
1
John F. Kennedy
: Open Floorplan, Smoke Free
Yes
Yes
Cash, Conventional, FHA, VA Loan
: Level
Strive Westwood
RE/MAX Synergy
5183-15-014
: None
: House
Westwood
$2,647
2024
: Cable Available, Electricity Connected, Natural Gas Connected
E-SU-D
04/22/2026
1547
Active
1
Denver 1
Denver 1
In Unit
Denver 1
04/22/2026
04/22/2026
Public
: One

Westwood

855 S Yates Street, Denver, CO 80219

3 Bedrooms
3 Total Baths
1,547 Square Feet
$500,000
Listing ID #4455354
Basic Details
Property Type : Residential
Listing Type : For Sale
Listing ID : 4455354
Price : $500,000
Bedrooms : 3
Rooms : 11
Total Baths : 3
Full Bathrooms : 1
1/2 Bathrooms : 2
Square Footage : 1,547 Square Feet
Year Built : 1952
Lot Area : 18,000 Acres
Lot Acres : 0.41
Property Sub Type : Single Family Residence
Status : Active
Originating System Name : REcolorado
Mortgage Calculator
$
$ %
years
%
$ %per year
$ %per year

$
Contact Agent