Metro Denver Luxury Homes For Sale

Property Description

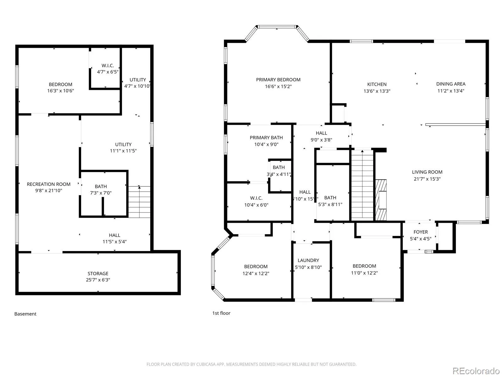
Welcome to this beautifully maintained 4-bedroom, 3-bath Ranch Home located in the desirable Tollgate Crossing community. Enjoy easy access to scenic walking paths and trails, along with the pools and clubhouse that Tollgate Crossing has to offer. This home perfectly blends Colorado mountain charm with the convenience of city living. The covered front porch welcomes you inside to hardwood floors throughout the main level, a light-filled family room featuring a cozy fireplace. The open-concept kitchen is the heart of the home, offering a large island, granite countertops, and an oven with a smooth cook top . Expansive windows throughout fill the home with abundant natural light. Step outside to a professionally landscaped yard Astro Turf Putting Green , designed for year-round enjoyment. ( Doggie Dooley Too!) The recently finished basement provides additional Bedroom and Bathroom ample storage —ideal for hobbies, or multigenerational needs. Additional highlights EV Charger in the Garage, Radon System a spacious laundry room , and thoughtful finishes throughout. Built in 2005 and meticulously cared for, this home reflects the charm and strong sense of community that make Tollgate Crossing one of Aurora’s most sought-after neighborhoods. ***Check out the virtual tour ***
New AC and HVAC in 2019 Duck cleaning 2025 **** No showings until Saturday 18 April

Features
: Electric, Forced Air, Hot Water
: Central Air
: Finished
: Full
: Cats OK, Dogs OK
: Living Room
: Carbon Monoxide Detector(s), Video Doorbell
: Covered, Front Porch, Patio
: 2
: Unfurnished
: Cooktop, Dryer, Dishwasher, Disposal, Microwave, Range, Refrigerator, Washer, Oven, Freezer
: Traditional
: Pool, Clubhouse, Playground, Park
: Composition
: Public Sewer
Address Map
CO
Arapahoe
Aurora
80016
Catawba
4984
Street
W105° 17' 26.1''
N39° 37' 33.9''
S
Additional Information
$300
Annually
: Trash
: Wood Siding
Southwest
: 220 Volts, 110V
Buffalo Trail
: Garden
: Carpet, Tile, Wood, Vinyl
2
Cherokee Trail
: Kitchen Island, Eat-in Kitchen, Primary Suite, Five Piece Bath
Yes
Yes
Cash, Conventional, FHA, VA Loan
: Level, Sprinklers In Front
Fox Ridge
Berkshire Hathaway HomeServices RE of the Rockies
034559728
: Third Party Approval
: House
Tollgate Crossing sub 2nd Flg
$5,335
2025
: Electricity Connected, Natural Gas Connected
RE470
04/18/2026
2700
Active
Yes
1
Cherry Creek 5
Cherry Creek 5
Cherry Creek 5
04/18/2026
04/18/2026
Public
: One

Tollgate Crossing sub 2nd Flg

4984 S Catawba Street, Aurora, CO 80016

4 Bedrooms
3 Total Baths
2,700 Square Feet
$569,999
Listing ID #2481045
Basic Details
Property Type : Residential
Listing Type : For Sale
Listing ID : 2481045
Price : $569,999
Bedrooms : 4
Rooms : 12
Total Baths : 3
Full Bathrooms : 3
Square Footage : 2,700 Square Feet
Year Built : 2005
Lot Area : 6,615 Acres
Lot Acres : 0.15
Property Sub Type : Single Family Residence
Status : Active
Originating System Name : REcolorado
Mortgage Calculator
$
$ %
years
%
$ %per year
$ %per year

$
Contact Agent