Metro Denver Luxury Homes For Sale

Property Description

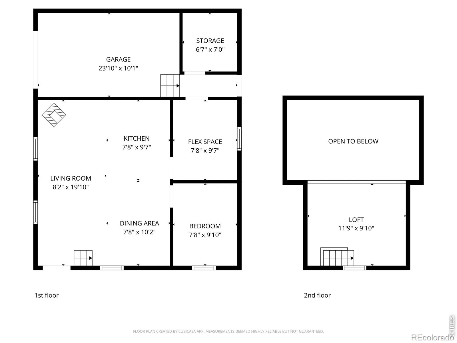
Look no further-this thoughtfully updated 1-bedroom cabin on two lots could be the perfect mountain getaway you’ve been searching for. Conveniently located just one mile from Red Feather Lakes Village and near Lake Nokomis, this property sits in an area with no HOA. Much of the heavy lifting has already been done with several recent interior improvements, including a loft area, a beetle-kill tongue-and-groove ceiling, a heated storage/pantry room with compact tankless water heater, and a water storage tank with pump (currently needs a new motor). Additional upgrades include newer insulation throughout. Exterior improvements are extensive and include structural foundation supports on concrete pilings with cross-member trusses, reinforced wall timbers, updated wiring, lighting, heating, and underground service. The garage has been refreshed with a concrete slab floor, insulated walls and doors, and improved functionality. Soil-retention walls and a drainage management system add long-term stability. Just behind the cabin, you’ll find a private heated privy with an Incinolet toilet for added convenience, along with extra storage space. The owners have preserved the cabin’s historic charm while integrating thoughtful modern updates. Enjoy endless mountain memories-zipline fun, evenings around the campfire, or quiet mornings soaking up sunshine on the rebuilt, spacious deck perfectly positioned along the south and west sides. Make this your rest-and-relaxation retreat in the stunning Colorado mountains. With close proximity to several area lakes-many offering membership fishing opportunities-you’ll have easy access to the best outdoor recreation Red Feather Lakes has to offer.

Features
: Wood Stove, Wall Furnace, Space Heater
: Ceiling Fan(s)
: None
: Partial, Fenced
: 1
: Microwave, Refrigerator, Oven
: Metal
Address Map
CO
Larimer
Red Feather Lakes
80545
Teddys
37
Lane
W106° 24' 37.8''
N40° 48' 50.4''
Additional Information
: Frame
South
From US-287, head west on W County Road 74E. Continue for 23 miles, then turn right onto County Road 67J. Pass Red Feather Lakes Village then turn left onto Nokomis Road. Follow Nokomis approximate 1 mile, turn right on Teddys Lane.
Other
: Gas Grill
: Wood
1
Poudre
: Open Floorplan, Eat-in Kitchen
Yes
Yes
Cash, Conventional
: Level, Rolling Slope
Cache La Poudre
Lone Pine Realty
R0305723
: House
South Nokomis Lake
$1,097
2025
: Electricity Available
: Window Coverings
O
04/16/2026
480
Active
1
Poudre R-1
Poudre R-1
04/17/2026
Residential
04/16/2026
: One

South Nokomis Lake

37 Teddys Lane, Red Feather Lakes, CO 80545

1 Bedrooms
480 Square Feet
$205,000
Listing ID #IR1056650
Basic Details
Property Type : Residential
Listing Type : For Sale
Listing ID : IR1056650
Price : $205,000
Bedrooms : 1
Rooms : 4
Square Footage : 480 Square Feet
Year Built : 1931
Lot Acres : 0.13
Property Sub Type : Single Family Residence
Status : Active
Originating System Name : REcolorado
Mortgage Calculator
$
$ %
years
%
$ %per year
$ %per year

$
Contact Agent