Metro Denver Luxury Homes For Sale

Property Description

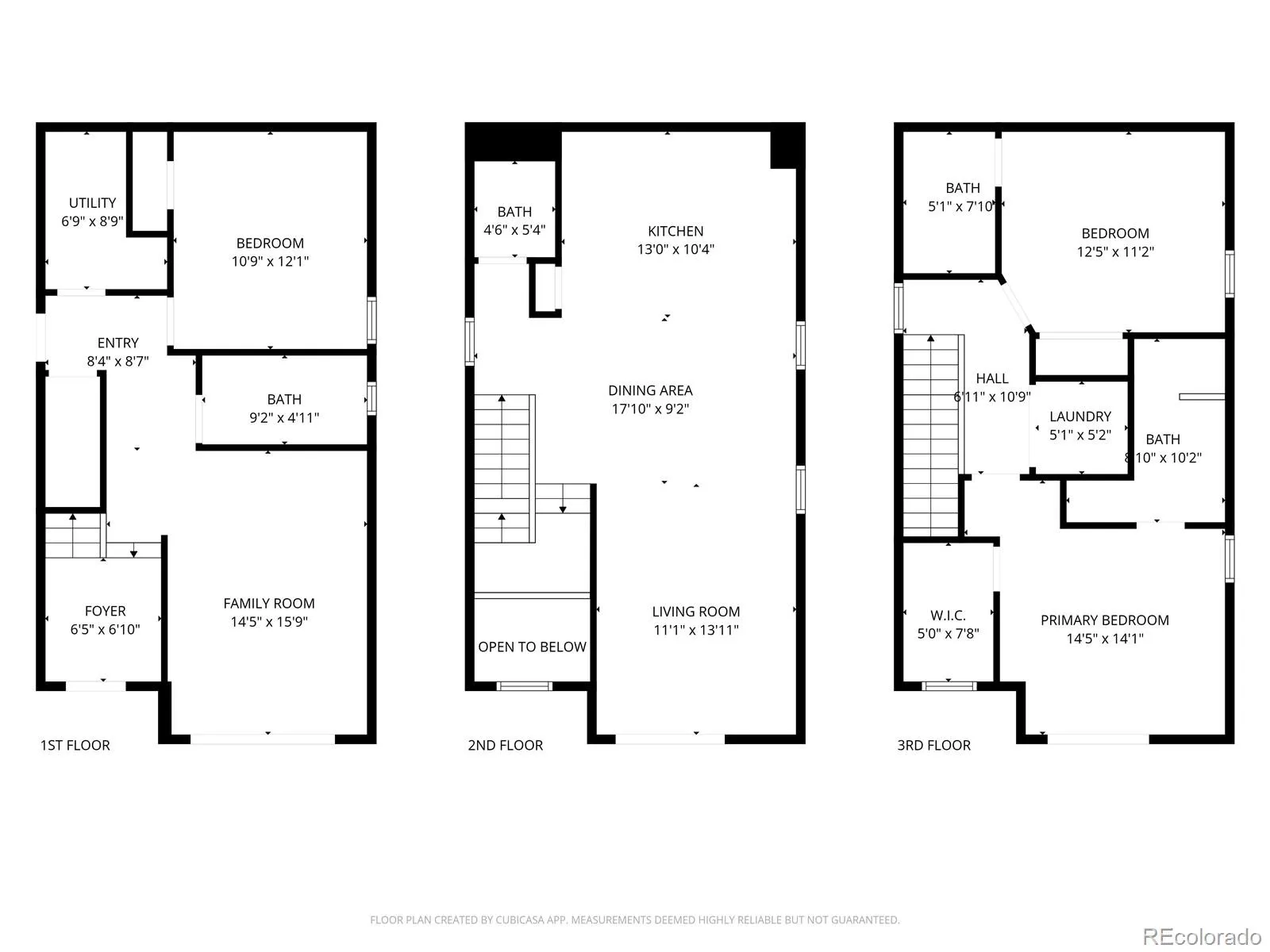
Modern New Construction by Lumen Homes!!! This premier home showcases the best of Lumen Homes’ modern design and craftsmanship in one of Uptown Denver’s most desirable locations. Thoughtfully designed for comfort, performance, and elevated urban living, this 3-bedroom, 3.5-bath half-duplex offers a superior location within the project and refined modern finishes throughout. Built with advanced energy efficiencies and an impressive HERS rating of 48, this home delivers long-term value, lower utility costs, and superior performance. The light-filled open floor plan features high ceilings, contemporary architecture, and curated finishes including designer lighting by Visual Comfort. The second level is ideal for entertaining with a chef-inspired kitchen, ample storage, and seamless flow into the spacious living area and private balcony. The upper level features a true primary suite retreat with spa-inspired bath and custom walk-in closet, plus an additional en-suite bedroom offering privacy and flexibility. The lower level includes a third bedroom and full bath adjacent to a bonus family/media room — perfect for guests, office, or additional living space. Enjoy Colorado sunshine from your private fenced patio, extending your living space outdoors. Located in the heart of Uptown, this premium unit offers immediate access to Denver’s best restaurants, shopping, entertainment, and transit — all with the benefits of brand-new construction and modern energy performance. ***Taxes are estimated and will be determined prior to closing ***Party Wall agreement with no HOA*** Each home has own parcel ***Agent Owner Developer

Features
: Electric, Forced Air
: Central Air
: Sump Pump, Crawl Space
: Partial
: Carbon Monoxide Detector(s), Smoke Detector(s), Video Doorbell
: Patio
: 1
: Unfurnished
: Dishwasher, Disposal, Microwave, Range, Refrigerator, Range Hood, Freezer, Electric Water Heater, Sump Pump
: Traditional, Urban Contemporary
: Concrete, Lighted, Exterior Access Door, Electric Vehicle Charging Station(s), Smart Garage Door
: Shingle, Membrane
: Public Sewer
Address Map
CO
Denver
Denver
80218
William s
1749
Street
W105° 2' 2''
N39° 44' 38.6''
N
Additional Information
: Frame, Brick, Cement Siding, Concrete, Metal Siding
East
Between 17th and 18th Ave on West Side of Williams Street middle of Block.
: 220 Volts, 110V
Whittier E-8
: Balcony, Lighting, Rain Gutters
: Carpet, Tile, Wood
1
East
: Pantry, High Ceilings, Open Floorplan, Quartz Counters, Smoke Free, Solid Surface Counters, Smart Thermostat, High Speed Internet, Entrance Foyer, Primary Suite, Radon Mitigation System, Walk-In Closet(s), Wired for Data, In-Law Floorplan
Yes
Yes
1031 Exchange, Cash, Conventional, FHA, VA Loan
: Level, Near Public Transit, Sprinklers In Front, Landscaped
Whittier E-8
Parkview Real Estate
TBD
: None
: Duplex
Mc Culloughs
$4,630
2025
: Cable Available, Natural Gas Available, Phone Available, Electricity Connected, Internet Access (Wired)
: Double Pane Windows, Egress Windows
G-RO-3
04/17/2026
: Appliances, Construction, Insulation, Lighting, Thermostat, Water Heater, Windows, Doors, Roof, HVAC
1898
Active
Denver 1
Concrete Perimeter, Structural
Denver 1
Denver 1
04/17/2026
1
04/17/2026
1
Public
: Three Or More

Mc Culloughs

1749 N William s Street, Denver, CO 80218

3 Bedrooms
4 Total Baths
1,853 Square Feet
$795,000
Listing ID #2457310
Basic Details
Property Type : Residential
Listing Type : For Sale
Listing ID : 2457310
Price : $795,000
Bedrooms : 3
Rooms : 12
Total Baths : 4
Full Bathrooms : 3
1/2 Bathrooms : 1
Square Footage : 1,853 Square Feet
Year Built : 2025
Lot Area : 1,574 Acres
Lot Acres : 0.04
Property Sub Type : Single Family Residence
Status : Active
Originating System Name : REcolorado
Mortgage Calculator
$
$ %
years
%
$ %per year
$ %per year

$
Contact Agent