Metro Denver Luxury Homes For Sale

Property Description

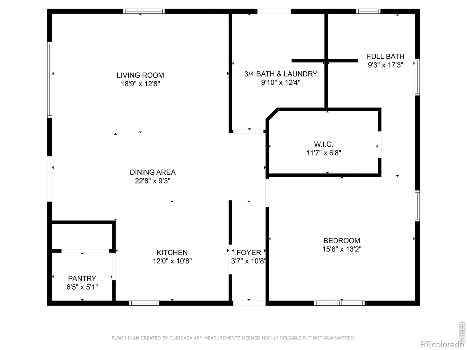
4 hour notice. The dream of Colorado living comes to life here. This exceptional peaceful rural property features a spacious main residence, a fully equipped guest house/ADU, plus a large shop that offers exceptional flexibility-whether for work, recreation, hobbies, horses or farming. In every community, there are a few homes that truly stand out, offering a rare combination of comfort, functionality, and lifestyle. This is one of them. The main house offers 3 bedrooms and 3 bathrooms, along with a bright sunroom/greenhouse that’s sure to delight any gardening enthusiast or sun lover. The main floor showcases an enviable blend of ceramic tile and luxury plank flooring, creating a clean, polished look with a touch of sophistication. The kitchen is a true centerpiece, featuring two spacious islands, stainless steel appliances, a cozy breakfast nook, a large walk-in pantry, and an open layout that flows effortlessly into the separate dining area. Outdoor living is just steps away, with access to patios from four different areas-perfect for entertaining. The lower-level basement offers a range of possibilities, featuring a generous rec room, an additional bedroom if desired (or office), a half bath, ample storage, and a versatile flex/bonus room with its own private walk-out egress. The second home/ADU, located at its own address-1940 Callado St, offers1,280 square feet of beautifully appointed living space (included in total MLS square footage). The kitchen features SS appliances, granite countertops, a pantry and a convenient eat-in bar. The spacious living area flows into a generous primary suite with a walk-in closet and a luxurious five-piece bath complete with a jetted tub. An additional 3/4 bath and a dedicated laundry area add convenience, while the expansive wraparound porch invites you to relax outdoors. This ADU would be an excellent rental. The 2100sf shop is a highly versatile space, featuring an office area, ample storage, and large overhead garage doors

Features
: Forced Air
: Central Air
: Full
: Mountain(s)
: Living Room
: Patio
: 3
: Dryer, Dishwasher, Microwave, Refrigerator, Washer, Oven
: Heated Garage, Oversized, Oversized Door, RV Access/Parking
: Composition
: Septic Tank
Address Map
CO
Larimer
Berthoud
80513
Chaparro
1720
Circle
W106° 53' 31.5''
N40° 16' 28.8''
Additional Information
$80
Annually
: Frame, Stucco
8
Ivy Stockwell
3
Berthoud
Yes
: Pantry, Open Floorplan, Eat-in Kitchen
Yes
Yes
Cash, Conventional
: Sprinklers In Front
Turner
RE/MAX of Boulder, Inc
R0496464
: House
Horseshoe Park North
$6,819
2025
: Electricity Available, Natural Gas Available
: Window Coverings
FA1
04/16/2026
5728
Active
Yes
1
Thompson R2-J
Thompson R2-J
05/19/2026
Agricultural,Residential
04/17/2026
Public
: One

Horseshoe Park North

1720 Chaparro Circle, Berthoud, CO 80513

4 Bedrooms
5 Total Baths
5,728 Square Feet
$1,200,000
Listing ID #IR1056645
Basic Details
Property Type : Residential
Listing Type : For Sale
Listing ID : IR1056645
Price : $1,200,000
Bedrooms : 4
Rooms : 14
Total Baths : 5
Full Bathrooms : 2
3/4 Bathrooms : 2
1/2 Bathrooms : 1
Square Footage : 5,728 Square Feet
Year Built : 1976
Lot Acres : 1.89
Property Sub Type : Single Family Residence
Status : Active
Originating System Name : REcolorado
Mortgage Calculator
$
$ %
years
%
$ %per year
$ %per year

$
Contact Agent