Metro Denver Luxury Homes For Sale

Property Description

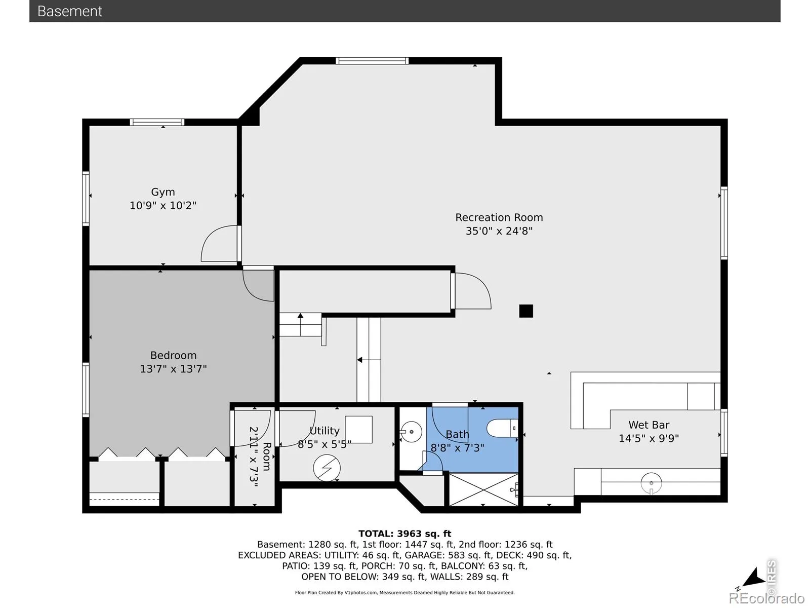
Set on a quiet cul-de-sac corner lot, surrounded by mature trees and backing to a tranquil community park, 301 Sleeping Owl Point offers exceptional privacy and a serene setting. The professionally landscaped front and back yards showcase lush, flowering shrubs, while the fully fenced yard provides an ideal space for play and relaxation. An expansive back deck-complete with a power awning-creates the perfect setting for effortless outdoor living and entertaining. *** Inside, a highly functional floorplan is paired with quality craftsmanship and timeless finishes. Premium Pella windows and doors with integrated blinds fill the home with natural light while maintaining a clean, low-maintenance aesthetic. Rich wood flooring flows through the main level, where a spacious great room and dedicated office create the perfect balance of relaxation and productivity. Upstairs, the primary suite offers a true retreat, complete with a two-sided fireplace, private sitting room/ nursery, and dual balconies. The spa-inspired primary bath and expansive walk-in closet with custom wood built-ins deliver both luxury and practicality. *** The fully finished basement expands your living space with 9-foot ceilings, a well-appointed bar, pool table, exercise room, and a music room featuring an upright piano-ideal for entertaining or unwinding at home. *** Class 4 architectural roof inspected and serviced annually. BVSD schools. Access to Front Range trails. Neighborhood golf course. Clubhouse a short walk down the hill. Boulder in 12 minutes. This is a rare opportunity to live, golf, swim, and thrive. Come live in Indian Peaks!

Features
: Forced Air
: Central Air, Ceiling Fan(s)
: Full
: Mountain(s)
: Gas, Family Room, Primary Bedroom
: Smoke Detector(s)
: Deck, Patio
: 3
: Dryer, Dishwasher, Disposal, Microwave, Refrigerator, Self Cleaning Oven, Washer, Oven, Humidifier, Bar Fridge
: Contemporary
: Pool, Playground, Park, Golf Course
: Composition
: Public Sewer
: Bath
Address Map
CO
Boulder
Lafayette
80026
Sleeping Owl
301
Point
W106° 52' 58.1''
N40° 0' 3.1''
Additional Information
$145
Monthly
: Frame, Brick
West
From Hwy 287, west on Baseline to right on Indian Peaks Drive right up the hill to Sleeping Owl Pt.
Lafayette
: Balcony, Dog Run
: Tile, Wood
3
Centaurus
: Pantry, Open Floorplan, Kitchen Island, Eat-in Kitchen, Vaulted Ceiling(s), Wet Bar, Five Piece Bath, Walk-In Closet(s)
Yes
Yes
Cash, Conventional, FHA, VA Loan
: Level, Corner Lot, Sprinklers In Front, Cul-De-Sac
Angevine
Compass - Boulder
R0114161
: House
Indian Peaks Flg 2
$7,049
2025
: Electricity Available, Natural Gas Available
RES
04/16/2026
4194
Active
Yes
1
IRP18624
IRCBR02
Boulder Valley RE 2
Boulder Valley RE 2
04/19/2026
Residential
04/17/2026
Public
: Two

Indian Peaks Flg 2

301 Sleeping Owl Point, Lafayette, CO 80026

4 Bedrooms
4 Total Baths
4,194 Square Feet
$1,350,000
Listing ID #IR1056788
Basic Details
Property Type : Residential
Listing Type : For Sale
Listing ID : IR1056788
Price : $1,350,000
Bedrooms : 4
Rooms : 15
Total Baths : 4
Full Bathrooms : 2
3/4 Bathrooms : 2
Square Footage : 4,194 Square Feet
Year Built : 1994
Lot Acres : 0.28
Property Sub Type : Single Family Residence
Status : Active
Co List Agent Full Name : Terra Brewer
Co List Office Name : Compass - Boulder
Originating System Name : REcolorado
Mortgage Calculator
$
$ %
years
%
$ %per year
$ %per year

$
Contact Agent