Metro Denver Luxury Homes For Sale

Property Description

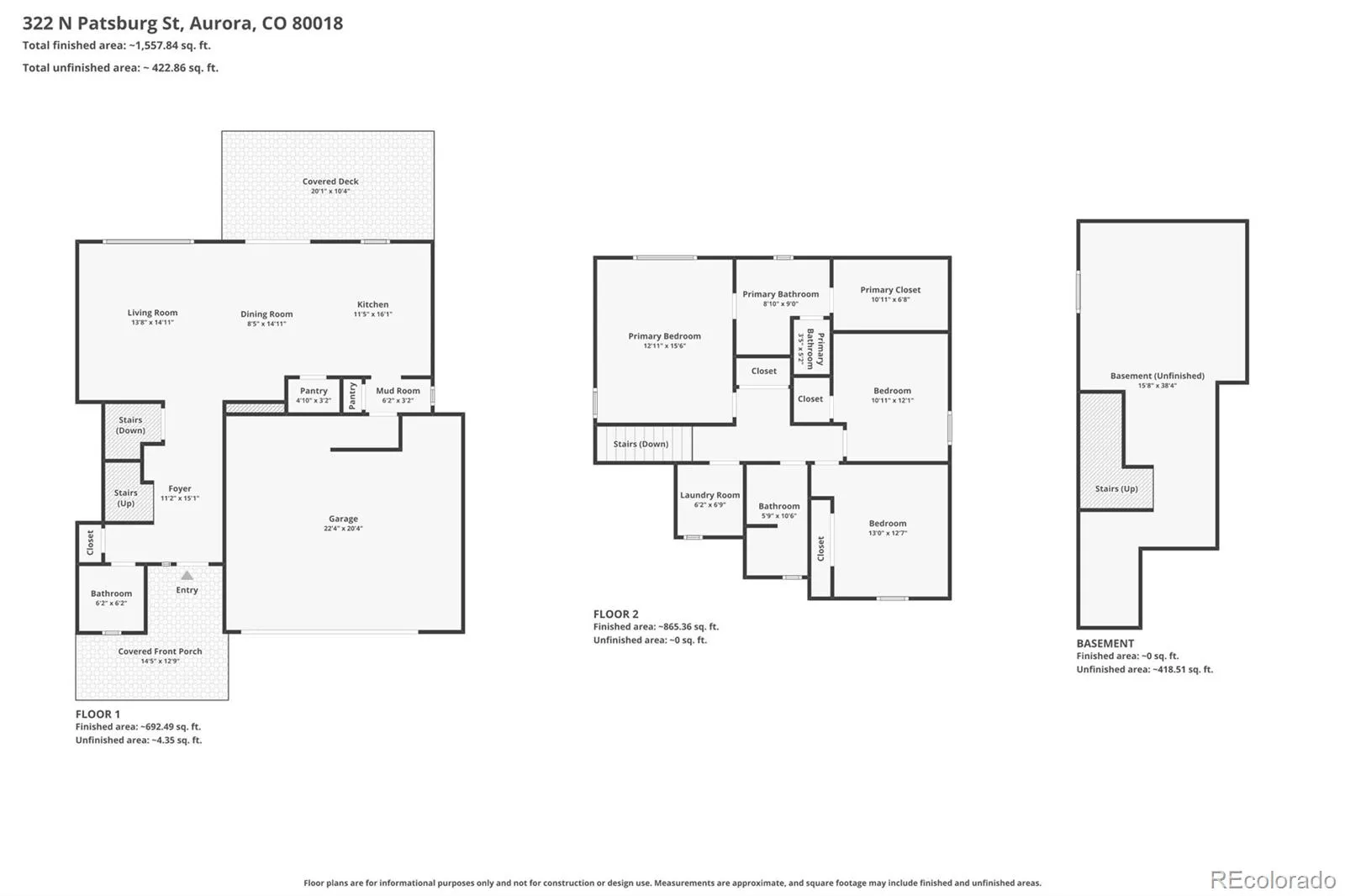
Upgrades galore in this beautifully enhanced Lennar 2-story in Adonea! This home is wired for the modern lifestyle with CAT 6A wiring throughout, a Vivint security system, SOLAR, and efficient 2×6 exterior walls for added comfort and energy savings. Whole house water softener and reverse osmosis at kit sink and frig! Inside, you’ll love the LVP flooring on the main level and the new instant hot water heater that keeps everyday living easy and efficient. The thoughtful floor plan features 3 bedrooms upstairs plus a conveniently located laundry room on the same level, and all appliances – including washer and dryer – are included for a true move-in-ready experience. The full unfinished basement offers incredible potential for future expansion, whether you envision an additional bedroom, rec room, home gym, or extra storage. Step outside to an entertainer’s dream yard showcasing an extended back deck, paver patio, astro turf yard for low-maintenance green all year, and a large shed for your tools and toys. Gemstone eave lighting adds a stunning year-round decorative accent, making holidays and special occasions pop with the touch of a button, and the home backs to a greenbelt with eastern exposure so you can start each day with gorgeous Colorado sunrises. You’ll also love the Adonea neighborhood lifestyle, with nearby parks, walking trails, and a community clubhouse and pool that offer plenty of options for recreation, relaxation, and connecting with neighbors.

Features
: Forced Air
: Central Air
: Full, Unfinished, Bath/Stubbed
: Full
: Plains
: Cats OK, Dogs OK
: Security System, Smoke Detector(s), Video Doorbell, Smart Cameras, Smart Security System
: Covered, Deck, Patio
: 2
: Dryer, Dishwasher, Disposal, Microwave, Refrigerator, Self Cleaning Oven, Washer, Tankless Water Heater, Water Softener, Water Purifier
: Contemporary
: Pool, Clubhouse, Playground, Park, Trail(s)
: Concrete, Exterior Access Door
: Composition
: Public Sewer
Address Map
CO
Arapahoe
Aurora
80018
Patsburg
322
Street
W105° 19' 14.2''
N39° 43' 22''
N
Additional Information
$135
Quarterly
: Maintenance Grounds
: Frame
West
: 110V
Vista Peak
: Private Yard
: Carpet, Wood
2
Vista Peak
: Pantry, High Ceilings, Open Floorplan, Quartz Counters, Kitchen Island, Eat-in Kitchen, Smart Thermostat, Ceiling Fan(s), Five Piece Bath, Walk-In Closet(s), Wired for Data, Breakfast Bar
Yes
Yes
Cash, Conventional, FHA, Qualified Assumption, VA Loan
: Sprinklers In Front, Sprinklers In Rear, Greenbelt, Borders Public Land
Vista Peak
RE/MAX Alliance
035266583
: None
: House
Adonea
$5,462
2025
: Cable Available, Electricity Connected, Internet Access (Wired)
: Double Pane Windows
PUD
04/16/2026
2543
Active
Yes
1
043490
0185B
Adams-Arapahoe 28J
Adams-Arapahoe 28J
In Unit
Adams-Arapahoe 28J
04/17/2026
04/17/2026
: Two

Adonea

322 N Patsburg Street, Aurora, CO 80018

3 Bedrooms
3 Total Baths
1,713 Square Feet
$595,000
Listing ID #7646211
Basic Details
Property Type : Residential
Listing Type : For Sale
Listing ID : 7646211
Price : $595,000
Bedrooms : 3
Rooms : 10
Total Baths : 3
Full Bathrooms : 2
1/2 Bathrooms : 1
Square Footage : 1,713 Square Feet
Year Built : 2019
Lot Area : 5,489 Acres
Lot Acres : 0.13
Property Sub Type : Single Family Residence
Status : Active
Co List Agent Full Name : Melanie Miller
Co List Office Name : RE/MAX Alliance
Originating System Name : REcolorado
Mortgage Calculator
$
$ %
years
%
$ %per year
$ %per year

$
Contact Agent