Metro Denver Luxury Homes For Sale

Property Description

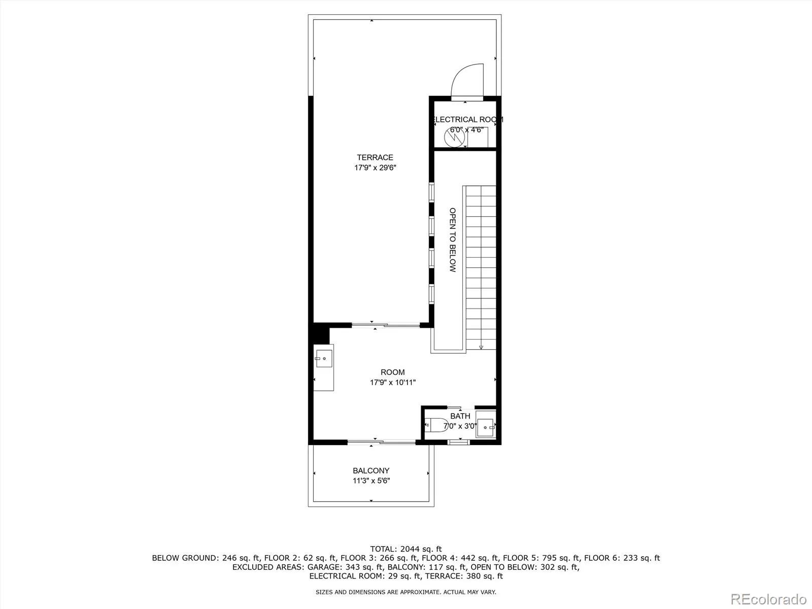
Nestled in the highly sought-after 9th + CO development, this stunning townhome offers the perfect blend of modern luxury and urban living. Bathed in natural southern light, the home invites you in with its sleek, contemporary design and high-end finishes. The open-concept layout effortlessly connects the spacious living area with a statement slate fireplace,a spacious dining area, and a stylish kitchen. The striking quartz countertops with waterfall edges set the stage for the gourmet kitchen, which boasts top-of-the-line stainless steel appliances, ample cabinetry, and a charming balcony. The inviting primary suite is a true retreat, featuring its own private balcony with partial mountain views, floor to ceiling windows and Hunter Douglas window coverings. The spa-inspired primary bathroom is nothing short of luxurious, with a deep soaking tub, dual sinks, and a rainfall shower. A second bedroom with an en-suite bathroom and walk-in closet completes this level. On the top floor, you’ll find a rooftop deck, a versatile bonus room, and a convenient half-bath—ideal for entertaining or unwinding in style. The lower level features a private guest suite, complete with a spacious closet and elegant bathroom. An attached two-car garage with secured access offers both convenience and peace of mind. All of this, just steps away from popular shopping, dining, and entertainment.

Features
: Forced Air
: Central Air
: Finished, Partial
: Mountain(s)
: Cats OK, Dogs OK
: Living Room
: Carbon Monoxide Detector(s), Smoke Detector(s), Secured Garage/Parking
: Covered, Deck, Rooftop
: 2
: Dryer, Dishwasher, Disposal, Microwave, Range, Refrigerator, Range Hood, Washer, Bar Fridge
: Contemporary
: Membrane, Rolled/Hot Mop
: Public Sewer
Address Map
CO
Denver
Denver
80220
8th
4243
Avenue
Ella City Homes
W105° 3' 44''
N39° 43' 45.8''
E
Additional Information
$567
Monthly
: Insurance, Maintenance Grounds, Snow Removal, Trash, Recycling, Irrigation
: Frame, Stone, Stucco
South
: 220 Volts, 110V
Palmer
: Balcony, Gas Valve
1
: Carpet, Tile, Wood
2
East
: High Ceilings, Open Floorplan, Quartz Counters, Wet Bar, Entrance Foyer, Five Piece Bath, Walk-In Closet(s)
Yes
Yes
Cash, Conventional
Hill
Camber Realty, LTD
6063-28-031
: None
: Townhouse
9th and CO, Mayfair
$7,059
2025
: Cable Available, Electricity Connected, Natural Gas Connected
: Double Pane Windows, Window Coverings, Egress Windows
04/08/2026
2257
Active
Yes
1
267555
CRLTD
Denver 1
Slab
Denver 1
In Unit
Denver 1
04/16/2026
1
04/08/2026
Public
: Three Or More

9th and CO, Mayfair

4243 E 8th Avenue, Denver, CO 80220

3 Bedrooms
5 Total Baths
2,257 Square Feet
$1,099,000
Listing ID #8592092
Basic Details
Property Type : Residential
Listing Type : For Sale
Listing ID : 8592092
Price : $1,099,000
Bedrooms : 3
Rooms : 13
Total Baths : 5
Full Bathrooms : 1
3/4 Bathrooms : 2
1/2 Bathrooms : 2
Square Footage : 2,257 Square Feet
Year Built : 2020
Property Sub Type : Townhouse
Status : Active
Co List Agent Full Name : Julie Egan
Co List Office Name : Camber Realty, LTD
Originating System Name : REcolorado
Mortgage Calculator
$
$ %
years
%
$ %per year
$ %per year

$
Contact Agent