Metro Denver Luxury Homes For Sale

Property Description

Welcome to 15049 Vienna Circle in the highly sought-after Sierra Ridge community of Parker, Colorado. This well-maintained Lennar home is tenant-occupied through May 31, 2026—an excellent opportunity for investors or future homeowners planning ahead.
Seller is offering an $8,000 concession to the Buyer—providing flexibility to reduce out-of-pocket costs. Funds may be applied toward interior updates such as painting, closing costs, or an interest rate buy-down, subject to lender approval and terms of the contract.
Built in 2017, the home offers modern design and peace of mind with a new roof installed in April 2024. The property includes solar panels, with the buyer to assume the existing solar lease.
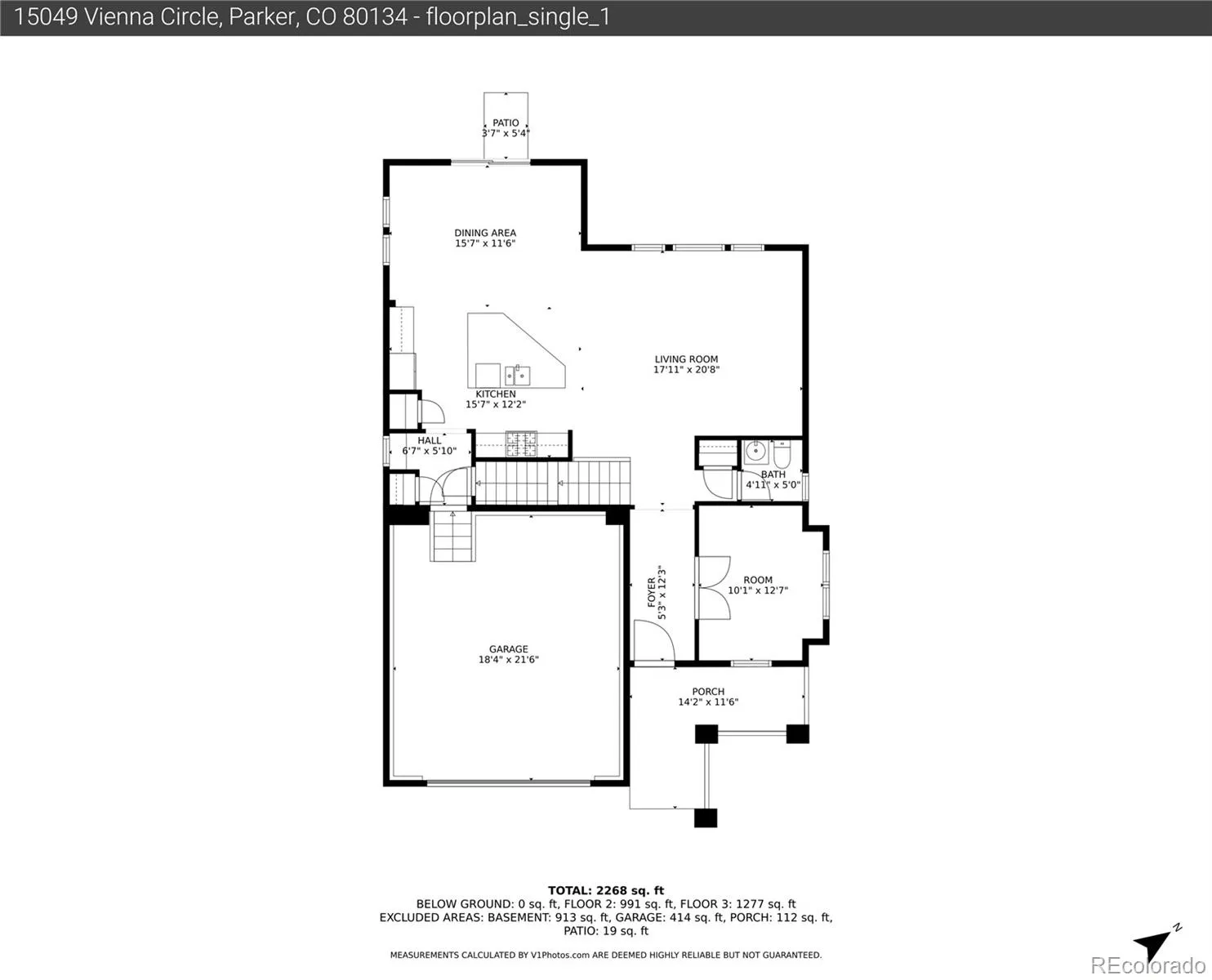
Inside features 4 bedrooms, 3.5 bathrooms, a main-floor office, and an open-concept layout. The gourmet kitchen is the centerpiece, showcasing granite countertops, a large island, stainless steel appliances with a gas range, a pantry, and rich walnut cabinetry.
The main level is filled with natural light and seamlessly connects the kitchen, dining, and living areas—ideal for everyday living and entertaining. The fully fenced backyard provides a private space for relaxing or hosting.
Upstairs includes three secondary bedrooms—two with a Jack-and-Jill bath and one with a private bath—plus a convenient second-floor laundry room. The primary suite offers a 5-piece bath with soaking tub, walk-in shower, oversized vanity, and a large walk-in closet.
The 1,018 sq ft unfinished garden-level basement offers great potential for future expansion, and the 2-car garage adds convenience.
Residents enjoy parks, trails, a clubhouse, and pool, plus highly rated Douglas County schools. Convenient access to I-25 and E-470 puts shopping, dining, and entertainment within easy reach, with downtown Denver about 45 minutes away and DIA about 50 minutes.

Features
: Forced Air
: Central Air
: Unfinished
: Full
: Yes
: Carbon Monoxide Detector(s), Smoke Detector(s)
: Covered, Front Porch
: 4
: Unfurnished
: Dryer, Dishwasher, Disposal, Microwave, Range, Refrigerator, Self Cleaning Oven, Washer, Gas Water Heater, Oven, Freezer, Sump Pump
: Contemporary
: Pool
: Concrete, Dry Walled
: Composition
: Public Sewer
Address Map
CO
Douglas
Parker
80134
Vienna
15049
Circle
W105° 11' 3.8''
N39° 31' 32.8''
Additional Information
: Accessible Kitchen
$188
Quarterly
: Road Maintenance
: Wood Siding
21
From S Chambers Road, right or left turn on to S Cosmospolitan Road, Left on Vienna Cir, quarter mile up on right side.
: 220 Volts, 110V
Prairie Crossing
: Private Yard, Rain Gutters
: Carpet, Tile, Wood
2
Chaparral
: High Ceilings, Open Floorplan, Granite Counters, Smoke Free, Kitchen Island, High Speed Internet, Entrance Foyer, Primary Suite, Five Piece Bath, Jack & Jill Bathroom, Walk-In Closet(s)
Yes
Yes
: 12 Months
Cash, Conventional, FHA, VA Loan
: Sprinklers In Front, Landscaped, Sprinklers In Rear, Irrigated
Sierra
ERA New Age
R0489325
: None
: House
Sierra Ridge
$6,152
2025
: Cable Available, Electricity Available, Natural Gas Available, Electricity Connected, Natural Gas Connected
: Double Pane Windows, Window Coverings
04/01/2026
3385
Active
Yes
1
Douglas RE-1
1
Slab
Douglas RE-1
In Unit
Douglas RE-1
04/14/2026
04/01/2026
Public
: Two

Sierra Ridge

15049 Vienna Circle, Parker, CO 80134

4 Bedrooms
4 Total Baths
2,367 Square Feet
$738,700
Listing ID #8245669
Basic Details
Property Type : Residential
Listing Type : For Sale
Listing ID : 8245669
Price : $738,700
Bedrooms : 4
Rooms : 13
Total Baths : 4
Full Bathrooms : 2
3/4 Bathrooms : 1
1/2 Bathrooms : 1
Square Footage : 2,367 Square Feet
Year Built : 2017
Lot Area : 6,882 Acres
Lot Acres : 0.16
Property Sub Type : Single Family Residence
Status : Active
Originating System Name : REcolorado
Mortgage Calculator
$
$ %
years
%
$ %per year
$ %per year

$
Contact Agent