Metro Denver Luxury Homes For Sale

Property Description

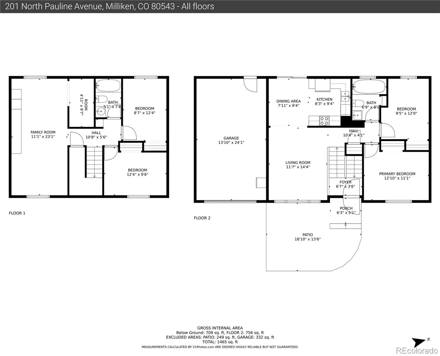
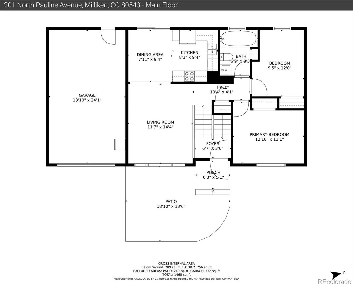
Bright and inviting from the moment you walk in, this well-designed home opens to a light-filled living space that sets a welcoming tone throughout. The modern kitchen flows seamlessly into the dining and living areas, keeping the main floor open and connected. A lower level adds a second living space, perfect for unwinding or hosting. The spacious primary bedroom is a true retreat, complemented by a sleek, modern bath with a walk-in shower. Three additional bedrooms offer all the flexibility you need, and outside, a fully fenced yard with a deck and generous greenspace makes the most of Colorado’s gorgeous seasons.
Milliken’s small-town charm is part of the appeal, with The Cracked Egg serving up a beloved local breakfast, Burnout Grill offering a laid-back spot for lunch and drinks, and O’Hara’s Irish Pub adding a cozy neighborhood watering hole to the mix. Greeley and Loveland are just a short drive away for expanded dining, shopping, and entertainment options.
Click the Virtual Tour link to view the 3D walkthrough. Discounted rate options and no lender fee future refinancing may be available for qualified buyers of this home.

Features
: Forced Air
: Central Air
: Security Entrance
: Deck
: 1
: Dryer, Dishwasher, Disposal, Microwave, Refrigerator, Washer, Convection Oven
: Traditional
: Composition
: Public Sewer
Address Map
CO
Weld
Milliken
80543
Pauline
201
Avenue
W105° 7' 60''
N40° 19' 53.6''
N
Additional Information
: Frame
East
Please use GPS
Milliken
: Laminate, Tile
1
Roosevelt
: Quartz Counters, High Speed Internet, Ceiling Fan(s)
Yes
Yes
Cash, Conventional, FHA, VA Loan
: Cul-De-Sac
Milliken
Orchard Brokerage LLC
R4609286
: None
: House
Milliken Town
$2,391
2025
: Cable Available, Phone Available, Electricity Connected, Natural Gas Connected, Internet Access (Wired)
: Double Pane Windows, Window Coverings
03/26/2026
1562
Active
1
Johnstown-Milliken RE-5J
Concrete Perimeter
Johnstown-Milliken RE-5J
In Unit
Johnstown-Milliken RE-5J
04/19/2026
03/26/2026
Public
: Bi-Level

Milliken Town

201 N Pauline Avenue, Milliken, CO 80543

4 Bedrooms
2 Total Baths
1,562 Square Feet
$415,000
Listing ID #7650396
Basic Details
Property Type : Residential
Listing Type : For Sale
Listing ID : 7650396
Price : $415,000
Bedrooms : 4
Rooms : 11
Total Baths : 2
Full Bathrooms : 1
3/4 Bathrooms : 1
Square Footage : 1,562 Square Feet
Year Built : 1977
Lot Area : 0.17 Acres
Lot Acres : 0.17
Property Sub Type : Single Family Residence
Status : Active
Originating System Name : REcolorado
Mortgage Calculator
$
$ %
years
%
$ %per year
$ %per year

$
Contact Agent