Metro Denver Luxury Homes For Sale

Property Description

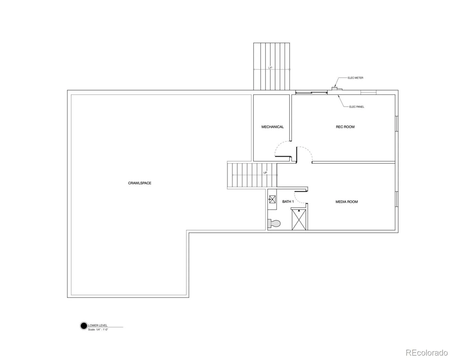
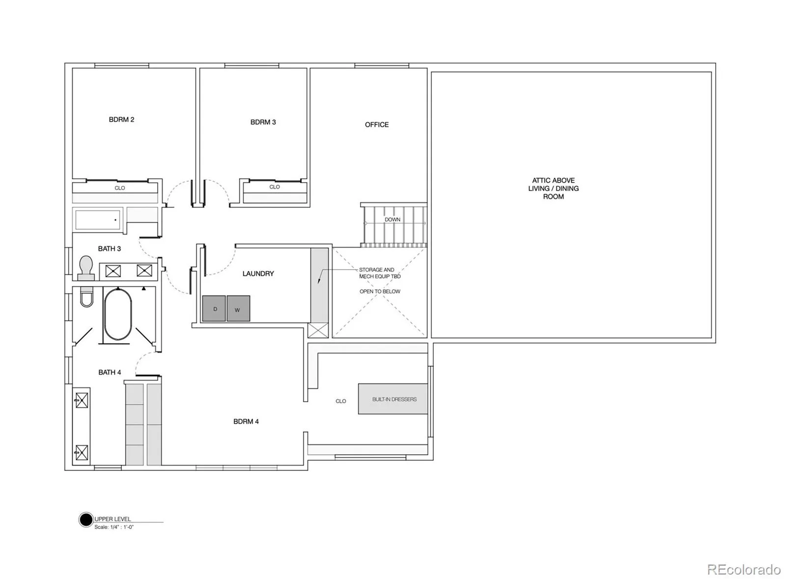
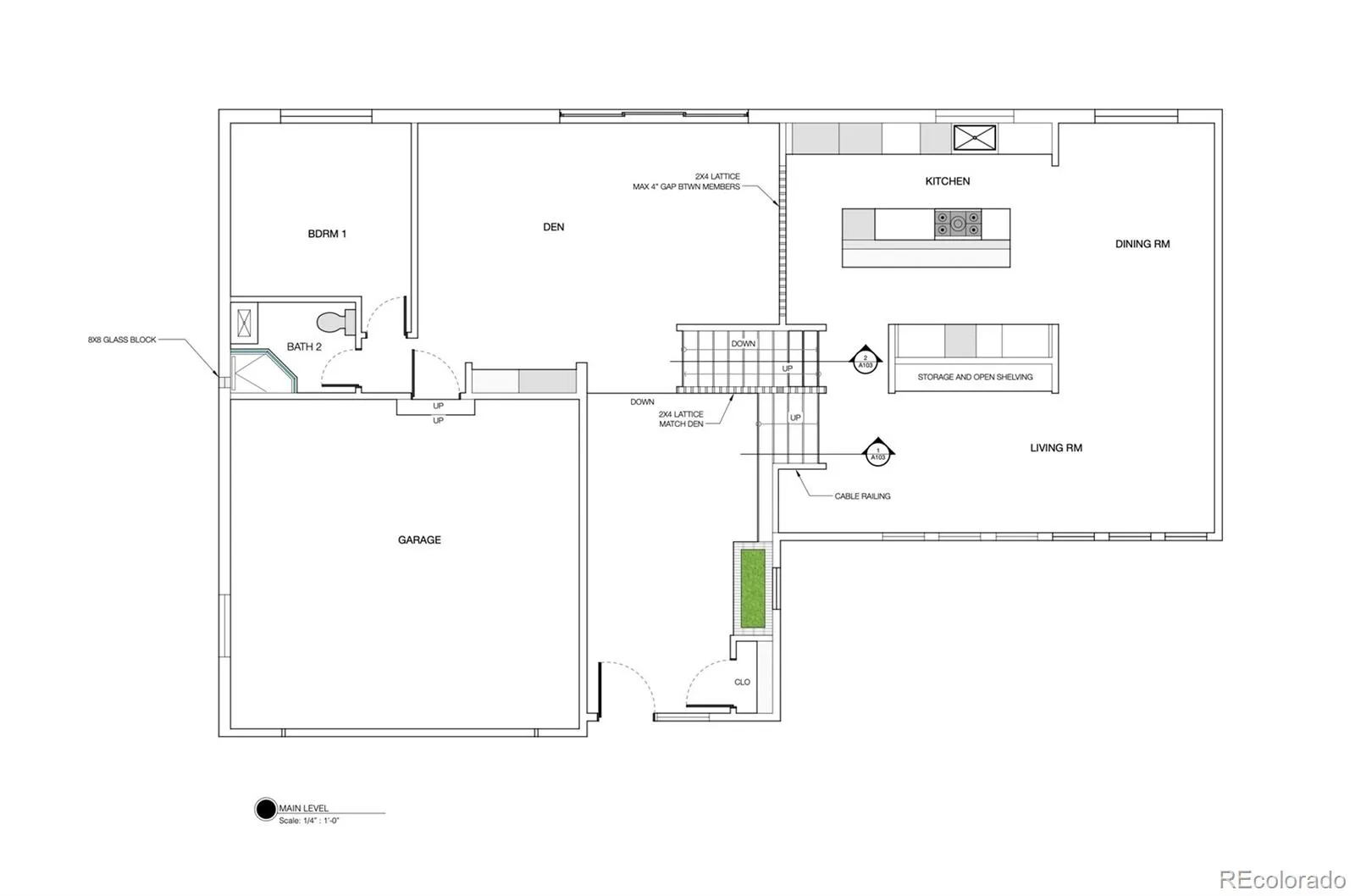
Perched high above the surrounding neighborhood, this stunningly remodeled residence offers the perfect blend of timeless character and modern luxury. Originally built in 1969, this home has been completely transformed by Joubert Homes, a premier custom builder known for crafting high-performance, energy-efficient residences. Reimagined with high-end finishes and intentional design throughout, it offers a truly turnkey retreat that seamlessly blends style, comfort and modern efficiency. Spanning 3,702 square feet, this impressive home features four spacious bedrooms and four beautifully appointed bathrooms. The heart of the home showcases an open, light-filled layout designed for both everyday living and effortless entertaining. Every detail has been elevated—from sleek, contemporary surfaces to carefully curated fixtures—delivering a polished yet inviting aesthetic. The luxurious primary suite is a true sanctuary, featuring a spa-inspired ensuite with a stunning wet room bath, floating vanities, linen storage, lighted medicine cabinets and a generous walk-in closet. Each additional bedroom and bath offers its own blend of comfort and sophistication, perfect for family or guests. Designed with sustainability in mind, the home is fully electric with modern systems and appliances, providing exceptional energy efficiency without sacrificing performance or convenience. The walkout lower level expands your living space, offering flexibility for recreation, relaxation, or entertaining. Step outside to your private backyard oasis, where a walkout patio leads to a built-in swimming pool—perfect for summer gatherings or quiet evenings under the Colorado sky. Situated on a rare .37-acre lot, the property provides both space and privacy, enhanced by its elevated setting and sweeping presence. This is a rare opportunity to own a meticulously remodeled home that seamlessly blends mid-century roots with today’s most sought-after upgrades—all in a prime Wheat Ridge location.

Features
: Private, Outdoor Pool
: Heat Pump
: Central Air
: Finished, Partial, Daylight, Walk-Out Access
: Full
: City, Mountain(s)
: Carbon Monoxide Detector(s), Smoke Detector(s), Radon Detector
: Covered, Deck, Front Porch
: 2
: Cooktop, Dishwasher, Disposal, Microwave, Refrigerator, Range Hood, Bar Fridge, Double Oven, Electric Water Heater
: Contemporary
: Concrete, Insulated Garage, Lighted, Dry Walled
: Membrane, Stone-Coated Steel
: Public Sewer
Address Map
CO
Jefferson
Wheat Ridge
80215
Mountain Shadows
3072
Drive
W106° 51' 57.7''
N39° 45' 34.6''
Additional Information
: Frame, Brick, Wood Siding
Southwest
From W 32nd Ave (between Kipling and Youngfield), go south on N. Union St. Turn right onto Mountain Shadows Dr. Property is on the right.
Prospect Valley
: Private Yard, Rain Gutters
: Tile, Vinyl
2
Wheat Ridge
: High Ceilings, Open Floorplan, Quartz Counters, Kitchen Island, Eat-in Kitchen, High Speed Internet, Entrance Foyer, Primary Suite, Five Piece Bath, Radon Mitigation System, Walk-In Closet(s)
Yes
Yes
Cash, Conventional, FHA, Jumbo, VA Loan
: Level, Many Trees, Irrigated, Cul-De-Sac
Everitt
Keller Williams Advantage Realty LLC
074924
: None
: House
Applewood Knolls
$5,749
2025
: Electricity Connected, Natural Gas Connected, Internet Access (Wired)
: Double Pane Windows
03/26/2026
: Appliances, Insulation, Thermostat, Water Heater, Windows, HVAC
3702
Active
1
Live/Work
Jefferson County R-1
Concrete Perimeter
Jefferson County R-1
In Unit
Jefferson County R-1
03/26/2026
03/26/2026
Public
: Multi/Split

Applewood Knolls

3072 Mountain Shadows Drive, Wheat Ridge, CO 80215

4 Bedrooms
4 Total Baths
3,702 Square Feet
$2,350,000
Listing ID #6415490
Basic Details
Property Type : Residential
Listing Type : For Sale
Listing ID : 6415490
Price : $2,350,000
Bedrooms : 4
Rooms : 14
Total Baths : 4
Full Bathrooms : 2
3/4 Bathrooms : 2
Square Footage : 3,702 Square Feet
Year Built : 1969
Lot Area : 16,167 Acres
Lot Acres : 0.37
Property Sub Type : Single Family Residence
Status : Active
Originating System Name : REcolorado
Mortgage Calculator
$
$ %
years
%
$ %per year
$ %per year

$
Contact Agent