Metro Denver Luxury Homes For Sale

Property Description

Four Seasons of Adventure — Minutes from Monarch

A Four-Season Mountain Retreat & Income Opportunity — Minutes from Monarch Ski Area

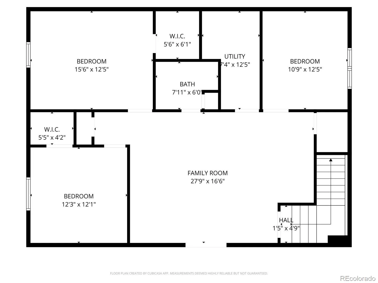
Welcome to your ideal Colorado mountain escape in the community of Garfield — a beautifully designed 4-bedroom, 3-bath home offering 2,688 sq. ft. of open-concept living, exceptional comfort, and strong short-term rental performance.

Located just 6 minutes from Monarch Ski Area and a scenic drive to downtown Salida, this property delivers year-round appeal for both personal enjoyment and investment potential in the Arkansas Valley.

Designed to host and impress, the home features vaulted ceilings, expansive windows, and an inviting open layout ideal for gathering after a day outdoors. Radiant floor heating on the main and lower levels ensures comfort in every season, while thoughtful amenities make this home especially attractive to guests and owners alike.

Property Highlights:

4 bedrooms | 3 bathrooms — ideal for groups and rental flexibility

Radiant in-floor heating on main and lower levels

Electric fireplace creating a warm mountain ambiance

Chef-inspired kitchen with granite countertops and generous storage

Private hot tub

Large wood deck with Mountain View’s.

Half-acre lot plus additional 20 ft. of green space on each side for enhanced privacy

Perfectly positioned as a true four-season retreat, owners and guests enjoy skiing and snowboarding in winter, hiking and wildflower season in spring, rafting and fishing on the Arkansas River in summer, and spectacular fall colors throughout the valley.

Whether you’re searching for a full-time residence, luxury getaway, or a short-term rental, this property offers a rare opportunity to own in one of Colorado’s fastest-growing recreation corridors.

Adventure, relaxation, and investment potential — all in one exceptional mountain home.

Features
: Electric, Radiant Floor
: None
: Finished
: None
: Mountain(s)
: Electric, Free Standing
: Covered, Deck
: 5
: Cooktop, Dryer, Dishwasher, Microwave, Range, Refrigerator, Washer, Tankless Water Heater
: Mountain Contemporary
: Gravel
: Composition
: Septic Tank
Address Map
CO
Chaffee
Salida
81201
Jones
22451
Street
W107° 42' 39''
N38° 32' 56.4''
Additional Information
: Frame, Stucco, Metal Siding
From Salida: Drive up Monarch Pass towards Monarch Ski Resort on Highway 50 Turn Left on County Road 229 Left on County Road 237 Left on Jones Street Home will be on the right. Look for "FOR SALE SIGN" at the driveway
Longfellow
: Balcony, Spa/Hot Tub
1
: Carpet, Tile, Wood
Salida
: High Ceilings, Open Floorplan, Granite Counters, Eat-in Kitchen, Vaulted Ceiling(s), Ceiling Fan(s)
Yes
Yes
1031 Exchange, Cash, Conventional
: Near Ski Area, Many Trees, Mountainous
Salida
Full Circle Real Estate Group
R368734131123
: None
: House
None
$2,627
2024
: Electricity Connected, Propane
residential
03/15/2026
2688
Active
Salida R-32
Slab
Salida R-32
Salida R-32
04/18/2026
03/15/2026
Well
: Two

None

22451 Jones Street, Salida, CO 81201

4 Bedrooms
3 Total Baths
2,688 Square Feet
$945,000
Listing ID #1924308
Basic Details
Property Type : Residential
Listing Type : For Sale
Listing ID : 1924308
Price : $945,000
Bedrooms : 4
Rooms : 13
Total Baths : 3
Full Bathrooms : 1
3/4 Bathrooms : 2
Square Footage : 2,688 Square Feet
Year Built : 2022
Lot Area : 0.50 Acres
Lot Acres : 0.5
Property Sub Type : Single Family Residence
Status : Active
Originating System Name : REcolorado
Mortgage Calculator
$
$ %
years
%
$ %per year
$ %per year

$
Contact Agent