Metro Denver Luxury Homes For Sale

Property Description

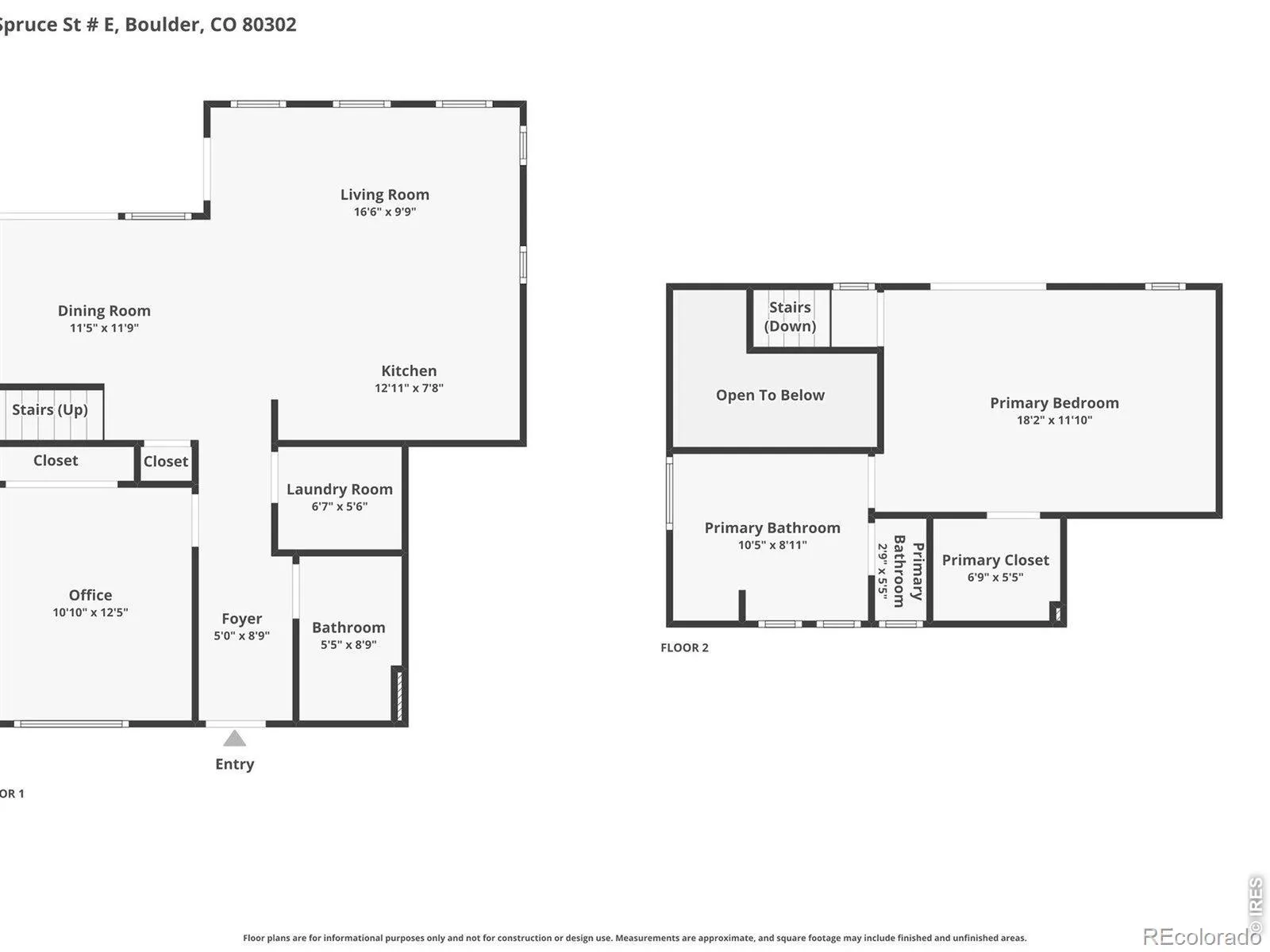
Steps from Pearl Street Mall, this rarely available Iron Flats end unit condo offers turnkey, lock and leave living in the heart of downtown Boulder. Designed for the professional who values walkability, privacy, and efficiency, this 2 bedroom, 2 bathroom residence combines thoughtful upgrades with a low maintenance lifestyle. Real hardwood flooring runs throughout the main living areas. The kitchen is both functional and refined, featuring cherry wood cabinetry, solid countertops, a Thermador gas cooktop, and an integrated Subzero refrigerator. The open layout connects seamlessly to the living and dining spaces, creating an efficient and comfortable flow for everyday living. Unlike other units in the building, the loft has been properly converted into a true bedroom, offering a private primary retreat with natural light, a spacious walk in closet, and an ensuite bath. A second bedroom on the main level functions well as a guest room or dedicated home office, with a full bathroom just across the hall. Main level laundry and a private balcony add everyday convenience. A dedicated underground parking space and private storage unit complete the package. Additional upgrades include Hunter Douglas blinds, built in surround sound, and newer mechanical systems including a furnace and hot water heater. Quiet within the community yet just moments from Pearl Street Mall, trails, coffee shops, and Boulder’s best restaurants, this downtown Boulder condo delivers simplicity, location, and ease. Opportunities to own a walkable downtown Boulder condo like this rarely come available. Turn the key. Lock the door. Walk to everything.

Features
: Forced Air
: Central Air
: None
: Dogs OK
: 1
: Dryer, Dishwasher, Refrigerator, Washer, Oven
: Storage, Elevator(s)
: Underground
: Membrane
: Public Sewer
Address Map
CO
Boulder
Boulder
80302
Spruce
2336
Street
W106° 44' 6.1''
N40° 1' 17.6''
Additional Information
$649
Monthly
: Insurance, Snow Removal, Trash, Water, Maintenance Structure, Reserves
: Brick, Concrete
30
Please use your preferred GPS.
Whittier E-8
: Wood
Boulder
: Kitchen Island, Vaulted Ceiling(s), Walk-In Closet(s)
Yes
Yes
Cash, Conventional, VA Loan
: Flood Zone
Casey
The Agency - Boulder
R0509195
Iron Flats 3rd Supp Condo
$6,377
2025
: Electricity Available, Natural Gas Available
MU-3
03/09/2026
1334
Active
Yes
Boulder Valley RE 2
Boulder Valley RE 2
04/15/2026
1
03/13/2026
E
Public
: Two

Iron Flats 3rd Supp Condo

2336 Spruce Street, Boulder, CO 80302

2 Bedrooms
2 Total Baths
1,334 Square Feet
$975,000
Listing ID #IR1053431
Basic Details
Property Type : Residential
Listing Type : For Sale
Listing ID : IR1053431
Price : $975,000
Bedrooms : 2
Rooms : 7
Total Baths : 2
Full Bathrooms : 2
Square Footage : 1,334 Square Feet
Year Built : 2004
Lot Acres : 0.24
Property Sub Type : Condominium
Status : Active
Originating System Name : REcolorado
Mortgage Calculator
$
$ %
years
%
$ %per year
$ %per year

$
Contact Agent