Metro Denver Luxury Homes For Sale

Property Description

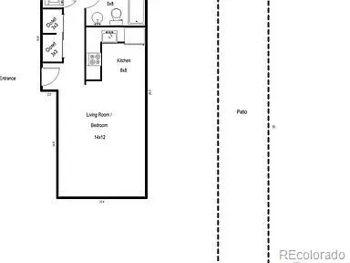
Amazing opportunity in the Congress Park neighborhood. This beautifully remodeled studio features a bright, open-concept layout with abundant natural light from three large windows, creating an airy and inviting atmosphere throughout.

The updated kitchen offers granite countertops, a stone tile backsplash, tile flooring, ample cabinetry, and stainless-steel appliances. The upgraded bathroom includes a window for natural light and ventilation. The unit also features an in-unit washer and dryer for added convenience.

Enjoy your private, fully fenced patio, perfect for relaxing, gardening, or entertaining. An additional private storage unit located at the rear of the building provides extra space for seasonal items and outdoor gear.

Conveniently located within walking distance to parks, restaurants, shops, and neighborhood amenities, this studio offers both comfort and functionality in one of Denver’s most sought-after locations.

The Congress Park neighborhood is known for its charming tree-lined streets, classic Denver bungalows, historic homes, and vibrant local businesses. This location is ideal for those seeking both neighborhood charm and city convenience. Whether you’re a first-time buyer, downsizing, or investing in one of Denver’s most connected neighborhoods, this home is a must-see.

Features
: Baseboard, Hot Water
: None
: Yes
: Patio
: Unfurnished
: Cooktop, Dryer, Dishwasher, Microwave, Refrigerator, Washer, Oven
: Mid-Century Modern
: Rolled/Hot Mop
: Public Sewer
Address Map
CO
Denver
Denver
80206
Steele
1327
Street
W105° 3' 3.6''
N39° 44' 13.3''
Additional Information
$353
Monthly
: Maintenance Grounds, Trash, Water, Heat, Maintenance Structure
: Brick, Concrete
FROM 13TH AND STEELE, NORTH TO PROPERTY
: 110V
Teller
: Tile, Wood
East
: Open Floorplan, No Stairs
Yes
Yes
Cash, Conventional, FHA, VA Loan
Morey
Home Smart
5011-12-077
: None
: Low Rise (1-3)
Congress Park
$779
2024
: Cable Available, Electricity Available, Electricity Connected, Natural Gas Connected, Internet Access (Wired)
U-RH-3A
03/10/2026
398
Active
Yes
Denver 1
1
Denver 1
In Unit
Denver 1
04/21/2026
1
03/10/2026
102
Public
: Three Or More

Congress Park

1327 Steele Street, Denver, CO 80206

1 Total Baths
398 Square Feet
$211,999
Listing ID #2629748
Basic Details
Property Type : Residential
Listing Type : For Sale
Listing ID : 2629748
Price : $211,999
Rooms : 3
Total Baths : 1
Full Bathrooms : 1
Square Footage : 398 Square Feet
Year Built : 1962
Property Sub Type : Condominium
Status : Active
Originating System Name : REcolorado
Mortgage Calculator
$
$ %
years
%
$ %per year
$ %per year

$
Contact Agent