Metro Denver Luxury Homes For Sale

Property Description

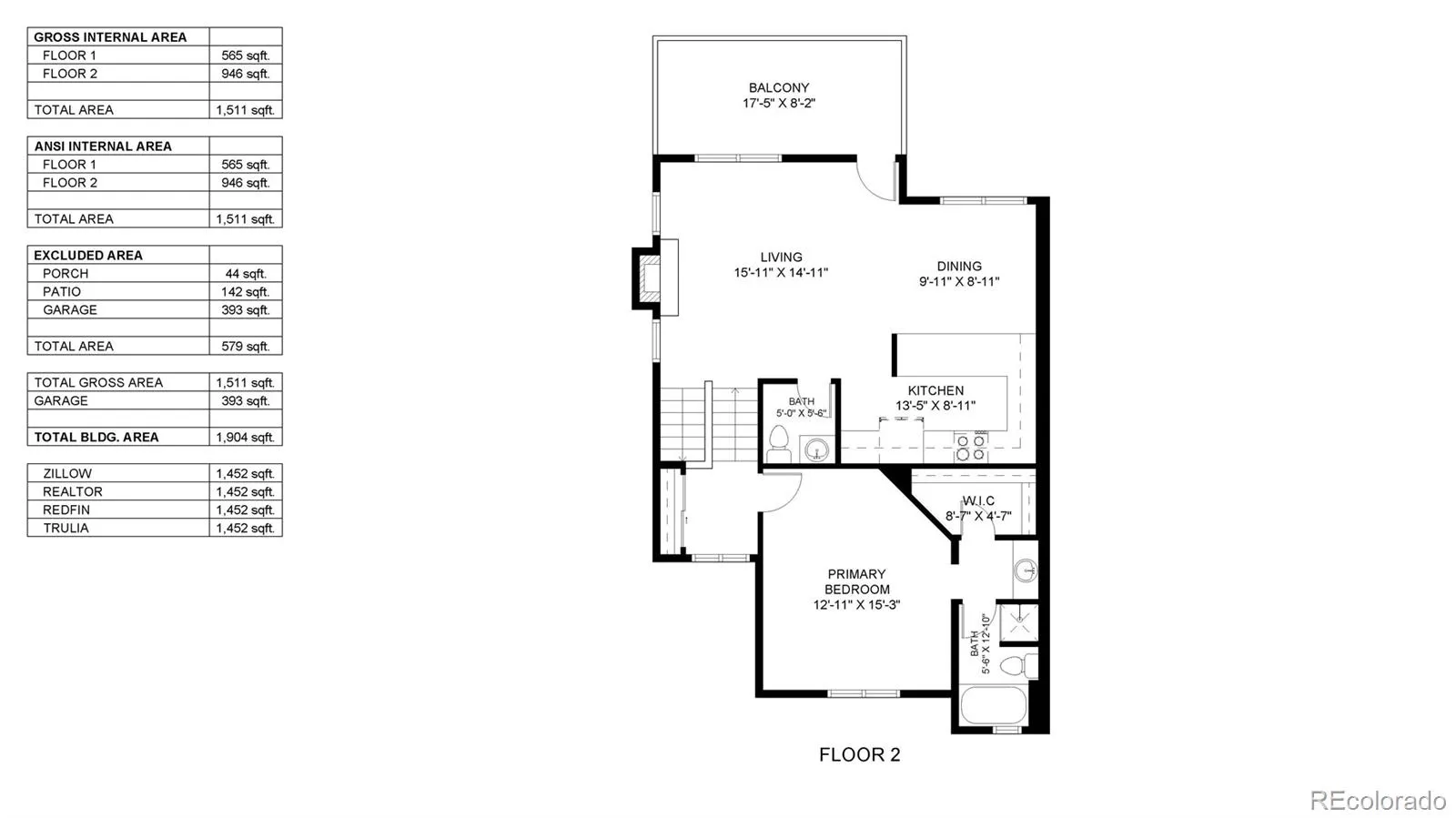
GOLDEN and FOOTHILL VIEWS | LOCATION | UPDATES Canyon View is set against the foothills backdrop of Canyon Point area and occupies a setting defined by elevation, open sky, and proximity to Colorado’s outdoor escapes. Inside, the fully furnished turnkey home unfolds with a layout oriented toward stellar natural light, allowing primary living spaces to engage with unobstructed views of School of Mines and Lookout Mountain. You will immediately enjoy upgraded light fixtures, natural park hickory plank, and carpet at each level of the home. The main living area is positioned to frame surrounding vistas and draw in shifting daylight throughout the day.Updated dining and kitchen rooms with stainless steel appliances are configured for efficiency and connection to a south facing balcony that encourages seamless indoor-outdoor living during temperate seasons Upstairs primary bedroom provides separation from the main living area and offers a quiet retreat while additional lower-level bedrooms offer flexibility for guests, remote work, or creative use. An ensuite primary bath with large walk-in closet is just one of three strategically placed bathrooms in the home. Attached two car garage offers great storage in addition to multiple storage closets at each level. Your HOA maintains the exterior of your home for the perfect low maintenance living scenario while they also boost community trails to surrounding neighborhoods and foothills. The location places residents within minutes of North Table Mountain trails, Clear Creek recreation, and downtown Golden’s local dining and community events, while Highway 93 and nearby routes provide access toward Boulder, Denver, and the broader metro area. For those seeking a Golden address for primary living to 2nd home or college investment, you will find this home integrates foothill perspective and represents a compelling balance of setting and livability. Please take an aerial tour at www.LiveGrandTour.com and schedule a showing soon!

Features
: Forced Air
: Central Air
: Finished, Partial
: None
: Gas
: Front Porch
: 9
: Furnished
: Dryer, Dishwasher, Disposal, Range, Refrigerator, Washer
: Contemporary
: Concrete
: Composition
: Public Sewer
Address Map
CO
Jefferson
Golden
80403
Canyon View
533
Drive
W106° 45' 59''
N39° 45' 23.7''
Additional Information
$500
Monthly
: Insurance, Maintenance Grounds, Sewer, Snow Removal, Trash, Maintenance Structure, Reserves
: Frame, Wood Siding
GPS direct to property and park in one of two spaces in front of garage - no street parking allowed
Mitchell
: Balcony
1
: Carpet, Vinyl
2
Golden
: High Ceilings, Vaulted Ceiling(s), Ceiling Fan(s), Entrance Foyer, Primary Suite, Walk-In Closet(s), Breakfast Bar
Yes
Yes
Cash, Conventional, FHA, VA Loan
: Landscaped, Foothills
Bell
Real Broker, LLC DBA Real
415803
: None
: Townhouse
Canyon Point Villas
$3,554
2024
: Cable Available, Electricity Connected, Natural Gas Connected
03/04/2026
1452
Active
Yes
1
Jefferson County R-1
Jefferson County R-1
Jefferson County R-1
04/10/2026
1
03/19/2026
Public
: Multi/Split

Canyon Point Villas

533 Canyon View Drive, Golden, CO 80403

3 Bedrooms
3 Total Baths
1,452 Square Feet
$735,000
Listing ID #4507442
Basic Details
Property Type : Residential
Listing Type : For Sale
Listing ID : 4507442
Price : $735,000
Bedrooms : 3
Rooms : 9
Total Baths : 3
Full Bathrooms : 2
1/2 Bathrooms : 1
Square Footage : 1,452 Square Feet
Year Built : 1996
Lot Area : 2,309 Acres
Lot Acres : 0.05
Property Sub Type : Townhouse
Status : Active
Originating System Name : REcolorado
Mortgage Calculator
$
$ %
years
%
$ %per year
$ %per year

$
Contact Agent