Metro Denver Luxury Homes For Sale

Property Description

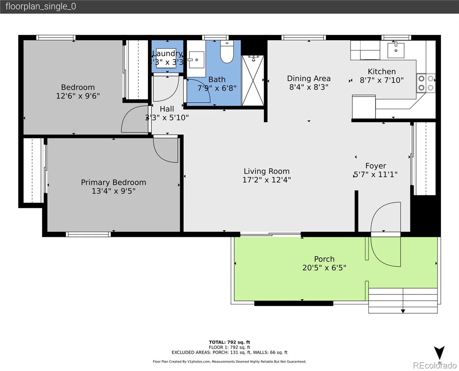
Welcome to Lexington Village Condos—where comfort, convenience, and value come together in one beautifully updated home. This thoughtfully designed unit features a smart, functional layout with stylish neutral flooring, a welcoming living area, and a refreshed kitchen complete with all major appliances—making it truly move-in ready.

Enjoy the flexibility of two spacious bedrooms and a tastefully updated ¾ bath, perfect for homeowners or tenants alike. Recent upgrades bring peace of mind and added value, including all-new windows (2022), a brand-new living room AC unit, and a second bedroom unit just two years old.

This home is loaded with extras: an in-unit washer/dryer combo, covered parking just steps across the breezeway, two newly mounted TVs, a RING doorbell and a RING light camera for added security. Plus, a 1-year home warranty is included—though with everything already updated, you may never need it!

The HOA simplifies your lifestyle by covering heat, water, sewer, trash, exterior and roof maintenance, snow removal, and access to the community pool. Recent HOA improvements, including updated roofs and boiler systems, further enhance long-term value.

Ideally located along the High Line Canal Trail with quick access to I-25, public transit, shopping, and dining, this property is a fantastic opportunity for first-time buyers, downsizers, or investors seeking a solid Southeast Denver investment.

Features
: Outdoor Pool
: Baseboard, Hot Water
: Air Conditioning-Room
: Cats OK, Dogs OK
: Smoke Detector(s), Video Doorbell, Smart Cameras
: Covered, Patio
: 1
: Dryer, Dishwasher, Disposal, Microwave, Range, Refrigerator, Washer, Oven
: Pool, Laundry, Storage
: Asphalt
: Composition
: Public Sewer
Address Map
CO
Denver
Denver
80222
Holly
2700
Street
LEXINGTON VILLAGE CONDOS
W105° 4' 41.6''
N39° 40' 1.7''
S
Additional Information
$558
Monthly
: Insurance, Maintenance Grounds, Sewer, Snow Removal, Trash, Water, Heat, Maintenance Structure, Gas
1
: Brick
North
From Yale and Holly, go west to E Yasser Ave (1st left after intersection), Park on Yasser. Use the south entrance to access courtyard, there will be a White Community Ventures Sign by entrance.
Bradley
: Laminate
Thomas Jefferson
: Open Floorplan, Granite Counters, Smoke Free, Ceiling Fan(s), Entrance Foyer
Yes
Yes
Cash, Conventional, FHA, VA Loan
: Near Public Transit, Landscaped
Hamilton
Keller Williams DTC
6322-04-011
: None
: Low Rise (1-3)
Lexington Village Condo
$878
2024
: Cable Available, Phone Available, Electricity Connected, Natural Gas Connected
: Double Pane Windows
R-2-A
03/08/2026
884
Active
Yes
Denver 1
1
Denver 1
Common Area, In Unit
Denver 1
04/24/2026
1
03/08/2026
110
Public
: One

Lexington Village Condo

2700 S Holly Street, Denver, CO 80222

2 Bedrooms
1 Total Baths
884 Square Feet
$189,000
Listing ID #6032947
Basic Details
Property Type : Residential
Listing Type : For Sale
Listing ID : 6032947
Price : $189,000
Bedrooms : 2
Rooms : 6
Total Baths : 1
3/4 Bathrooms : 1
Square Footage : 884 Square Feet
Year Built : 1970
Property Sub Type : Condominium
Status : Active
Originating System Name : REcolorado
Mortgage Calculator
$
$ %
years
%
$ %per year
$ %per year

$
Contact Agent