Metro Denver Luxury Homes For Sale

Property Description

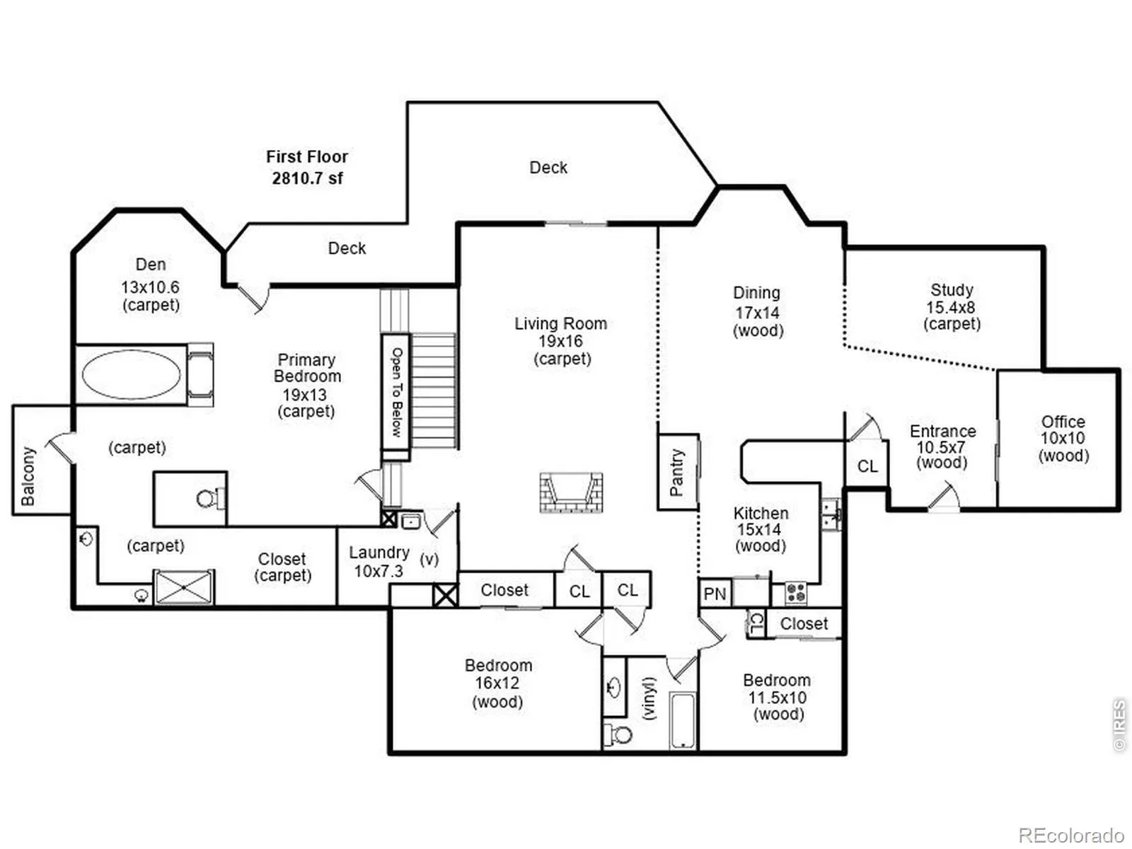
Prepare to have your breath whisked away by the mountain breeze at this exclusive Colorado retreat, where architectural elegance meets the majestic beauty of the mountainous landscape. Designed to pull the outdoors in, this home features floor-to-ceiling glass and expansive wraparound decks that frame stunning panoramic views from nearly every room. The heart of the home is a masterclass in comfort, anchored by a primary sanctuary that defines pure luxury with its multisided fireplace, private sitting area, and jetted soaking tub positioned to overlook the serene pond and rolling peaks. This residence is uniquely designed for both grand entertaining and quiet reflection, boasting a gourmet-inspired flow and a massive walkout basement with a huge recreation zone. Guests will enjoy their own lower-level retreat, complete with a private bedroom and a secluded outdoor sitting area. Experience a “top of the world” feel with unrivaled accessibility, located just a scenic 30-40 minute drive from the heart of Fort Collins and less than two hours from local ski resorts. This is where luxury, privacy, and the Colorado lifestyle finally meet.

Features
: Baseboard, Hot Water, Propane
: Central Air, Ceiling Fan(s)
: Full, Daylight, Walk-Out Access
: Partial
: Water, Mountain(s)
: Gas, Living Room, Other, Primary Bedroom
: Deck, Patio
: 2
: Dryer, Dishwasher, Disposal, Microwave, Refrigerator, Washer, Oven
: Park
: Composition
: Septic Tank
: Bath
Address Map
CO
Larimer
Livermore
80536
Mount Axtell
90
Drive
W106° 35' 35.6''
N40° 44' 26.2''
Additional Information
$700
Annually
: Snow Removal, Trash, Reserves
: Frame, Stone, Cedar
20
Other
: Balcony
: Wood, Vinyl
2
Poudre
: Pantry, Open Floorplan, Vaulted Ceiling(s), Primary Suite, Five Piece Bath, Radon Mitigation System, Walk-In Closet(s)
Yes
Yes
Cash, Conventional, FHA, VA Loan
: Rock Outcropping
Cache La Poudre
Group Mulberry
R0612944
: House
Glacier View Meadows
$4,360
2025
: Cable Available, Electricity Available, Internet Access (Wired)
: Window Coverings, Bay Window(s)
E
03/06/2026
3884
Active
Yes
Poudre R-1
Poudre R-1
In Unit
04/25/2026
Residential
03/06/2026
Well
: One

Glacier View Meadows

90 Mount Axtell Drive, Livermore, CO 80536

4 Bedrooms
3 Total Baths
3,754 Square Feet
$850,000
Listing ID #IR1053192
Basic Details
Property Type : Residential
Listing Type : For Sale
Listing ID : IR1053192
Price : $850,000
Bedrooms : 4
Rooms : 13
Total Baths : 3
Full Bathrooms : 2
3/4 Bathrooms : 1
Square Footage : 3,754 Square Feet
Year Built : 1978
Lot Acres : 1.48
Property Sub Type : Single Family Residence
Status : Active
Originating System Name : REcolorado
Mortgage Calculator
$
$ %
years
%
$ %per year
$ %per year

$
Contact Agent