Metro Denver Luxury Homes For Sale

Property Description

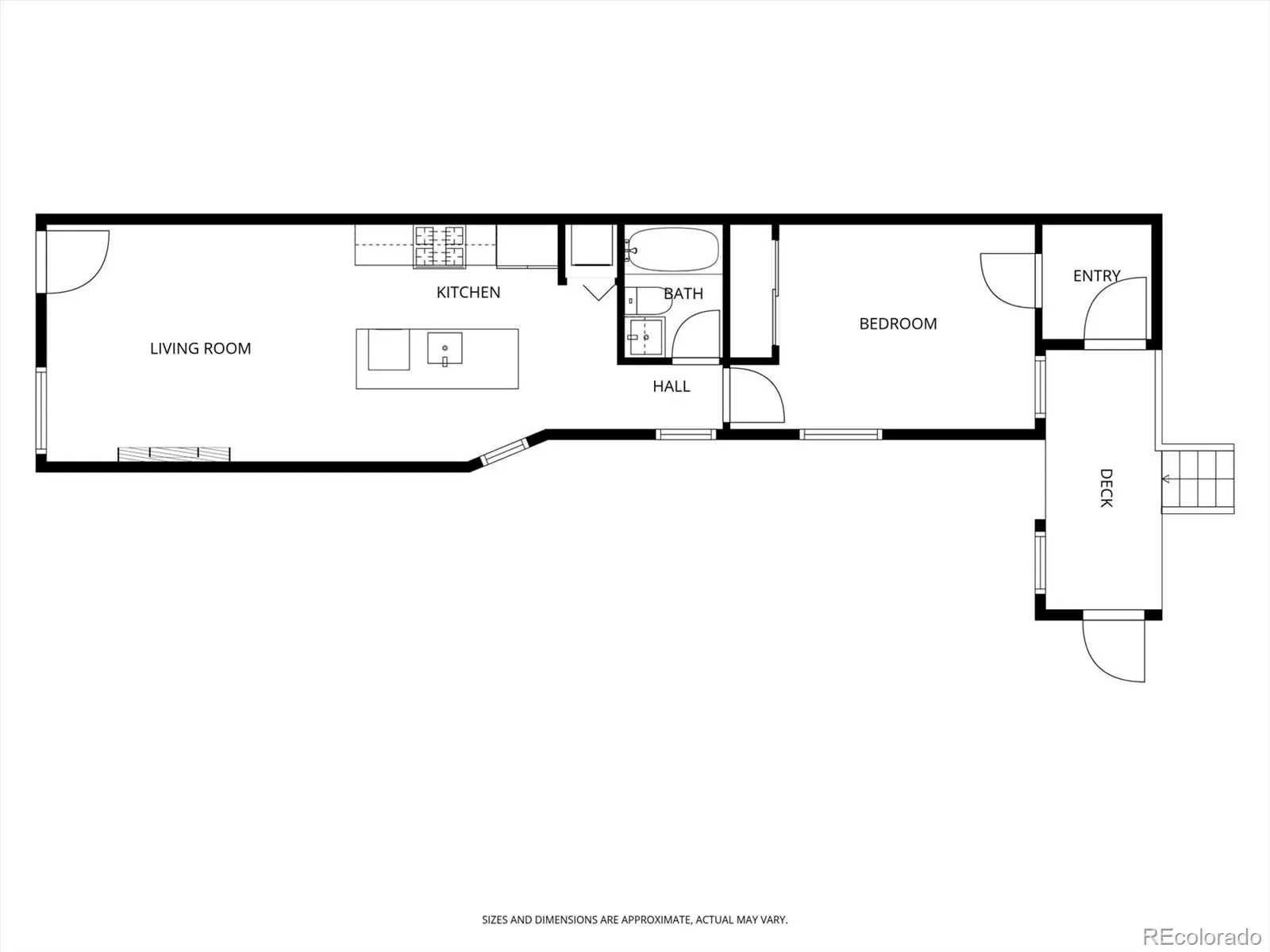
Live in the heart of it all in this beautifully updated townhome nestled in the vibrant Whittier neighborhood of Denver. Perfectly positioned facing the park, this home offers the ideal blend of neighborhood charm and city energy—steps from Cole and minutes to RiNo’s renowned dining, art, and nightlife scene. Inside, exposed brick and warm laminate flooring create an inviting, urban-modern aesthetic. The open-concept floor plan is designed for effortless living and entertaining, anchored by a cozy fireplace that adds character and comfort. The kitchen features stainless steel appliances and seamless flow into the main living space, making it as functional as it is stylish. Washer and dryer are conveniently located in-unit. Thoughtful upgrades provide peace of mind and long-term value, including a new sewer line (2020), brand-new electrical panels in 2020, updated plumbing, and tankless hot water heater (2020). Individual gas and electric utilities offer independence, while water and sewer are shared. Outdoor spaces are equally appealing, with a landscaped front yard overlooking the park and a semi private stamped concrete patio in the back—perfect for relaxing evenings or hosting friends before heading out to explore the city. Move-in ready and designed for effortless urban living, this Whittier townhome delivers style, updates, and location in one exceptional package.

Features
: Electric
: Air Conditioning-Room
: Crawl Space
: Partial
: Living Room
: Covered, Deck, Front Porch
: Dryer, Dishwasher, Disposal, Range, Refrigerator, Washer, Tankless Water Heater
: Other, Spanish Tile, Rolled/Hot Mop
: Public Sewer
Address Map
CO
Denver
Denver
80205
Martin Luther King Jr
1723
Boulevard
W105° 2' 0.8''
N39° 45' 43.5''
E
Additional Information
: Brick
South
Cole Arts And Science Academy
1
: Carpet, Laminate, Tile
Manual
Yes
Yes
Conventional, FHA
: Near Public Transit, Landscaped
Wyatt
Brokers Guild Real Estate
2262-46-049
: None
: Townhouse
whittier
$1,753
2024
: Cable Available, Electricity Available, Electricity Connected, Internet Access (Wired)
: Double Pane Windows
U-SU-A1
03/06/2026
625
Active
Denver 1
1
Block
Denver 1
In Unit
Denver 1
04/12/2026
10
1
03/06/2026
Public
: One

whittier

1723 E Martin Luther King Jr Boulevard, Denver, CO 80205

1 Bedrooms
1 Total Baths
625 Square Feet
$359,000
Listing ID #7055157
Basic Details
Property Type : Residential
Listing Type : For Sale
Listing ID : 7055157
Price : $359,000
Bedrooms : 1
Rooms : 5
Total Baths : 1
Full Bathrooms : 1
Square Footage : 625 Square Feet
Year Built : 1910
Lot Area : 953 Acres
Lot Acres : 0.02
Property Sub Type : Townhouse
Status : Active
Originating System Name : REcolorado
Mortgage Calculator
$
$ %
years
%
$ %per year
$ %per year

$
Contact Agent