Metro Denver Luxury Homes For Sale

Property Description

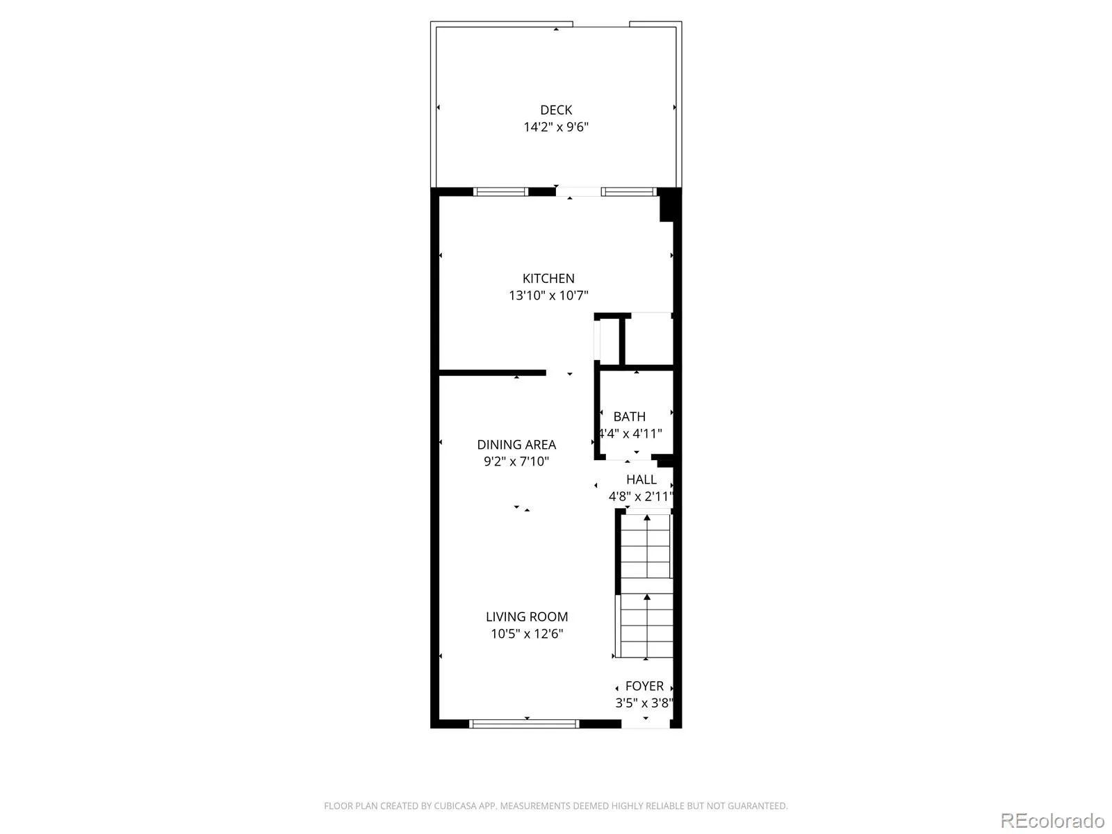
Nicely remodeled 2-story home with sweeping views of Downtown Denver and the surrounding areas! Recent updates include new A/C, furnace, hot water heater, carpet, and flooring. The finished basement offers flexible space that can be used as a 3rd bedroom, office, or recreation room. Enjoy the fenced back patio for outdoor living. Includes two covered deeded parking spaces directly behind the unit. Conveniently located within walking distance to the community pool, Green Mountain open space, trailheads, and light rail. A great opportunity to enjoy comfort, convenience and incredible views!

Features
: Forced Air, Natural Gas
: Air Conditioning-Room
: Finished, Partial
: Full
: City, Mountain(s)
: Deck, Front Porch
: 2
: Unfurnished
: Dishwasher, Disposal, Microwave, Refrigerator, Oven
: Composition
: Public Sewer
Address Map
CO
Jefferson
Golden
80401
Gladiola
478
Street
W106° 50' 19.9''
N39° 43' 22.7''
Additional Information
$245
Monthly
: Insurance, Maintenance Grounds, Sewer, Snow Removal, Trash, Water, Maintenance Structure, Reserves
2
: Frame, Wood Siding
From I-70 and 6th Avenue - Head East on 6th Avenue, Right on Indiana St, Left on 6th Avenue (Frontage Street), Right on Gladiola Street to Property on the Left - park in designated carport spots.
Kyffin
: Carpet, Laminate, Tile
Golden
: Pantry, Granite Counters, Smoke Free, Ceiling Fan(s), Walk-In Closet(s), Breakfast Bar
Yes
Yes
Cash, Conventional, FHA, VA Loan
: Greenbelt
Bell
RE/MAX Alliance
101736
: None
: Townhouse
Sixth Avenue West
$2,315
2024
: Electricity Connected, Natural Gas Connected
P-D
03/06/2026
1485
Active
Yes
32752T
REM25
Jefferson County R-1
Jefferson County R-1
In Unit
Jefferson County R-1
04/23/2026
1
04/16/2026
Public
: Two

Sixth Avenue West

478 Gladiola Street, Golden, CO 80401

2 Bedrooms
2 Total Baths
1,336 Square Feet
$394,900
Listing ID #3195056
Basic Details
Property Type : Residential
Listing Type : For Sale
Listing ID : 3195056
Price : $394,900
Bedrooms : 2
Rooms : 9
Total Baths : 2
Full Bathrooms : 1
1/2 Bathrooms : 1
Square Footage : 1,336 Square Feet
Year Built : 1972
Property Sub Type : Townhouse
Status : Active
Co List Agent Full Name : Jace Glick
Co List Office Name : RE/MAX Alliance
Originating System Name : REcolorado
Mortgage Calculator
$
$ %
years
%
$ %per year
$ %per year

$
Contact Agent