Metro Denver Luxury Homes For Sale

Property Description

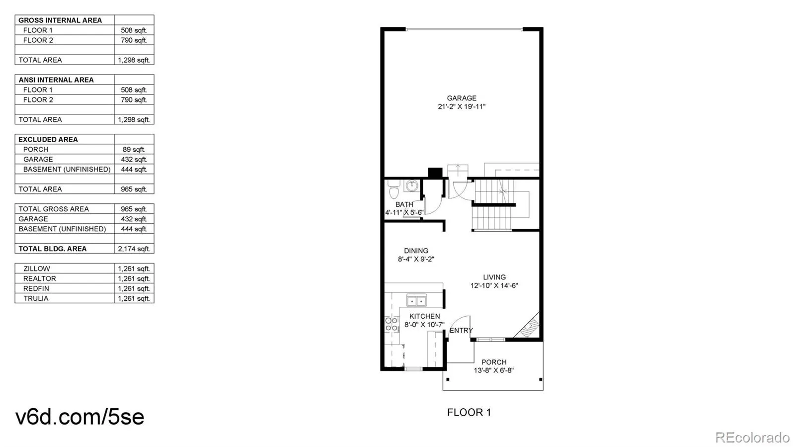
Welcome to 747 S Depew St in Lakewood, a beautifully maintained 3-bedroom, 3-bathroom townhome with a 2-car attached garage offering comfortable living, thoughtful updates, and a convenient location close to everything the west Denver metro has to offer. Step inside to an inviting open-concept main level filled with natural light and warm finishes. The spacious living room centers around a cozy gas fireplace, creating a welcoming space to relax or gather with friends. Durable flooring flows throughout the main level and connects seamlessly to the dining area and kitchen. The kitchen offers abundant cabinetry, stainless steel appliances, generous counter space, and a functional layout that makes everyday cooking and entertaining easy. A convenient breakfast bar opens to the dining area, perfect for casual meals or hosting guests. Upstairs, the primary suite provides a peaceful retreat with ample closet space and a private en-suite bathroom featuring dual sinks and a large vanity. Two additional bedrooms offer flexibility for guests, a home office, or creative space, and share a full bathroom. The thoughtful floor plan allows for comfortable living while maintaining privacy between spaces. Additional highlights include basement-level laundry and unfinished space for storage, as well as an attached 2-car garage with easy access for daily convenience. Outside, enjoy a quiet setting within a well-kept community while being just minutes from parks, trails, shopping, dining, and major commuter routes. With quick access to Belmar, downtown Denver, and the foothills, this location offers the perfect balance of city convenience and Colorado lifestyle. This move-in ready townhome combines functional design, comfortable living spaces, and an ideal Lakewood location—making it a fantastic opportunity to call home.

Features
: Forced Air
: Central Air
: Unfinished
: Full
: Gas, Family Room
: Smoke Detector(s)
: 2
: Cooktop, Dishwasher, Disposal, Microwave, Refrigerator, Oven
: Composition
: Public Sewer
Address Map
CO
Jefferson
Lakewood
80226
Depew
747
Street
W106° 56' 27.9''
N39° 42' 14.3''
S
Additional Information
$310
Monthly
: Insurance, Maintenance Grounds, Snow Removal, Trash, Water, Maintenance Structure
: Frame, Wood Siding
Deane
: Carpet, Tile, Wood
2
Alameda Int'l
: Pantry, Ceiling Fan(s), Walk-In Closet(s)
Yes
Yes
Cash, Conventional, FHA, VA Loan
Alameda Int'l
RE/MAX Northwest Inc
400748
: None
: Townhouse
Oak Run
$2,286
2024
: Electricity Connected, Natural Gas Connected
03/05/2026
1742
Active
Yes
1
04301N
REM80
Jefferson County R-1
Jefferson County R-1
Jefferson County R-1
04/10/2026
1
03/05/2026
Public
: Two

Oak Run

747 S Depew Street, Lakewood, CO 80226

3 Bedrooms
3 Total Baths
1,298 Square Feet
$420,000
Listing ID #2532617
Basic Details
Property Type : Residential
Listing Type : For Sale
Listing ID : 2532617
Price : $420,000
Bedrooms : 3
Rooms : 10
Total Baths : 3
Full Bathrooms : 2
1/2 Bathrooms : 1
Square Footage : 1,298 Square Feet
Year Built : 2001
Lot Area : 1,089 Acres
Lot Acres : 0.02
Property Sub Type : Townhouse
Status : Active
Co List Agent Full Name : Justin Pfeifer
Co List Office Name : RE/MAX Northwest Inc
Originating System Name : REcolorado
Mortgage Calculator
$
$ %
years
%
$ %per year
$ %per year

$
Contact Agent