Metro Denver Luxury Homes For Sale

Property Description

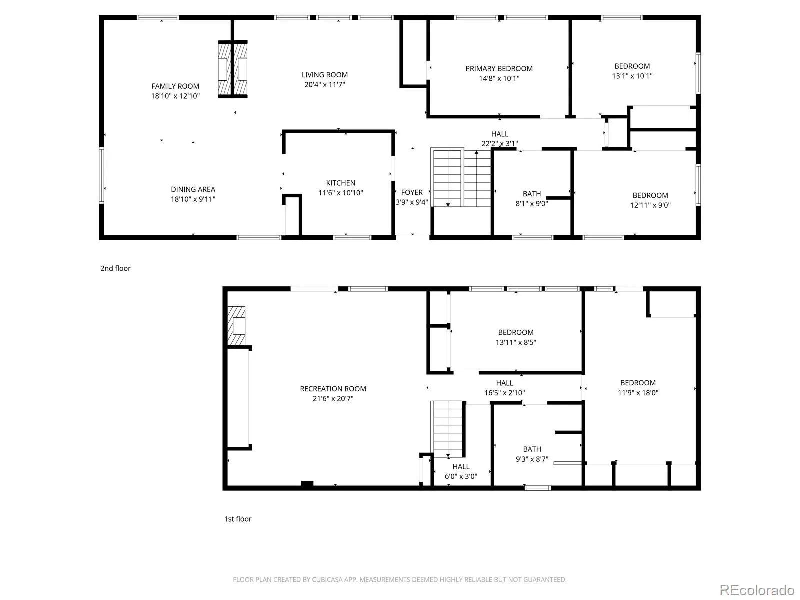
Irresistible Mid-Century Ranch in Downtown Castle Rock – Your dream multi-gen or Airbnb haven awaits. Come see the magic in person! Step inside and feel the timeless mid-century charm that makes this 5-bed, 2 bath ranch-style beauty the most captivating gem in downtown Castle Rock.
Perched on a massive lot just minutes from dining, shopping, coffee shops, and festivities – with NO HOA for ultimate freedom!
Pride of ownership radiates from the brand new Class 4 shingle roof with mitigated ridge vents for fire hardening, fresh exterior and interior paint, and stunning bamboo floors underfoot. Perfect for multigenerational living or lucrative Airbnb potential, every inch invites you to linger.
The main level steals your heart: 3 bedrooms, light, bright and functional kitchen with granite tile counters, dedicated dining room, and cozy den with 2-way fireplace to the living room-all framed by mountain views on the West side and the Castle Rock on the North side.
Leading to the fully finished walkout basement is a newly updated iron railing with an oversized picturesque window. There you will find a bar with built in sink, 2 more bedrooms (one of which has its own entrance) bathroom and living space perfect for entertaining. Slide open the glass doors to a gorgeous patio overlooking the expansive backyard – imagine hosting friends as the sun dips behind the mountains! Built in Horse Shoe Pit and Ninja gym for even more fun.
This isn’t just a house – its a lifestyle calling your name. You have to see it to believe the charm and potential! Schedule your private tour today!

Features
: Forced Air, Natural Gas
: Other
: Finished, Full, Exterior Entry, Walk-Out Access
: Partial
: Mountain(s)
: Yes
: Family Room, Wood Burning, Basement, Circulating
: Smoke Detector(s)
: Deck, Front Porch, Patio
: 1
: Unfurnished
: Dryer, Dishwasher, Disposal, Self Cleaning Oven, Washer, Gas Water Heater, Oven
: Mid-Century Modern
: Composition
: Public Sewer
Address Map
CO
Douglas
Castle Rock
80104
Vista
571
Drive
W105° 8' 54.6''
N39° 22' 31''
Additional Information
: Wood Siding
East
Please use navigation.
South Ridge
: Private Yard, Rain Gutters, Garden
2
: Carpet, Tile, Bamboo
1
Douglas County
: Open Floorplan, Granite Counters, Smoke Free, Eat-in Kitchen, High Speed Internet, Ceiling Fan(s), Tile Counters, Walk-In Closet(s), In-Law Floorplan
Yes
Yes
Cash, Conventional, FHA, Other, VA Loan
: Level, Landscaped
Mesa
Engel & Voelkers Castle Pines
R0080338
: None
: House
Castle Rock Heights
$2,598
2025
: Cable Available, Natural Gas Available, Phone Available, Electricity Connected, Natural Gas Connected, Internet Access (Wired)
: Double Pane Windows, Window Coverings, Egress Windows
R1
03/05/2026
: Windows, Roof
2726
Active
1
Douglas RE-1
Slab
Douglas RE-1
Sink
Douglas RE-1
04/29/2026
03/05/2026
Public
: One

Castle Rock Heights

571 Vista Drive, Castle Rock, CO 80104

5 Bedrooms
2 Total Baths
2,666 Square Feet
$729,000
Listing ID #4707214
Basic Details
Property Type : Residential
Listing Type : For Sale
Listing ID : 4707214
Price : $729,000
Bedrooms : 5
Rooms : 14
Total Baths : 2
Full Bathrooms : 1
3/4 Bathrooms : 1
Square Footage : 2,666 Square Feet
Year Built : 1958
Lot Area : 13,286 Acres
Lot Acres : 0.31
Property Sub Type : Single Family Residence
Status : Active
Originating System Name : REcolorado
Mortgage Calculator
$
$ %
years
%
$ %per year
$ %per year

$
Contact Agent
Open Dates
  • 1. 2026-05-02 (Start time: 2026-05-02T19:00:00Z - End time: 2026-05-02T21:00:00Z)