Metro Denver Luxury Homes For Sale

Property Description

****Contact builder today about Special Financing for this home – terms and conditions apply**

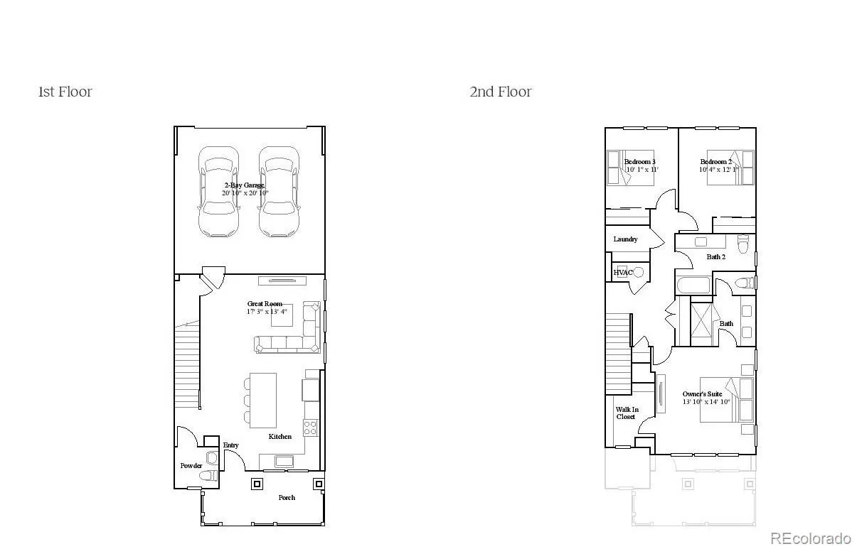
Anticipated completion August 2026!! Low maintenance living in this gorgeous new Sterling Ranch community. Just lock up and go. This brand new 2-story townhome is in a 4-plex and features 3 bedrooms, 2.5 baths, great room, kitchen, loft, upper laundry, 2 car attached garage (rear alley entry) and conditioned crawl space. Gorgeous finishes and upgrades throughout including luxury vinyl plank flooring, stainless steel appliances, slab quartz counters and more. The builder provides the latest in energy efficiency and state of the art technology with several fabulous floorplans to choose from. Energy efficiency, and technology/connectivity seamlessly blended with luxury to make your new house a home. Sterling Ranch offers several fabulous plans to choose from. Photos are model only and subject to change.

Features
: Forced Air, Natural Gas
: Central Air
: Crawl Space
: None
: Yes, Cats OK, Dogs OK
: Carbon Monoxide Detector(s), Smoke Detector(s)
: Patio
: 2
: Dishwasher, Disposal, Microwave, Refrigerator, Oven
: Concrete
: Composition
: Public Sewer
Address Map
CO
Douglas
Littleton
80125
Whiteclover
8915
Street
W106° 58' 16.9''
N39° 29' 30.6''
Additional Information
$85
Monthly
: Frame, Other
Roxborough
: Carpet, Tile, Vinyl
2
Thunderridge
: Smoke Free, Kitchen Island, Primary Suite, Walk-In Closet(s)
Yes
Yes
Cash, Conventional, FHA, VA Loan
Ranch View
RE/MAX Professionals
R0624288
: None
: Townhouse
Sterling Ranch
$6,892
2025
: Cable Available, Electricity Available, Natural Gas Available, Phone Available, Electricity Connected, Natural Gas Connected
: Double Pane Windows
03/04/2026
1623
Active
Yes
1
Douglas RE-1
Douglas RE-1
In Unit
Douglas RE-1
04/24/2026
4
1
03/04/2026
Public
: Two

Sterling Ranch

8915 Whiteclover Street, Littleton, CO 80125

3 Bedrooms
3 Total Baths
1,623 Square Feet
$548,600
Listing ID #4469229
Basic Details
Property Type : Residential
Listing Type : For Sale
Listing ID : 4469229
Price : $548,600
Bedrooms : 3
Rooms : 10
Total Baths : 3
Full Bathrooms : 1
3/4 Bathrooms : 1
1/2 Bathrooms : 1
Square Footage : 1,623 Square Feet
Year Built : 2026
Lot Area : 1,873 Acres
Lot Acres : 0.04
Property Sub Type : Townhouse
Status : Active
Originating System Name : REcolorado
Mortgage Calculator
$
$ %
years
%
$ %per year
$ %per year

$
Contact Agent