Metro Denver Luxury Homes For Sale

Property Description

Welcome to 950 Jamaica — a move-in-ready home just waiting for you! Fresh paint throughout and new carpeting in bedrooms, along with new lighting, ceiling fans, bathroom fixtures, and window blinds, means all the work has already been done. Simply unpack and settle in.
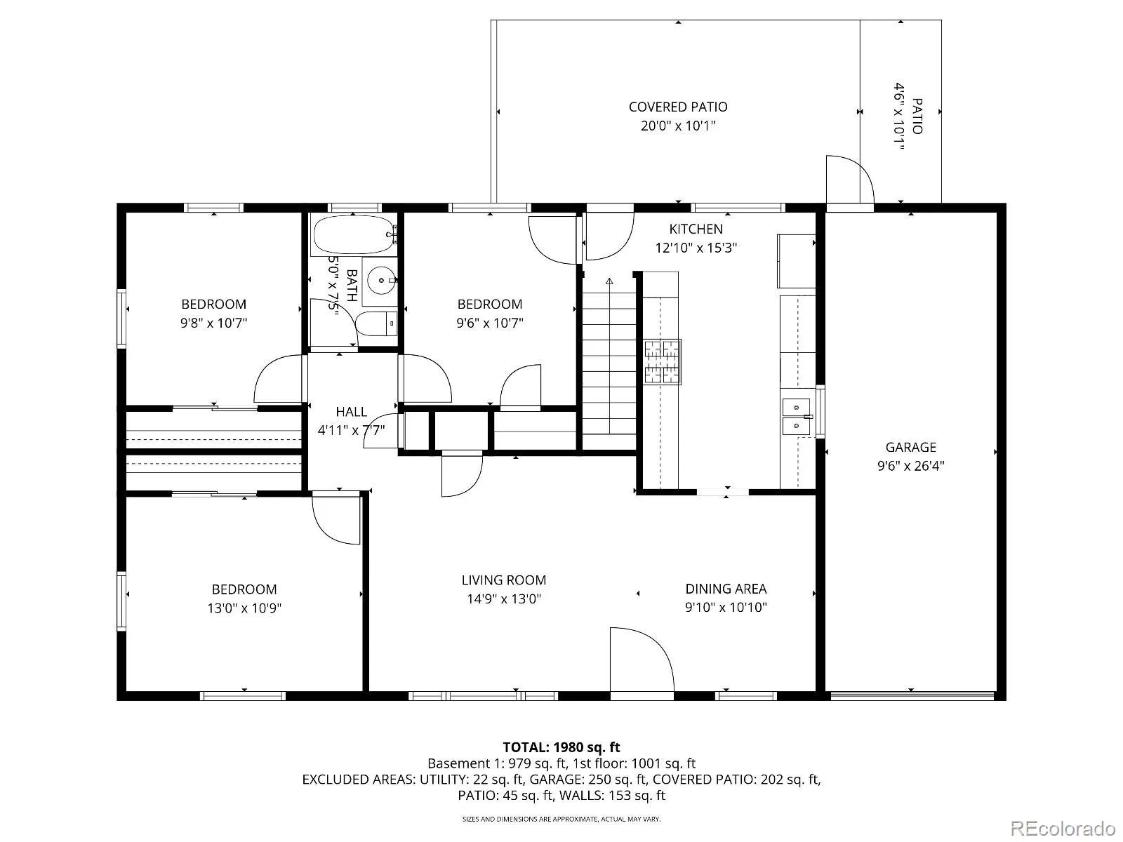
The main level features beautiful hardwood floors in the living and dining areas for easy maintenance. The updated, spacious kitchen offers stainless steel appliances, attractive tile flooring, and newer countertops and cabinets with plenty of storage.
You’ll also find two generously sized bedrooms, a full bath, and a versatile third room that works perfectly as a home office or additional bedroom.
Downstairs, the finished lower level provides even more living space, including a large family room ideal for movie nights or watching the big game. There’s also an expansive laundry room with an additional full-size stainless-steel refrigerator, two more large bedrooms, another bathroom, and a dedicated storage room.
Step outside to enjoy the oversized backyard, complete with a covered patio and a private enclosed area perfect for fire pits and relaxing evenings with family and friends. An oversized one-car garage adds the finishing touch to this wonderful home.
Don’t miss your chance to make it yours!

Features
: Natural Gas
: Central Air
: Finished
: Partial
: Carbon Monoxide Detector(s), Radon Detector
: Covered, Patio
: 1
: Unfurnished
: Dryer, Dishwasher, Disposal, Microwave, Refrigerator, Range Hood, Self Cleaning Oven, Washer, Gas Water Heater
: Traditional
: Concrete
: Tar/Gravel
: Public Sewer
Address Map
CO
Arapahoe
Aurora
80010
Jamaica
950
Street
W105° 8' 16.2''
N39° 43' 49.2''
Additional Information
: Brick
West
Fulton
: Rain Gutters
1
Aurora Central
Yes
Yes
Cash, Conventional, FHA
: Level
South
Cornerstone Real Estate & Property Management LLC
1973-02-3-13-002
: None
: House
Havana Park Resub Of Blks 2&3
$3,330
2025
: Cable Available, Phone Available, Electricity Connected, Natural Gas Connected, Phone Connected
03/02/2026
3192
Active
1
Adams-Arapahoe 28J
2
Concrete Perimeter, Slab
Adams-Arapahoe 28J
Adams-Arapahoe 28J
03/05/2026
03/02/2026
Shared Well
: One

Havana Park Resub Of Blks 2&3

950 Jamaica Street, Aurora, CO 80010

5 Bedrooms
2 Total Baths
2,184 Square Feet
$500,000
Listing ID #5311949
Basic Details
Property Type : Residential
Listing Type : For Sale
Listing ID : 5311949
Price : $500,000
Bedrooms : 5
Rooms : 10
Total Baths : 2
3/4 Bathrooms : 2
Square Footage : 2,184 Square Feet
Year Built : 1959
Lot Area : 7,100 Acres
Lot Acres : 0.16
Property Sub Type : Single Family Residence
Status : Active
Originating System Name : REcolorado
Mortgage Calculator
$
$ %
years
%
$ %per year
$ %per year

$
Contact Agent