Metro Denver Luxury Homes For Sale

Property Description

This large home has the lowest Above Grade Price/SqFt in the whole neighborhood — and expansion space if you need it! Located in desirable Leawood, 6273 S Marshall Court is a perfect home in a lovely, quiet neighborhood! All the heavy lifting has been done for you with a four year-old roof & siding and a two year-old furnace, A/C and hot water heater! Also, notice the upgraded laminate plank flooring throughout the main level, upper level and stairs — no more ugly traffic patterns in your carpet! The house has a good-sized kitchen with built-in storage and eat-in space. There is entertaining space throughout the whole main level as well as outside in the large backyard. Additionally, there are parks (one right behind the house!) schools, restaurants and shopping nearby for your convenience. Lots of space to make this house your own – Come see it today! Additional information and collateral can be found at: https://www.v6d.com/lmr

Features
: Forced Air
: Central Air
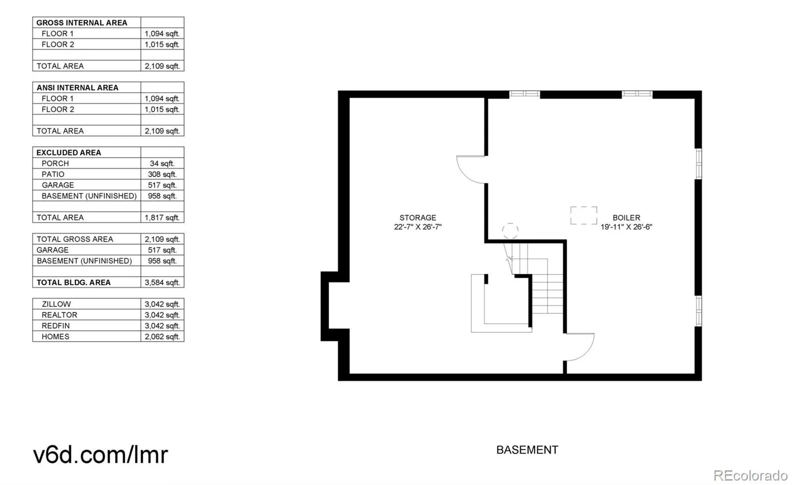
: Full, Unfinished
: Full
: Family Room
: Carbon Monoxide Detector(s), Smoke Detector(s), Video Doorbell
: Patio
: 2
: Unfurnished
: Dryer, Dishwasher, Disposal, Microwave, Range, Refrigerator, Washer, Gas Water Heater
: Traditional
: Concrete
: Shingle
: Public Sewer
Address Map
CO
Jefferson
Littleton
80123
Marshall
6273
Court
W106° 55' 47.2''
N39° 36' 11.5''
S
Additional Information
: Frame, Brick
East
From Bowles and Santa Fe, go west on Bowles until you reach Pierce. Take a left on Pierce and a left on Fair Dr (across from Columbine HS). At the stop sign, take a right on Marshall Court -- the house is at the end of block on the corner.
Leawood
: Private Yard, Rain Gutters
1
: Laminate
2
Columbine
: Smoke Free, Eat-in Kitchen, Ceiling Fan(s), Entrance Foyer, Built-in Features, Primary Suite, Breakfast Bar
Yes
Yes
Cash, Conventional, FHA, VA Loan
: Level, Landscaped, Many Trees
Ken Caryl
RE/MAX Alliance
098113
: None
: House
Leawood
$4,565
2024
: Cable Available, Phone Available, Electricity Connected, Natural Gas Connected
: Double Pane Windows
R-1A
02/27/2026
3042
Active
1
Jefferson County R-1
1
Concrete Perimeter
Jefferson County R-1
Jefferson County R-1
05/26/2026
03/27/2026
Public
: Two

Leawood

6273 S Marshall Court, Littleton, CO 80123

4 Bedrooms
3 Total Baths
2,062 Square Feet
$680,000
Listing ID #2844708
Basic Details
Property Type : Residential
Listing Type : For Sale
Listing ID : 2844708
Price : $680,000
Bedrooms : 4
Rooms : 12
Total Baths : 3
Full Bathrooms : 1
3/4 Bathrooms : 1
1/2 Bathrooms : 1
Square Footage : 2,062 Square Feet
Year Built : 1972
Lot Area : 13,286 Acres
Lot Acres : 0.31
Property Sub Type : Single Family Residence
Status : Active
Originating System Name : REcolorado
Mortgage Calculator
$
$ %
years
%
$ %per year
$ %per year

$
Contact Agent