Metro Denver Luxury Homes For Sale

Property Description

1757 W 34th Ave/3420 Quivas by appointment ONLY!!!
Zoned U-TU-B
Property is sold AS IS

Unique investment opportunity!! Corner double lot in highly sought after Lower Highland in Denver. (loHi)
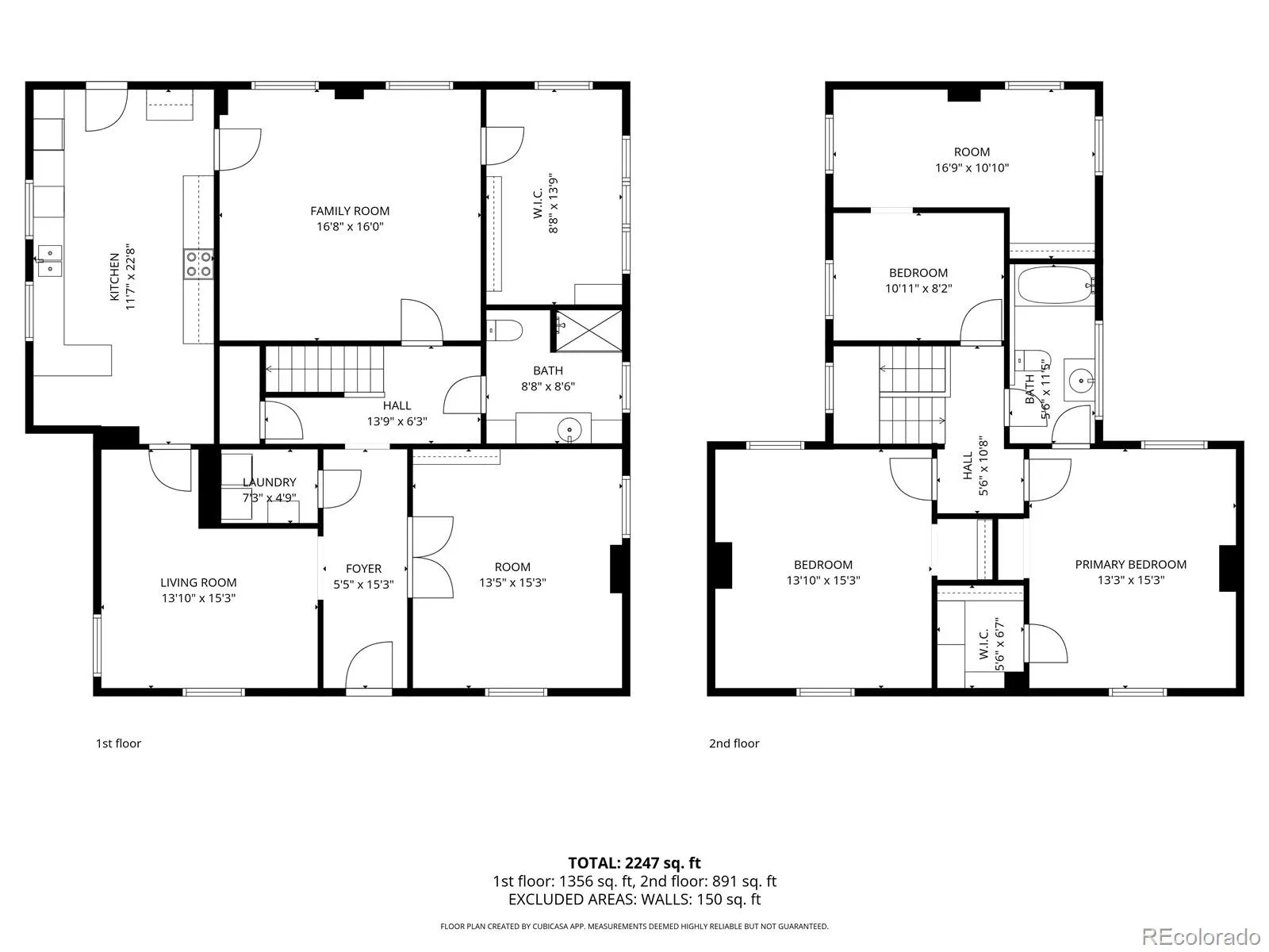
This lot has two separate dwellings. The 2-story main house facing 34th Ave has three bedrooms and two baths. It is structurally compromised and may eventually need to be rebuilt.
The second home, formerly a grocery store, facing Quivas Street has been rented as a Corporate Housing unit. Moat recently rented for $3150 a month. This two-bed, one-bath single-story home, approximately 1,000 sf has an open loft layout with a separate attached sun porch currently used as a second bedroom. (non conforming as it does not have a closet)
Between both structures is a cobblestone-paved courtyard. The property has a relatively new three car garage accessible from the alley on Quivas Street and through the courtyard by foot. The legal address for both is 1757 W 34th Ave. While the back, former grocery store is named 3420 Quivas St on Google Maps, it is technically 1757 W 34th Ave #2.

Currently both units are rented on a monthly basis. The main house is rented at $2600/month and the former grocery store is rented at $3150/month. This provides a total income of $5,750 a month for any investor while they determine changes and procure permits.

All information, claims and statements regarding the use/zoning and potential improvement of this property must be verified by the interested party and are not guaranteed by the Seller/Listing Agent.
Attached are floor plans of both units and photos of Quivas property only.

Features
: Forced Air
: Air Conditioning-Room
: Cellar
: Full
: City
: 3
: Dryer, Dishwasher, Disposal, Microwave, Range, Refrigerator, Range Hood, Washer, Gas Water Heater
: Composition
: Public Sewer
Address Map
CO
Denver
Denver
80211
34th
1757
Avenue
W106° 59' 31.8''
N39° 45' 52.8''
W
Additional Information
: Brick
South
GPS
: 220 Volts, 110V
Valdez
: Carpet, Tile, Wood
3
North
Yes
Yes
: Other
Cash
: Level, Corner Lot
Strive Sunnyside
8z Real Estate
2282-24-028
: None
: House
Lower Highland
$8,238
2024
: Double Pane Windows
U-TU-B
02/26/2026
2473
Active
Denver 1
Block
Denver 1
Denver 1
03/23/2026
02/27/2026
Public
: Two

Lower Highland

1757 W 34th Avenue, Denver, CO 80211

3 Bedrooms
2 Total Baths
2,350 Square Feet
$950,000
Listing ID #2949985
Basic Details
Property Type : Residential
Listing Type : For Sale
Listing ID : 2949985
Price : $950,000
Bedrooms : 3
Rooms : 8
Total Baths : 2
Full Bathrooms : 1
3/4 Bathrooms : 1
Square Footage : 2,350 Square Feet
Year Built : 1896
Lot Area : 7,170 Acres
Lot Acres : 0.16
Property Sub Type : Single Family Residence
Status : Active
Originating System Name : REcolorado
Mortgage Calculator
$
$ %
years
%
$ %per year
$ %per year

$
Contact Agent