Metro Denver Luxury Homes For Sale

Property Description

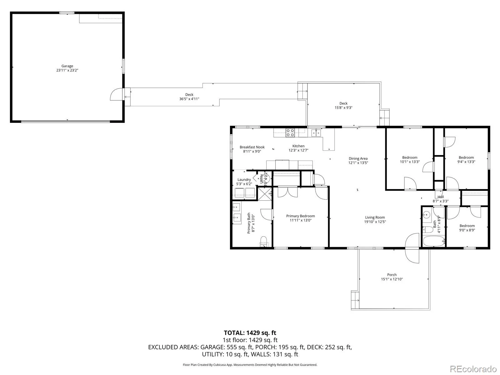
Colorado skies, wide-open space, and breathtaking views of America’s Mountain define this inviting 4-bedroom, 2-bath ranch home. Situated on 2.5 acres with just over 1,500 square feet of living space, the home is ideally placed so the front windows capture a picture-perfect view of Pikes Peak, creating a breathtaking mountain backdrop to enjoy each day. Inside, the open layout feels bright and comfortable, with tall dining room windows that fill the space with natural light. Newer laminate flooring flows through the main living areas, while the kitchen features ceramic tile flooring and a clean, well-maintained appliance package that complements the space. A wood accent wall adds warmth and personality, and the Whirlpool washer and dryer are included for everyday ease. Each bedroom captures its own view of the surrounding landscape, creating a peaceful atmosphere throughout. Outdoors, the full stucco exterior pairs with recently built front and back decks — ideal for soaking in the views or enjoying quiet evenings. A 6-foot privacy fence provides flexibility for animals or added privacy, while still embracing the open feel of the acreage. With convenient access to Falcon, Schriever, and Peterson Air Force Bases, as well as Colorado Springs, this home offers a comfortable blend of rural charm and a practical location. If you’ve been searching for space, views, and a true Colorado setting, this home is ready to welcome you.

Features
: Forced Air, Propane
: None
: Crawl Space
: Partial
: Mountain(s), Meadow, Plains
: Carbon Monoxide Detector(s), Smoke Detector(s)
: Front Porch
: 2
: Unfurnished
: Dryer, Dishwasher, Disposal, Microwave, Range, Refrigerator, Washer, Oven
: Composition
: Community Sewer
Address Map
CO
El Paso
Peyton
80831
Peerless Farms
5535
Road
W105° 29' 32.7''
N38° 54' 41''
Additional Information
: Stucco
West
US-24 E toward Airport/Limon, Use the left 2 lanes to turn left onto Chelton Rd, Turn right onto E Platte Ave, Continue onto US-24 E, Turn right onto Falcon Hwy, Turn right onto Peerless Farms Rd, Property is on the left
: 220 Volts
Banning Lewis Ranch Academy
: Private Yard
: Laminate, Tile
2
Banning Lewis Ranch Academy
: High Ceilings, Open Floorplan, Vaulted Ceiling(s), Ceiling Fan(s), No Stairs, Breakfast Bar
Yes
Yes
Cash, Conventional, FHA, Other, VA Loan
: Sloped, Meadow
Banning Lewis Ranch Academy
High Country Realty
4313005038
: None
: Manufactured House
Sage Creek South
$1,581
2024
: Electricity Connected, Propane
RR-2.5
02/26/2026
1539
Active
55038888
M1865
District 49
District 49
District 49
02/28/2026
02/26/2026
Private
: One

Sage Creek South

5535 Peerless Farms Road, Peyton, CO 80831

4 Bedrooms
2 Total Baths
1,539 Square Feet
$465,000
Listing ID #6222500
Basic Details
Property Type : Residential
Listing Type : For Sale
Listing ID : 6222500
Price : $465,000
Bedrooms : 4
Rooms : 10
Total Baths : 2
Full Bathrooms : 1
3/4 Bathrooms : 1
Square Footage : 1,539 Square Feet
Year Built : 1996
Lot Area : 2.50 Acres
Lot Acres : 2.5
Property Sub Type : Single Family Residence
Status : Active
Co List Agent Full Name : Kellie Case
Co List Office Name : High Country Realty
Originating System Name : REcolorado
Mortgage Calculator
$
$ %
years
%
$ %per year
$ %per year

$
Contact Agent