Metro Denver Luxury Homes For Sale

Property Description

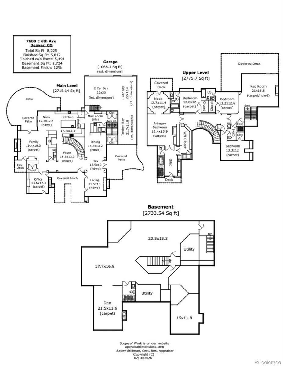
A statement in scale and design, this custom-built estate rises with architectural presence on a prominent corner lot in one of Lowry’s most coveted enclaves. Set along the distinguished stretch of 6th Avenue Parkway, where true estates rarely trade – the home enjoys a scarce position backing to open space, delivering unobstructed sunset and mountain views few in the neighborhood can claim. Built with quality and craftsmanship seldom found today, this residence offers long-term versatility. A covered front porch welcomes you into a grand foyer with sweeping staircase, soaring ceilings, and dramatic two-story windows. Arched French-pane windows flood interior with sunlight, while custom millwork creates a timeless aesthetic. The East wing of the main level features a sunlit east-facing office with fireplace, luxurious powder bath, and oversized receiving area with full wet bar with refrigeration and outdoor patio access. The West wing of the main level is anchored by a formal living room, flexible piano or sitting room, and formal dining space supported by a well-appointed butler’s pantry. The chef’s kitchen offers an eat-in island, integrated appliances, walk-in pantry, warming drawer, and six-burner range with custom hood and pot filler. Off the four-car garage, a mudroom with built-ins connects to a well-appointed laundry room with utility sink. Upstairs, four ensuite bedrooms with walk-in closets plus a large recreation room with fireplace and wraparound deck support multigenerational living. The primary suite features a fireplace, sitting area, wet bar, covered balcony, and spa bath with jetted tub, walk-in shower, dual vanities, and custom closet with laundry. The lower level is prepped for future finish with office, bath/bar plumbing, and bedroom framing. Fully fenced yard and integrated security complete this rare offering backing to open space just moments from Denver’s core.

Features
: Heat Pump
: Central Air
: Finished, Partial, Unfinished, Interior Entry
: Full
: Mountain(s)
: Gas, Great Room, Living Room, Primary Bedroom
: Security System
: Covered, Deck, Front Porch, Patio
: 4
: Unfurnished
: Dryer, Dishwasher, Microwave, Range, Refrigerator, Range Hood, Washer, Bar Fridge, Warming Drawer
: Traditional
: Shingle
: Public Sewer
Address Map
CO
Denver
Denver
80230
6th
7680
Avenue
W105° 6' 2.6''
N39° 43' 30.9''
E
Additional Information
$140
Quarterly
: Stucco
North
Lowry
: Balcony
4
: Carpet, Tile, Wood
4
George Washington
: Pantry, High Ceilings, Kitchen Island, Eat-in Kitchen, Wet Bar, Ceiling Fan(s), Built-in Features, Primary Suite, Five Piece Bath, Walk-In Closet(s), Audio/Video Controls, Smart Light(s)
Yes
Yes
Cash, Conventional
: Level, Corner Lot, Near Public Transit
Hill
LIV Sotheby's International Realty
6092-00-039
: None
: House
Lowry
$13,608
2024
R-1
02/25/2026
8225
Active
Yes
1
Denver 1
Denver 1
Denver 1
04/15/2026
03/26/2026
Public
: Two

Lowry

7680 E 6th Avenue, Denver, CO 80230

4 Bedrooms
5 Total Baths
5,812 Square Feet
$2,750,000
Listing ID #3204856
Basic Details
Property Type : Residential
Listing Type : For Sale
Listing ID : 3204856
Price : $2,750,000
Bedrooms : 4
Rooms : 21
Total Baths : 5
Full Bathrooms : 3
3/4 Bathrooms : 1
1/2 Bathrooms : 1
Square Footage : 5,812 Square Feet
Year Built : 2005
Lot Area : 14,400 Acres
Lot Acres : 0.33
Property Sub Type : Single Family Residence
Status : Active
Originating System Name : REcolorado
Mortgage Calculator
$
$ %
years
%
$ %per year
$ %per year

$
Contact Agent
Open Dates
  • 1. 2026-04-19 (Start time: 2026-04-19T21:30:00Z - End time: 2026-04-19T23:00:00Z)