Metro Denver Luxury Homes For Sale

Property Description

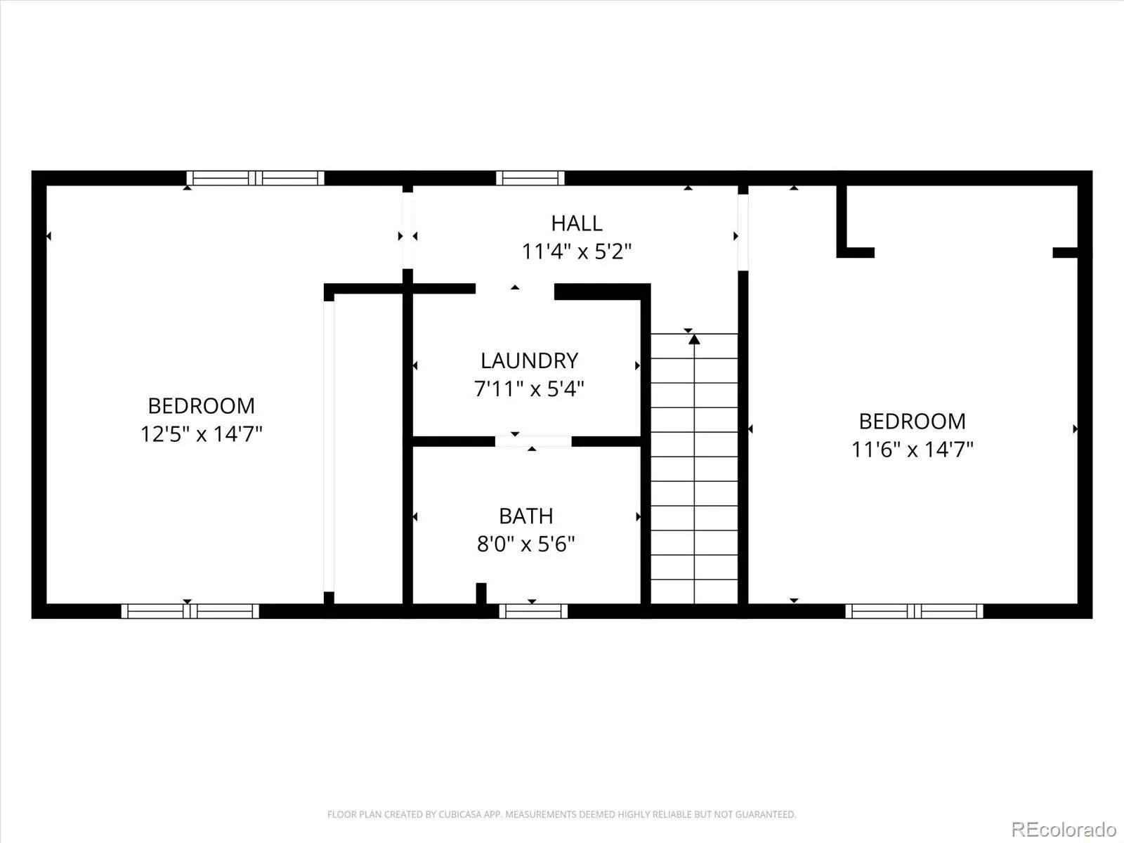
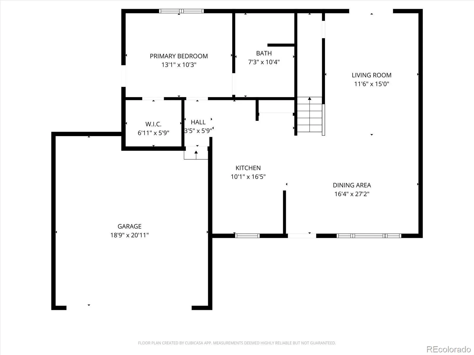
This town house is being sold at a market friendly price of $575,000 in “as is” condition. The owners believe in a transparent model of real estate transactions and will not come down in price or accept a home sale contingency. The prospective buyer is encouraged to perform due diligence, pay for an inspection, and gain a complete understanding of the pros and cons of this specific building, before agreeing that this price reflects the value of the home. The town home is a private end unit in a small eight unit pocket neighborhood, near the bike path, minutes from everything in town, with friendly neighbors. It has slices of mountain views and is bathed in southern light, has a private back yard with a pergola, and a tiny front courtyard. Built in 1999, the unit is showing its age a bit. It is well maintained and in 2025 all windows were replaced, laminate flooring replaced the carpet, new disposal installed, new garage door installed in 2024, new membrane roof put on in 2022, some plumbing and electrical upgrades were done, and the interior has been freshly painted. All appliances are included. The home is clean, fully functional and move-in ready for the next owner to purchase and then budget for any desired upgrades. It is waiting of for a buyer to join the already long term neighbors. Short tern rentals are prohibited by the HOA. Two pets are allowed by the HOA. The HOA will be scheduling future stucco repairs.

Features
: Radiant, Baseboard
: Other
: Crawl Space
: Partial
: Mountain(s)
: Carbon Monoxide Detector(s), Smoke Detector(s), Secured Garage/Parking
: Patio
: 4
: Unfurnished
: Dryer, Dishwasher, Microwave, Range, Refrigerator, Washer, Oven
: Mountain Contemporary
: Composition, Membrane
: Public Sewer
Address Map
CO
Chaffee
Salida
81201
7th
540
Street
W107° 59' 54.9''
N38° 32' 7.1''
W
Additional Information
$250
Monthly
: Insurance, Sewer, Snow Removal, Trash, Water, Road Maintenance, Irrigation
: Frame, Stucco
East
From Highway 50 take F street southbound toward "S" mountain. Turn left onto West 7th Street. Look for agent sign.
: 220 Volts
Longfellow
: Private Yard
: Laminate, Vinyl
2
Salida
: Smoke Free, Ceiling Fan(s), Laminate Counters
Yes
Yes
1031 Exchange, Cash, Conventional
: Corner Lot, Near Ski Area, Landscaped
Salida
Colorado Mountain Realty
R368132326001
: None
: Low Rise (1-3)
TOWNHOME CONDOMINIUMS
$2,197
2024
: Phone Available, Electricity Connected, Natural Gas Connected
: Double Pane Windows
Residential
02/18/2026
1408
Active
Yes
1
Salida R-32
1
Concrete Perimeter
Salida R-32
Salida R-32
03/04/2026
1
02/18/2026
1
Public
: Two

TOWNHOME CONDOMINIUMS

540 W 7th Street, Salida, CO 81201

3 Bedrooms
2 Total Baths
1,408 Square Feet
$575,000
Listing ID #5625862
Basic Details
Property Type : Residential
Listing Type : For Sale
Listing ID : 5625862
Price : $575,000
Bedrooms : 3
Rooms : 9
Total Baths : 2
Full Bathrooms : 1
3/4 Bathrooms : 1
Square Footage : 1,408 Square Feet
Year Built : 1998
Property Sub Type : Condominium
Status : Active
Originating System Name : REcolorado
Mortgage Calculator
$
$ %
years
%
$ %per year
$ %per year

$
Contact Agent