Metro Denver Luxury Homes For Sale

Property Description

Designed by Shape Architecture, this thoughtfully crafted townhome with above garage Carriage House (ADU) blends clean contemporary design with the warmth and durability perfect for life in Salida. This rare offering delivers flexibility, income potential, and elevated architectural style—all in one cohesive property.

Contemporary rooflines, expansive windows, and low maintenance materials create a bold yet timeless street presence. Inside, light-filled interiors showcase an open-concept main living space anchored by a modern kitchen and seamless indoor-outdoor flow. Uniquely laid out on a large corner lot, this townhome lives like a single-family home complete with fenced backyard and a large front yard.

The attached ADU provides exceptional versatility—ideal for guest quarters, long-term rental income, multigenerational living, or a private work-from-home studio. The 2-car garage below has plenty of room for vehicles and toys.

Built with efficiency and longevity in mind, the home emphasizes high-performance construction, low-maintenance materials, and smart design choices that reflect Salida’s active lifestyle. Move right in, this home is fully landscaped, fenced, and even includes a clothes washer/dryer in both the main dwelling and ADU.

Whether you’re looking for a primary residence with supplemental income, an investment opportunity, or a flexible live/work configuration, this architect-designed property offers a rare combination of design integrity and practical livability in one of Colorado’s most sought-after mountain communities. Now COMPLETE as of April 2026.

Features
: Forced Air
: Central Air
: Full
: Covered, Front Porch, Patio
: 2
: Dryer, Dishwasher, Microwave, Range, Refrigerator, Washer, Oven
: Mountain Contemporary
: Shingle
: Public Sewer
Address Map
CO
Chaffee
Salida
81201
Chase
102
Street
W106° 1' 9.6''
N38° 31' 12.1''
Additional Information
: Frame
Longfellow
: Private Yard
2
Salida
Yes
Yes
1031 Exchange, Cash, Conventional, FHA, USDA Loan, VA Loan
: Corner Lot, Landscaped
Salida
Pinon Real Estate Group LLC
R380709100104
: None
: Duplex
Confluent Park
$1,362
2024
02/14/2026
1710
Active
Salida R-32
Salida R-32
In Unit
Salida R-32
04/13/2026
2
1
02/14/2026
Public
: Two

Confluent Park

102 Chase Street, Salida, CO 81201

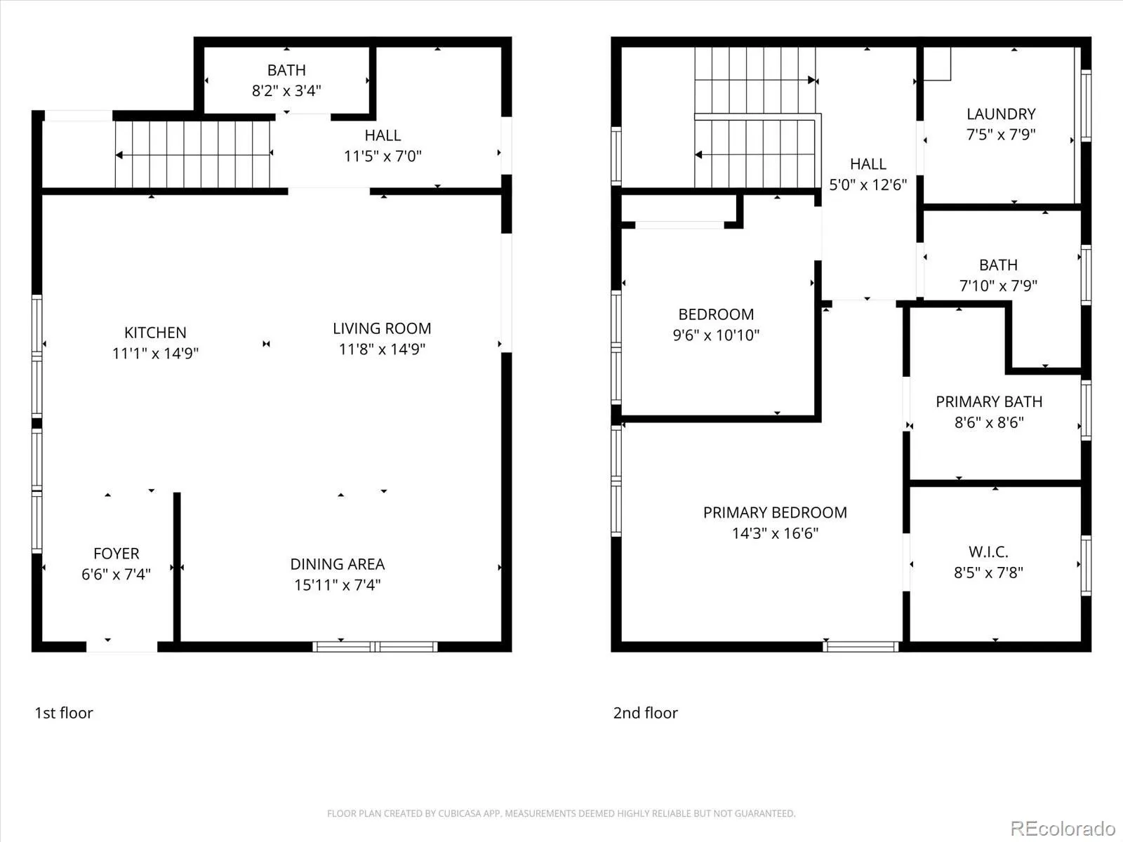
3 Bedrooms
4 Total Baths
1,710 Square Feet
$799,000
Listing ID #2200533
Basic Details
Property Type : Residential
Listing Type : For Sale
Listing ID : 2200533
Price : $799,000
Bedrooms : 3
Rooms : 8
Total Baths : 4
3/4 Bathrooms : 3
1/2 Bathrooms : 1
Square Footage : 1,710 Square Feet
Year Built : 2026
Lot Area : 4,574 Acres
Lot Acres : 0.11
Property Sub Type : Single Family Residence
Status : Active
Originating System Name : REcolorado
Mortgage Calculator
$
$ %
years
%
$ %per year
$ %per year

$
Contact Agent