Metro Denver Luxury Homes For Sale

Property Description

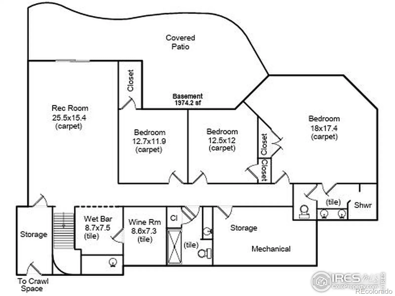
Discover this spectacular Miramont residence, perfectly positioned on a private cul-de-sac with stunning mountain views and direct access to neighborhood green space. Designed with both comfort and sophistication in mind, this home offers a spacious open floor plan filled with natural light, soaring ceilings, and high-end finishes throughout. The main floor features a luxurious primary retreat, complete with the convenience of main-level laundry. A gourmet, upgraded kitchen anchors the heart of the home, ideal for both everyday living and entertaining, while multiple living spaces provide versatility and room to gather. The walkout lower level expands your lifestyle options with a brand-new wine cellar, wet bar, and generous entertaining space that flows seamlessly outdoors. Outdoor living truly shines here, with a huge back deck to take in the mountain views, a shaded patio outside the walkout basement, a beautiful separate patio with a built-in firepit, and an additional private patio for the hot tub, all surrounded by mature landscaping that enhances privacy and beauty year-round. Car enthusiasts and hobbyists will appreciate the oversized three-car garage plus a large finished and heated shop. With thoughtful design, unique details, and a prime southeast Fort Collins location, this home balances luxury with livability. New boiler, humidifier, and AC & air handler, along with newly refinished wood floors, complete this exceptional offering.

Features
: Baseboard, Hot Water
: Central Air, Ceiling Fan(s)
: Partial, Crawl Space, Walk-Out Access
: Mountain(s)
: Gas Log, Living Room, Other, Insert
: Deck, Patio
: 3
: Dryer, Dishwasher, Microwave, Refrigerator, Washer, Oven, Double Oven
: Heated Garage, Oversized, Oversized Door
: Concrete
: Public Sewer
Address Map
CO
Larimer
Fort Collins
80525
Castle Ridge
5213
Place
W106° 56' 0.5''
N40° 30' 50.7''
Additional Information
$503
Annually
: Reserves
: Stucco
Northeast
From Harmony/College- E on Harmony, S on Boardwalk, SW on Highcastle, Right on Castle Ridge Ct, Left on Castle Ridge Pl. Home is at the end of the cul-de-sac.
Werner
: Gas Grill, Spa/Hot Tub
: Wood, Vinyl
3
Fossil Ridge
: Open Floorplan, Kitchen Island, Eat-in Kitchen, Vaulted Ceiling(s), Five Piece Bath
Yes
Yes
Cash, Conventional
: Sprinklers In Front, Cul-De-Sac
Preston
Group Mulberry
R1393154
: House
Castle Ridge At Miramont
$9,951
2024
: Cable Available, Electricity Available, Natural Gas Available, Internet Access (Wired)
: Double Pane Windows
RL
02/06/2026
5871
Active
Yes
1
Poudre R-1
Poudre R-1
In Unit
05/04/2026
Residential
02/06/2026
Public
: One

Castle Ridge At Miramont

5213 Castle Ridge Place, Fort Collins, CO 80525

4 Bedrooms
5 Total Baths
5,687 Square Feet
$2,000,000
Listing ID #IR1051060
Basic Details
Property Type : Residential
Listing Type : For Sale
Listing ID : IR1051060
Price : $2,000,000
Bedrooms : 4
Rooms : 16
Total Baths : 5
Full Bathrooms : 1
3/4 Bathrooms : 2
1/2 Bathrooms : 2
Square Footage : 5,687 Square Feet
Year Built : 2001
Lot Acres : 0.57
Property Sub Type : Single Family Residence
Status : Active
Originating System Name : REcolorado
Mortgage Calculator
$
$ %
years
%
$ %per year
$ %per year

$
Contact Agent
Open Dates
  • 1. 2026-05-09 (Start time: 2026-05-09T17:00:00Z - End time: 2026-05-09T19:00:00Z)