Metro Denver Luxury Homes For Sale

Property Description

Light-filled, spacious, and ideally located, this home offers the best of suburban living in a peaceful, family-friendly neighborhood. Top-rated elementary, middle, and high schools are all within walking distance, and convenient access to Powers Boulevard, I-25, Highway 83, and the InterQuest corridor makes commuting, shopping, dining, and entertainment effortless.

Inside, soaring 10-foot ceilings and expansive windows fill the great room with natural light. The open-concept layout seamlessly connects the gourmet kitchen, dining, and living areas—perfect for entertaining and everyday living. The kitchen features a large center island, quartz countertops, stainless steel appliances, oversized cabinetry, pantry, and engineered hardwood floors. A gas log fireplace adds warmth and charm.

The main-level primary suite offers a private retreat with a bay-window sitting area and a luxurious five-piece bath. A main-level study with French doors provides flexible use as an office, dining room, or additional bedroom, while the laundry room and three-car tandem garage add everyday convenience.

Upstairs includes a junior suite with private bath, two additional bedrooms, and a full bath—ideal for family or guests.

Enjoy mountain views of Pikes Peak from the Trex deck with café lights or the flagstone patio. The backyard features low-maintenance xeriscaping, a small grassy area, mature landscaping, perennial flowers, and a dog run.

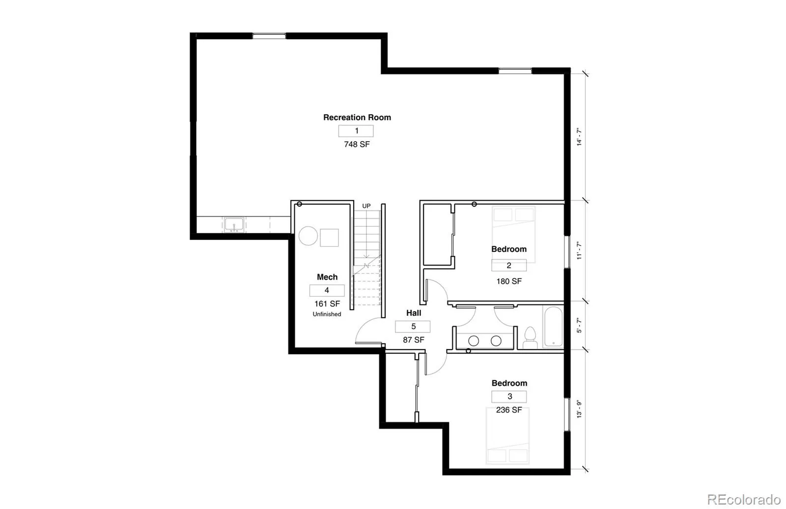
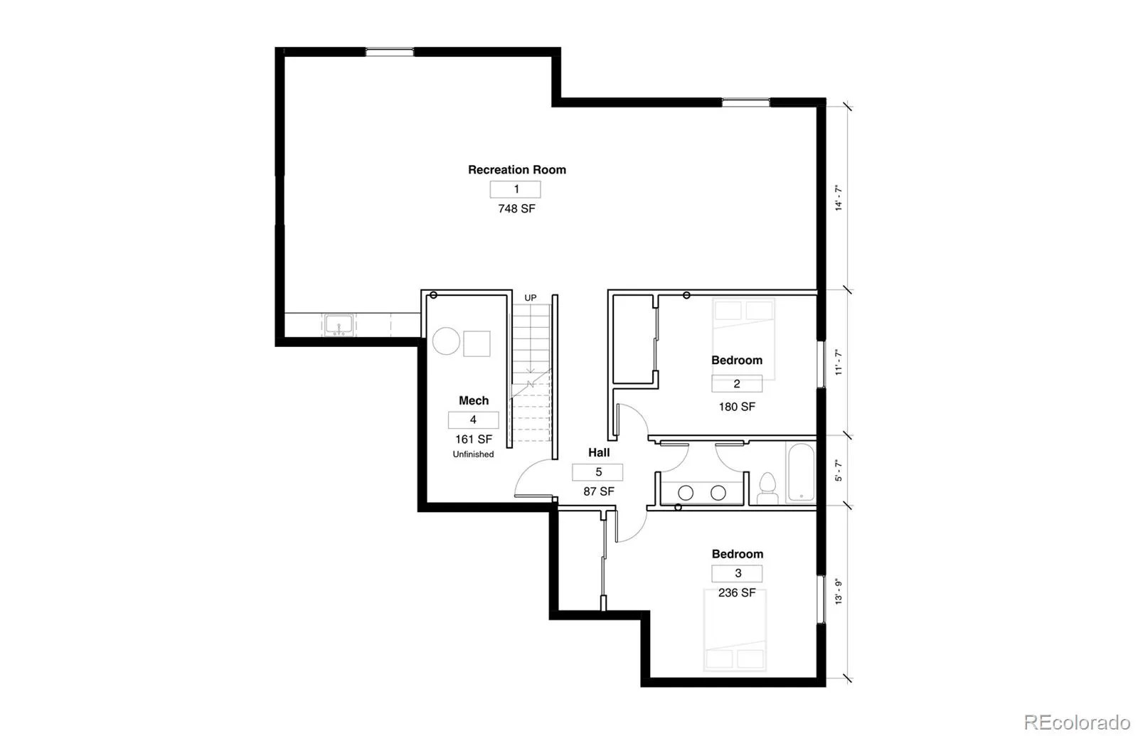
The unfinished basement (approx. 1,500 sq. ft.) is prepped with a full bath, wet bar, and HVAC rough-ins, offering endless potential for additional bedrooms, recreation space, or a guest suite—adding both livability and equity.

Located near Pine Creek Golf Course, Children’s Hospital Colorado, UCHealth Memorial North, shopping, dining, and entertainment, this home blends comfort, convenience, and value—with lower HOA fees than nearby communities like Wolf Ranch.

Features
: Forced Air
: Central Air
: Full
: 3
: Dryer, Dishwasher, Disposal, Microwave, Range, Refrigerator, Washer
: Concrete
: Shingle
: Public Sewer
Address Map
CO
El Paso
Colorado Springs
80908
Rhinestone
10744
Drive
W105° 13' 42.9''
N38° 59' 12.2''
Additional Information
$604
Annually
: Frame
Mountain View
3
Pine Creek
Yes
Yes
Cash, Conventional, Other
Challenger
Better Homes & Gardens Real Estate - Kenney & Co.
62223-02-018
: None
: House
Bison Ridge At Kettle Creek
$2,354
2024
PUD
01/21/2026
3803
Active
Yes
1
Academy 20
Academy 20
Academy 20
04/10/2026
01/22/2026
Public
: Two

Bison Ridge At Kettle Creek

10744 Rhinestone Drive, Colorado Springs, CO 80908

4 Bedrooms
4 Total Baths
2,323 Square Feet
$650,000
Listing ID #8391535
Basic Details
Property Type : Residential
Listing Type : For Sale
Listing ID : 8391535
Price : $650,000
Bedrooms : 4
Rooms : 13
Total Baths : 4
Full Bathrooms : 2
3/4 Bathrooms : 1
1/2 Bathrooms : 1
Square Footage : 2,323 Square Feet
Year Built : 2005
Lot Area : 8,456 Acres
Lot Acres : 0.19
Property Sub Type : Single Family Residence
Status : Active
Originating System Name : REcolorado
Mortgage Calculator
$
$ %
years
%
$ %per year
$ %per year

$
Contact Agent