Metro Denver Luxury Homes For Sale

Property Description

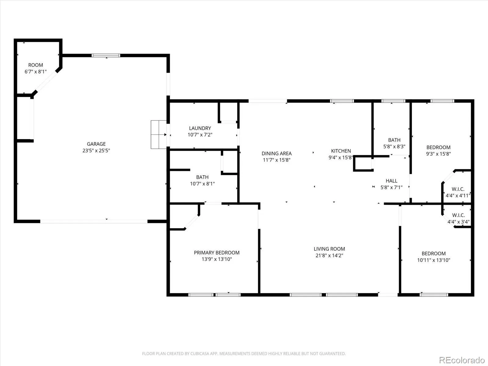
Looking for a newer home in a quiet neighborhood with elbow room and a shop? This beautifully maintained 3-bedroom, 2-bath home is located on 0.26 acres just 5 miles west of Salida, Colorado, in the community of Poncha Springs. The thoughtfully designed floor plan places the primary suite on the opposite end of the home from the 2 additional bedrooms, for added privacy. The primary bedroom features an en-suite bathroom with a walk-in shower. The open layout of the 1464 square foot home creates a spacious and inviting feel throughout. Extra wide doorways make furniture moving a breeze and can accommodate wheelchair accessibility. The kitchen is a chef’s delight, complete with a large center island, gas range, south-facing window over the sink, and sliding glass door that provides easy access to the backyard patio – perfect for indoor/outdoor living. The guest bathroom features an incredible jetted walk-in tub, that will soothe those aching muscles after long days playing in the mountains. Step outside to enjoy the private, south-facing patio, ideal for relaxing or entertaining. Additional features include a convenient oversized 672-square-foot attached insulated garage, making unloading groceries effortless. For those needing extra space, the 1,200-square-foot shop is sure to impress, featuring a durable metal roof and siding for low-maintenance ownership – perfect for storage, projects, or all your recreational gear. This smoke-free and pet-free home is being offered furnished or unfurnished. Don’t miss this exceptional opportunity in a peaceful mountain setting! Watch the video for a better look: book.emeraldrealestatemedia.com/655-Quarry-Station, then call for a showing!

Features
: Forced Air
: None
: Crawl Space
: None
: Mountain(s)
: Yes
: Carbon Monoxide Detector(s), Smoke Detector(s)
: Patio
: 2
: Furnished
: Dryer, Dishwasher, Microwave, Refrigerator, Washer, Oven, Freezer
: Modular
: Trail(s)
: Concrete, Oversized, Insulated Garage, Lighted, Exterior Access Door
: Shingle
: Public Sewer
: Bath
Address Map
CO
Chaffee
Poncha Springs
81242
Quarry Station
655
W107° 55' 1.6''
N38° 31' 1''
Additional Information
: Accessible Bedroom, Accessible Doors, Accessible Bathroom
$250
Annually
: Frame, Stucco
North
From the intersection of Highway 50 and Holman Avenue in Salida, Colorado, continue west along Hwy 50 approximately 3.5 miles to the stoplight at the intersection of Hwy 50 and Hwy 285. Continue west through the intersection along West Poncha Avenue. The street will curve right, then to the left, becoming Hoover Circle. Continue along Hoover Circle to the next right, where Hoover Circle turns north. Continue north up Hoover Circle past Alabama Street to Quarry Station. Turn right/east onto Quarry Station. Home will be the third home on the right/south: 655 Quarry Station.
: 110V
Longfellow
: Private Yard, Rain Gutters
: Carpet, Laminate
2
Salida
: Open Floorplan, Smoke Free, Kitchen Island, Ceiling Fan(s), Laminate Counters
Yes
Yes
1031 Exchange, Cash, Conventional, FHA, VA Loan
: Landscaped
Salida
Full Circle Real Estate Group
380509100172
: None
: House
Quarry Station
$1,615
2025
: Cable Available, Phone Available, Electricity Connected, Natural Gas Connected
: Double Pane Windows
T-3 Sub Urban
01/17/2026
1464
Active
Yes
1
Live/Work
Salida R-32
Concrete Perimeter
Salida R-32
Salida R-32
04/12/2026
04/12/2026
Public
: One

Quarry Station

655 Quarry Station, Poncha Springs, CO 81242

3 Bedrooms
2 Total Baths
1,464 Square Feet
$649,000
Listing ID #5184089
Basic Details
Property Type : Residential
Listing Type : For Sale
Listing ID : 5184089
Price : $649,000
Bedrooms : 3
Rooms : 8
Total Baths : 2
3/4 Bathrooms : 2
Square Footage : 1,464 Square Feet
Year Built : 2019
Lot Area : 0.26 Acres
Lot Acres : 0.26
Property Sub Type : Single Family Residence
Status : Active
Originating System Name : REcolorado
Mortgage Calculator
$
$ %
years
%
$ %per year
$ %per year

$
Contact Agent