Metro Denver Luxury Homes For Sale

Property Description

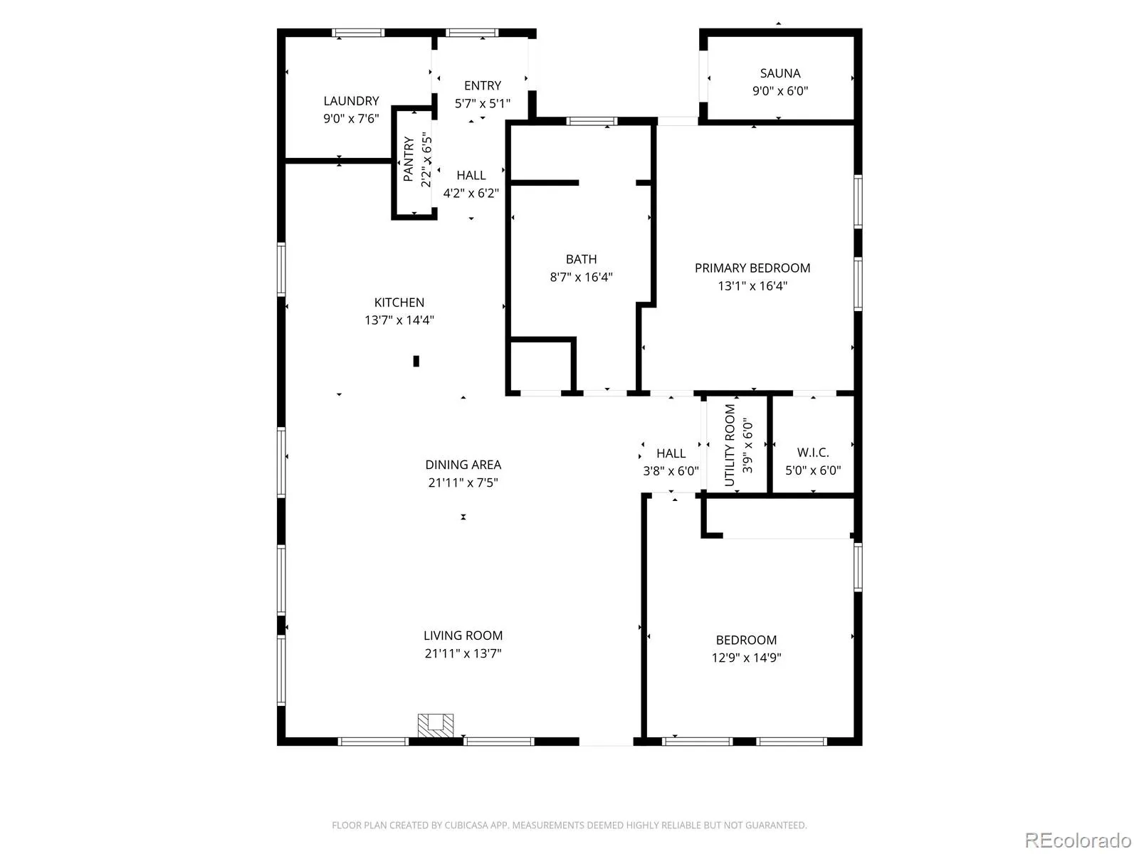
Experience modern comfort and mountain living in this 2018-built, energy-efficient home located in a desirable Western Colorado cooperative community. Featuring high-end finishes throughout, this two-bedroom, one-bath residence blends style, function, and sustainability.
Covered patios and keyless entries welcome you into an open-concept living, dining, and kitchen area beneath vaulted ceilings. Enjoy the comfort of radiant floor heat and a wood stove with a preheat system for the boiler. Insulated windows and doors, along with wood trim and beams, accent the stained concrete floors, creating a warm, inviting atmosphere.
The gourmet kitchen features a tasteful mix of quartz and granite counters, a dual fuel range featuring a gas cooktop with range hood and double electric ovens, breakfast bar, custom cabinetry, and stainless steel appliances—the perfect setup for entertaining or home cooking.
The spacious laundry room includes a washer, dryer, countertop, cabinets, and sink for added convenience. The luxurious bathroom boasts a double-sink vanity, walk-in tiled shower, soaker tub, and commode.
Retreat to the primary bedroom with a walk-in closet and private patio access, leading to an enclosed sauna. The second bedroom features a triple-door closet. Additional spaces include a maintenance room for easy home care.
All interior and exterior doors are ADA-compliant and 3 ft wide. This home also includes a bamboo charcoal water filter, as well as a water softener system, whole house surge protection, 200-amp electrical service, dual 30-amp generator hookups, and evaporative cooling. Ceiling fans, recessed lighting, and stylish fixtures enhance comfort and ambiance throughout.
The detached oversized 2-car heated garage features automated doors, extra storage space and 100 amp service with a 220V connection.
The home is constructed with 12-inch-thick walls insulated with 3 inches of Rockwool.

Features
: Natural Gas, Wood Stove, Radiant Floor, Wood
: Evaporative Cooling
: None
: Water, Mountain(s)
: Wood Burning
: Covered, Patio
: 3
: Dryer, Dishwasher, Disposal, Range, Refrigerator, Range Hood, Washer, Oven, Freezer, Water Softener
: Other, Composition, Rolled/Hot Mop
: Public Sewer
Address Map
CO
Mesa
Mesa
81643
Cool Creek
48751
Drive
W109° 51' 34.1''
N39° 9' 36.6''
Additional Information
$50
Monthly
: ICFs (Insulated Concrete Forms)
North
Take Exit 49 toward Grand Mesa/CO-330 E/Collbran onto CO-65 (Grand Mesa Scenic and Historic Byway). Continue for 12.3 miles. After passing through the town of Mesa, turn right onto Cool Creek Drive. The home will be on your left.
Plateau Valley
: Garden
1
: Concrete
2
Plateau Valley
: Vaulted Ceiling(s), Ceiling Fan(s), Sauna, Walk-In Closet(s)
Yes
Yes
Cash, Conventional, USDA Loan, VA Loan
: Near Ski Area
Plateau Valley
Real Colorado Properties
2713-301-07-009
: None
: House
Cool Creek Subdivision
$2,001
2025
: Electricity Connected, Natural Gas Connected, Internet Access (Wired)
: Stream
: Window Coverings, Triple Pane Windows
SFR
01/12/2026
: Insulation, Doors
1665
Active
Yes
1
Live/Work
Plateau Valley 50
Slab
Plateau Valley 50
Plateau Valley 50
04/01/2026
1
01/12/2026
Public
: One

Cool Creek Subdivision

48751 Cool Creek Drive, Mesa, CO 81643

2 Bedrooms
1 Total Baths
1,665 Square Feet
$595,000
Listing ID #2682418
Basic Details
Property Type : Residential
Listing Type : For Sale
Listing ID : 2682418
Price : $595,000
Bedrooms : 2
Rooms : 7
Total Baths : 1
Full Bathrooms : 1
Square Footage : 1,665 Square Feet
Year Built : 2018
Lot Area : 0.20 Acres
Lot Acres : 0.2
Property Sub Type : Single Family Residence
Status : Active
Originating System Name : REcolorado
Mortgage Calculator
$
$ %
years
%
$ %per year
$ %per year

$
Contact Agent